Eladó Ház- házrész
Hirdetéskód: 9248069
OTP Ingatlanpont Csongrád
Ez a hirdetés megfelelhet a FIX 3%-os programnak.
Tudj meg többet a részletekről itt.
146.00 m2
ALAPTERÜLET3
SZOBASZÁMnincs megadva
ÉPÍTÉSnincs megadva
FŰTÉS- CSOK igénybe vehető nem
- Tetőtér beépíthető nem
- Építés éve 1925
- Klíma nem
- Szigetelt nem
A+++
A++
A+
A
B
C
D
E
F
G
H
I
Az ingatlan leírása
Kizárólag az OTP Ingatlanpont kínálatában!
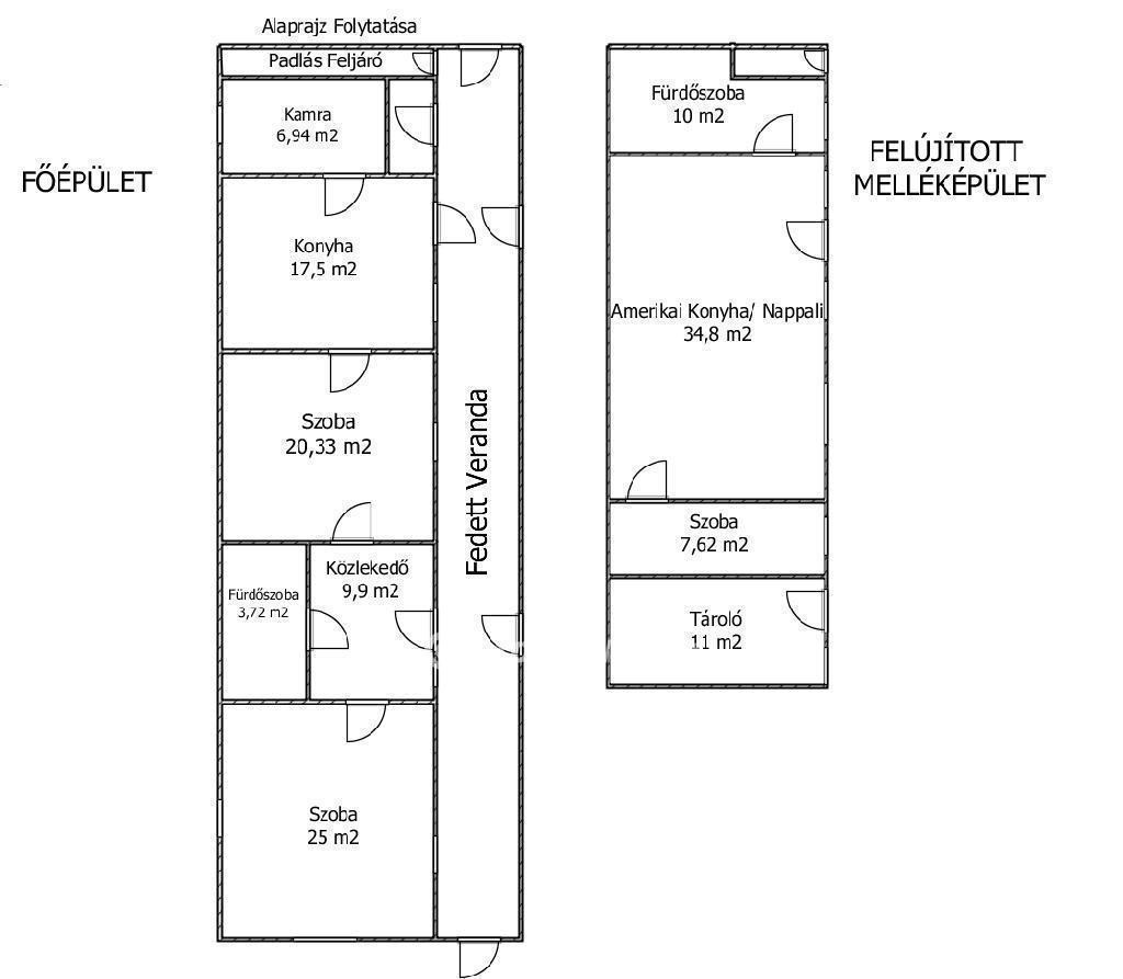
Eladásra kínálom Csongrád-Csanád vármegyében, Szentesen 705 m2-es telken lévő 83 m2-es fő épületben lévő 2 szoba, konyha, kamra fürdőszobás ingatlant, ami egy telken van egy 52 m2-es felújított szoba, fürdőszoba, amerikai konyha nappalis házzal. A fő épület meg felel az Otthon Start Hitelprogram feltételeinek. Az ingatlan korszerűsítést igényel, de szükség esetén állapota akár költözhető is lehet, a kisebb épületben be kell fejezni a felújításokat csak úgy költözhető. Tetőszerkezet megfelelő állapotban van. Nagy épületben gázkonvektoros fűtés van, kisebb épületben majd légkondicionálós fűtési lehetőség lesz.
Ne feledje, az OTP Ingatlanpont kedvezményes pénzügyi konstrukciókkal áll ügyfelei rendelkezésére! VIP-szolgáltatást nyújtunk az OTP-hiteltermékek ügyintézésében. Jogi és pénzügyi segítséget nyújtanak szakértőink, hogy az adásvétel folyamata gördülékeny legyen. Amennyiben a vételár a kérdés, és úgy gondolja még nincs meg az összeg a leendő új otthonra, lehet hogy még is rendelkezésére áll a vételár csak még Ön nem is tudja? Tisztában van valóban az anyagi lehetőségeivel? Az áthidaló megoldásokkal? Esetleg csak az az akadály, hogy nem adta el még a saját ingatlanját? Nem gond, a tulajdonosaink, eladóink szívesen megvárják Önt, segítünk a gyors értékesítésben is. Ne maradjon le a vételről, ha már megtalálta a megfelelő új otthont! Szolgáltatásunk ingyenes, kizárólag sikeres értékesítés esetén van megbízási díj fizetési kötelezettség. A vevők is nálunk vannak és lehet az Ön ingatlanjára várnak?! Tudjon meg többet, hívjon bizalommal!
Eladó ingatlanja van? Nincs vevője? Hívjon segítek az értékesítésben!
Eladásra kínálom Csongrád-Csanád vármegyében, Szentesen 705 m2-es telken lévő 83 m2-es fő épületben lévő 2 szoba, konyha, kamra fürdőszobás ingatlant, ami egy telken van egy 52 m2-es felújított szoba, fürdőszoba, amerikai konyha nappalis házzal. A fő épület meg felel az Otthon Start Hitelprogram feltételeinek. Az ingatlan korszerűsítést igényel, de szükség esetén állapota akár költözhető is lehet, a kisebb épületben be kell fejezni a felújításokat csak úgy költözhető. Tetőszerkezet megfelelő állapotban van. Nagy épületben gázkonvektoros fűtés van, kisebb épületben majd légkondicionálós fűtési lehetőség lesz.
Ne feledje, az OTP Ingatlanpont kedvezményes pénzügyi konstrukciókkal áll ügyfelei rendelkezésére! VIP-szolgáltatást nyújtunk az OTP-hiteltermékek ügyintézésében. Jogi és pénzügyi segítséget nyújtanak szakértőink, hogy az adásvétel folyamata gördülékeny legyen. Amennyiben a vételár a kérdés, és úgy gondolja még nincs meg az összeg a leendő új otthonra, lehet hogy még is rendelkezésére áll a vételár csak még Ön nem is tudja? Tisztában van valóban az anyagi lehetőségeivel? Az áthidaló megoldásokkal? Esetleg csak az az akadály, hogy nem adta el még a saját ingatlanját? Nem gond, a tulajdonosaink, eladóink szívesen megvárják Önt, segítünk a gyors értékesítésben is. Ne maradjon le a vételről, ha már megtalálta a megfelelő új otthont! Szolgáltatásunk ingyenes, kizárólag sikeres értékesítés esetén van megbízási díj fizetési kötelezettség. A vevők is nálunk vannak és lehet az Ön ingatlanjára várnak?! Tudjon meg többet, hívjon bizalommal!
Eladó ingatlanja van? Nincs vevője? Hívjon segítek az értékesítésben!