Eladó Ház- házrész
Hirdetéskód: 9247741
OTP Ingatlanpont Csongrád
Felújításhoz személyi kölcsönt keres? Kalkuláljon itt! →
Ez a hirdetés megfelelhet a FIX 3%-os programnak.
Tudj meg többet a részletekről itt.
67.00 m2
ALAPTERÜLET2
SZOBASZÁMnincs megadva
ÉPÍTÉSnincs megadva
FŰTÉS- CSOK igénybe vehető nem
- Tetőtér beépíthető nem
- Építés éve 1960
- Klíma nem
- Szigetelt nem
A+++
A++
A+
A
B
C
D
E
F
G
H
I
Az ingatlan leírása
Csak az OTP Ingatlanpontnál!
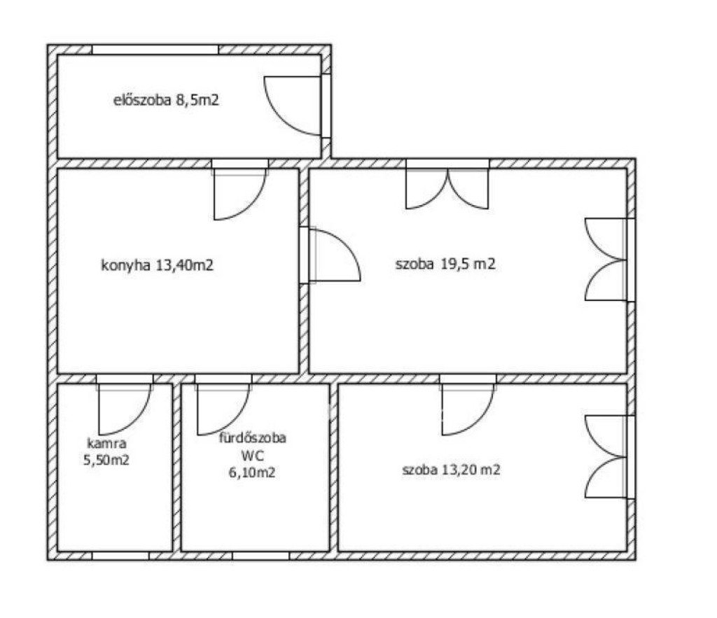
Szentes város szélén, csend és nyugalom ölelésében várja új tulajdonosát ez a 67 m2-es, felújítandó, de hatalmas lehetőségeket rejtő ingatlan, amely 1000 m?-es telken fekszik. A téglaépítésű ház két szobával, konyhával, fürdőszobával, kamrával és előszobával rendelkezik, klasszikus cseréptetővel, igazi vidéki hangulatot árasztva.
Az udvaron tágas melléképületek és egy nagy méretű garázs is található, amelyek remek lehetőséget kínálnak tárolásra, jószágtartásra vagy akár műhely kialakítására. Az ingatlan két bejárattal rendelkezik: az egyik főútvonalról könnyen megközelíthető, a másik pedig csendes utcáról nyílik, így a mindennapi élet és a nyugalom egyaránt biztosított.
Ideális választás lehet hétvégi háznak, kisebb gazdaság vagy kert kialakítására, sőt a telek mérete a bővítés lehetőségét is megadja az új tulajdonos számára. A gáz, víz és villany bevezetve, a csatorna csatlakozási pont pedig telken belül található.
Engedd, hogy a fantáziád formálja saját vidéki álmodat ezen a nagyszerű adottságokkal rendelkező szentesi ingatlanon!
Az OTP Bankcsoport teljes körű ügyintézéssel áll az eladók és a vevők rendelkezésére! A kínálatunkból választott ingatlan finanszírozásához kedvezményes hitel konstrukciókat kínálunk. Az adásvételi szerződés megkötéséhez igény szerint megbízható ügyvédi közreműködést biztosítunk, és segítséget nyújtunk az adásvételhez kapcsolódó ügyek intézéséhez. Akár hétvégén is hívható vagyok! Amennyiben igényli, kérem küldjön SMS-t és szívesen visszahívom!
Szentes város szélén, csend és nyugalom ölelésében várja új tulajdonosát ez a 67 m2-es, felújítandó, de hatalmas lehetőségeket rejtő ingatlan, amely 1000 m?-es telken fekszik. A téglaépítésű ház két szobával, konyhával, fürdőszobával, kamrával és előszobával rendelkezik, klasszikus cseréptetővel, igazi vidéki hangulatot árasztva.
Az udvaron tágas melléképületek és egy nagy méretű garázs is található, amelyek remek lehetőséget kínálnak tárolásra, jószágtartásra vagy akár műhely kialakítására. Az ingatlan két bejárattal rendelkezik: az egyik főútvonalról könnyen megközelíthető, a másik pedig csendes utcáról nyílik, így a mindennapi élet és a nyugalom egyaránt biztosított.
Ideális választás lehet hétvégi háznak, kisebb gazdaság vagy kert kialakítására, sőt a telek mérete a bővítés lehetőségét is megadja az új tulajdonos számára. A gáz, víz és villany bevezetve, a csatorna csatlakozási pont pedig telken belül található.
Engedd, hogy a fantáziád formálja saját vidéki álmodat ezen a nagyszerű adottságokkal rendelkező szentesi ingatlanon!
Az OTP Bankcsoport teljes körű ügyintézéssel áll az eladók és a vevők rendelkezésére! A kínálatunkból választott ingatlan finanszírozásához kedvezményes hitel konstrukciókat kínálunk. Az adásvételi szerződés megkötéséhez igény szerint megbízható ügyvédi közreműködést biztosítunk, és segítséget nyújtunk az adásvételhez kapcsolódó ügyek intézéséhez. Akár hétvégén is hívható vagyok! Amennyiben igényli, kérem küldjön SMS-t és szívesen visszahívom!