Eladó Ház- házrész
Hirdetéskód: 9329116
OTP Ingatlanpont Csongrád
Felújításhoz személyi kölcsönt keres? Kalkuláljon itt! →645.00 m2
ALAPTERÜLET3
SZOBASZÁMnincs megadva
ÉPÍTÉSGáz (cirkó)
FŰTÉS- CSOK igénybe vehető nem
- Tetőtér beépíthető nem
- Építés éve 1990
- Fűtés Gáz (cirkó)
- Klíma nem
- Szigetelt nem
A+++
A++
A+
A
B
C
D
E
F
G
H
I
Az ingatlan leírása
Eladó ipari ingatlan Szentes közelében kiváló befektetési lehetőség!
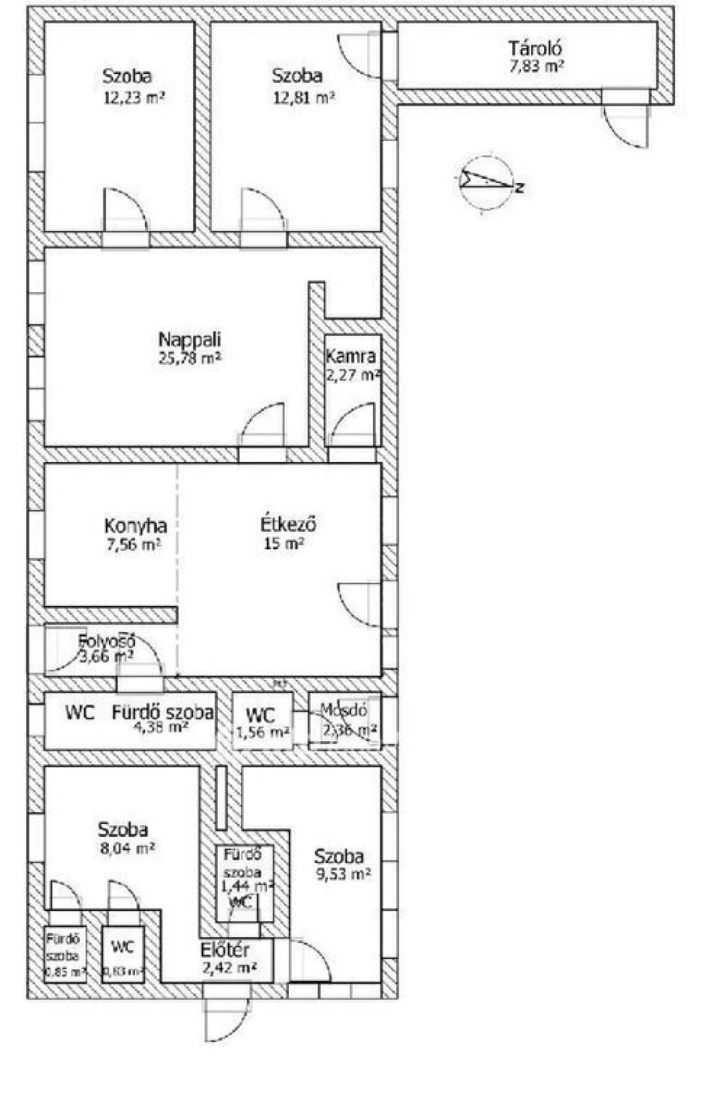
Szentes központjához közel eladásra kínálunk egy 5013 nm-es telken elhelyezkedő, összesen 645 nm beépített alapterületű ipari ingatlant, amely számos lehetőséget rejt magában. Az ingatlan jellemzői: főépületben 3 szoba plusz 2 félszoba, két külön lakrész. Több raktárépület a területen. Külön gyártócsarnok, üzemrész. 3×100 amper elektromos kapacitás. Kamerarendszerrel ellátott telephely. Telken belüli körforgalom, amely biztosítja a könnyű manőverezést akár kamionok számára is. Kamionforgalom engedély nélkül megoldott. Ideális rakodásra, tárolásra és gyártási tevékenységre. A terület jelenleg kivett lakóház udvarként szerepel, bármikor átminősíthető ipariingatlanná. Az ingatlan kiváló választás lehet, vállalkozás indításához, telephely bővítéshez, hosszú távú befektetéshez.Ne hagyja ki ezt a sokoldalú lehetőséget! Az ingatlan kizárólag az OTP Ingatlanpont kínálatában érhető el. Amennyiben felkeltette érdeklődését, keressen bizalommal, és tekintsük meg együtt! Irodánk teljes körű, az OTP Bank hátterével támogatott ügyintézést biztosít, egyedi ajánlatokkal és sorban állás nélküli kiszolgálással.
Az energetikai tanúsítvány készítése folyamatban van, amint rendelkezésre áll, úgy azzal a hirdetés frissítésre kerül.
Szentes központjához közel eladásra kínálunk egy 5013 nm-es telken elhelyezkedő, összesen 645 nm beépített alapterületű ipari ingatlant, amely számos lehetőséget rejt magában. Az ingatlan jellemzői: főépületben 3 szoba plusz 2 félszoba, két külön lakrész. Több raktárépület a területen. Külön gyártócsarnok, üzemrész. 3×100 amper elektromos kapacitás. Kamerarendszerrel ellátott telephely. Telken belüli körforgalom, amely biztosítja a könnyű manőverezést akár kamionok számára is. Kamionforgalom engedély nélkül megoldott. Ideális rakodásra, tárolásra és gyártási tevékenységre. A terület jelenleg kivett lakóház udvarként szerepel, bármikor átminősíthető ipariingatlanná. Az ingatlan kiváló választás lehet, vállalkozás indításához, telephely bővítéshez, hosszú távú befektetéshez.Ne hagyja ki ezt a sokoldalú lehetőséget! Az ingatlan kizárólag az OTP Ingatlanpont kínálatában érhető el. Amennyiben felkeltette érdeklődését, keressen bizalommal, és tekintsük meg együtt! Irodánk teljes körű, az OTP Bank hátterével támogatott ügyintézést biztosít, egyedi ajánlatokkal és sorban állás nélküli kiszolgálással.
Az energetikai tanúsítvány készítése folyamatban van, amint rendelkezésre áll, úgy azzal a hirdetés frissítésre kerül.