Eladó Ház- házrész
Hirdetéskód: 9240134
OTP Ingatlanpont Csongrád
Ez a hirdetés megfelelhet a FIX 3%-os programnak.
Tudj meg többet a részletekről itt.
48.00 m2
ALAPTERÜLET2
SZOBASZÁMnincs megadva
ÉPÍTÉSnincs megadva
FŰTÉS- CSOK igénybe vehető nem
- Tetőtér beépíthető nem
- Építés éve 1980
- Klíma nem
- Szigetelt nem
A+++
A++
A+
A
B
C
D
E
F
G
H
I
Az ingatlan leírása
Csak az OTP Ingatlanpont kínálatában!!
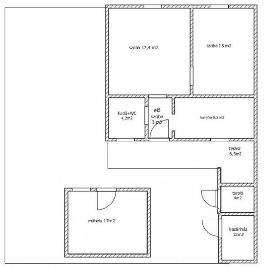
Eladó Csongrád-Csanád vármegyében, Szentesen, egy nagyon jó állapotú utcafronti házrész. Az ingatlan 48 m2-es lakótérrel és 280 m2-es telekkel, külön bejáratú, saját udvarral rendelkezik, ami ideális választás lehet mindazoknak, akik önálló életteret keresnek nyugodt környezetben. Teljes közmúvel, saját mérőórákkal rendelkezik (víz, gáz, villany).
A házban két szoba, konyha, fürdőszoba és egy kis előszoba kapott helyet. A felújítási munkálatok az elmúlt évben nagyrészt megvalósultak, a korszerűsítés mintegy 90%-ban elkészült. Megújultak a nyílászárók, a villamos hálózat, a fűtésrendszer, a fürdőszoba és a burkolatok, valamint a tetőszegés is. A fűtésről vegyestüzelésű kazán gondoskodik, emellett hűtő-fűtő klíma is felszerelésre került, amely hatékonyan biztosítja a kellemes hőmérsékletet az év minden szakában. A melegvizet villanybojler szolgáltatja, kedvezményes tarifájú áramra kötve.
A kis alapterületnek köszönhetően az ingatlan fenntartása rendkívül gazdaságos, alacsony rezsiköltséggel üzemeltethető. Az udvaron melléképület és műhely is található, valamint egy különálló, 17 m2-es épület, amely akár garázsként is kialakítható. Ez az ingatlan remek lehetőség első otthonnak, idősebbeknek vagy befektetési céllal is, hiszen azonnal költözhető, rendezett környezetben helyezkedik el.
Az OTP Bankcsoport teljes körű ügyintézéssel áll az eladók és a vevők rendelkezésére! A kínálatunkból választott ingatlan finanszírozásához kedvezményes hitel konstrukciókat kínálunk. Az adásvételi szerződés megkötéséhez igény szerint megbízható ügyvédi közreműködést biztosítunk, és segítséget nyújtunk az adásvételhez kapcsolódó ügyek intézéséhez. Akár hétvégén is hívható vagyok! Amennyiben igényli, kérem küldjön sms-t és szívesen visszahívom!
Kedvező hitelajánlatokkal (BABAVÁRÓ hitel, piaci hitel, Otthon Start Program,és szabadfelhasználású hitel) várjuk jelentkezését. Számos konstrukció közül választhatnak. Irodáink Szentes, Petőfi utca 12. A buszmegálló felől, és Csongrád, Fő utca 54. szám alatt várja a személyes érdeklődőket.
Eladó Csongrád-Csanád vármegyében, Szentesen, egy nagyon jó állapotú utcafronti házrész. Az ingatlan 48 m2-es lakótérrel és 280 m2-es telekkel, külön bejáratú, saját udvarral rendelkezik, ami ideális választás lehet mindazoknak, akik önálló életteret keresnek nyugodt környezetben. Teljes közmúvel, saját mérőórákkal rendelkezik (víz, gáz, villany).
A házban két szoba, konyha, fürdőszoba és egy kis előszoba kapott helyet. A felújítási munkálatok az elmúlt évben nagyrészt megvalósultak, a korszerűsítés mintegy 90%-ban elkészült. Megújultak a nyílászárók, a villamos hálózat, a fűtésrendszer, a fürdőszoba és a burkolatok, valamint a tetőszegés is. A fűtésről vegyestüzelésű kazán gondoskodik, emellett hűtő-fűtő klíma is felszerelésre került, amely hatékonyan biztosítja a kellemes hőmérsékletet az év minden szakában. A melegvizet villanybojler szolgáltatja, kedvezményes tarifájú áramra kötve.
A kis alapterületnek köszönhetően az ingatlan fenntartása rendkívül gazdaságos, alacsony rezsiköltséggel üzemeltethető. Az udvaron melléképület és műhely is található, valamint egy különálló, 17 m2-es épület, amely akár garázsként is kialakítható. Ez az ingatlan remek lehetőség első otthonnak, idősebbeknek vagy befektetési céllal is, hiszen azonnal költözhető, rendezett környezetben helyezkedik el.
Az OTP Bankcsoport teljes körű ügyintézéssel áll az eladók és a vevők rendelkezésére! A kínálatunkból választott ingatlan finanszírozásához kedvezményes hitel konstrukciókat kínálunk. Az adásvételi szerződés megkötéséhez igény szerint megbízható ügyvédi közreműködést biztosítunk, és segítséget nyújtunk az adásvételhez kapcsolódó ügyek intézéséhez. Akár hétvégén is hívható vagyok! Amennyiben igényli, kérem küldjön sms-t és szívesen visszahívom!
Kedvező hitelajánlatokkal (BABAVÁRÓ hitel, piaci hitel, Otthon Start Program,és szabadfelhasználású hitel) várjuk jelentkezését. Számos konstrukció közül választhatnak. Irodáink Szentes, Petőfi utca 12. A buszmegálló felől, és Csongrád, Fő utca 54. szám alatt várja a személyes érdeklődőket.