Eladó Ház- házrész
Hirdetéskód: 9198653
OTP Ingatlanpont Csongrád
194 m2
ALAPTERÜLET5
SZOBASZÁMnincs megadva
ÉPÍTÉSnincs megadva
FŰTÉS- CSOK igénybe vehető nem
- Tetőtér beépíthető nem
- Építés éve 2000
- Klíma nem
- Szigetelt nem
A+++
A++
A+
A
B
C
D
E
F
G
H
I
Az ingatlan leírása
Kizárólag az OTP Ingatlanpont kínálatában!
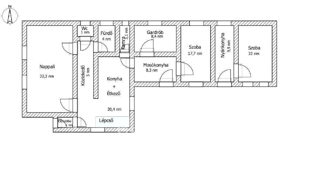
Eladásra kínáljuk Szentes közkedvelt részén, a Felsőpárton, mégis közel a városközponthoz egy 194 nm-es, kétszintes, igényesen kialakított családi házat, 551 nm-es telken. A főépület 2000-ben épült, jól átgondolt elrendezéssel. A földszinten előszoba, tágas-fényes nappali, konyha-étkezővel, kamra, új fürdőszoba és külön WC helyezkedik el. A melléképület számos lehetőséget rejt: mosókonyha, gardrób, egy külön szoba, nyárikonyha, valamint egy nagyobb helyiség, amely akár konditeremnek, házimozinak vagy hobbiszobának is tökéletes. Az emeleten 3 hálószoba, közlekedő, kisebb gardrób, új fürdőszoba és külön WC is van. Az udvar igazán otthonossá teszi a házat. Fedett, nagyméretű terasz a nyári családi ebédekhez. Kerti tó halakkal, ami mindig különleges hangulatot ad. Térkövezett, rendezett udvar, két garázs és tároló, fúrt kút és elektromos kapu, kamera rendszer is megtalálható. Az emeleten 3 klíma az alsó szinten 1 klíma lett felszerelve. Ez a ház ideális nagycsaládosoknak vagy akár két generációnak is, hiszen mindenkinek jut hely, mégis mindenki együtt lehet. Ha olyan otthont keresel, ahol a gyerekek szabadon játszhatnak az udvaron, ahol elfér a nagy családi asztal, és ahol minden nap öröm hazatérni akkor ez a ház pont Nektek való!
Legújabb szolgáltatásként ajánlom minden kedves ügyfelem részére az OTP Bank által közvetített Babaváró, CSOK PLUSZ, Otthon Start Hitelprogram vagy egyéb kölcsönök intézését. Az OTP Ingatlanpont kedvezményes pénzügyi konstrukciókkal áll ügyfelei rendelkezésére! VIP-szolgáltatást nyújtunk az OTP-hiteltermékek ügyintézésében. Jogi és pénzügyi segítséget nyújtanak szakértőink, hogy az adásvétel folyamata gördülékeny legyen. Amennyiben a vételár a kérdés, és úgy gondolja még nincs meg az összeg a leendő új otthonra? Lehet, hogy még is rendelkezésére áll a vételár csak még Ön nem is tudja? Tisztában van valóban az anyagi lehetőségeivel? Az áthidaló megoldásokkal? Esetleg csak az az akadály, hogy nem adta el még a saját ingatlanját? Nem gond, a tulajdonosaink, eladóink szívesen megvárják Önt, segítünk a gyors értékesítésben is. Ne maradjon le a vételről, ha már megtalálta a megfelelő új otthont! Szolgáltatásunk ingyenes, kizárólag sikeres értékesítés esetén van megbízási díj fizetési kötelezettség. A vevők is nálunk vannak és lehet az Ön ingatlanjára várnak?! Tudjon meg többet, hívjon bizalommal! Eladó ingatlanja van? Nincs vevője? Hívjon segítek az értékesítésben! Kedvező hitelajánlatokkal (BABAVÁRÓ hitel, piaci hitel, és szabadfelhasználású hitel) várjuk jelentkezését. Számos konstrukció közül választhatnak. Irodáink Szentes, Petőfi utca 12. (a buszmegálló felől) és Csongrád, Fő utca 54. szám alatt várja a személyes érdeklődőket. ***VÁLASSZUK KI EGYÜTT AZ ÖNNEK LEGMEGFELELŐBB AJÁNLATOT! BANKI SORBAN ÁLLÁS NÉLKÜL! ***
Eladásra kínáljuk Szentes közkedvelt részén, a Felsőpárton, mégis közel a városközponthoz egy 194 nm-es, kétszintes, igényesen kialakított családi házat, 551 nm-es telken. A főépület 2000-ben épült, jól átgondolt elrendezéssel. A földszinten előszoba, tágas-fényes nappali, konyha-étkezővel, kamra, új fürdőszoba és külön WC helyezkedik el. A melléképület számos lehetőséget rejt: mosókonyha, gardrób, egy külön szoba, nyárikonyha, valamint egy nagyobb helyiség, amely akár konditeremnek, házimozinak vagy hobbiszobának is tökéletes. Az emeleten 3 hálószoba, közlekedő, kisebb gardrób, új fürdőszoba és külön WC is van. Az udvar igazán otthonossá teszi a házat. Fedett, nagyméretű terasz a nyári családi ebédekhez. Kerti tó halakkal, ami mindig különleges hangulatot ad. Térkövezett, rendezett udvar, két garázs és tároló, fúrt kút és elektromos kapu, kamera rendszer is megtalálható. Az emeleten 3 klíma az alsó szinten 1 klíma lett felszerelve. Ez a ház ideális nagycsaládosoknak vagy akár két generációnak is, hiszen mindenkinek jut hely, mégis mindenki együtt lehet. Ha olyan otthont keresel, ahol a gyerekek szabadon játszhatnak az udvaron, ahol elfér a nagy családi asztal, és ahol minden nap öröm hazatérni akkor ez a ház pont Nektek való!
Legújabb szolgáltatásként ajánlom minden kedves ügyfelem részére az OTP Bank által közvetített Babaváró, CSOK PLUSZ, Otthon Start Hitelprogram vagy egyéb kölcsönök intézését. Az OTP Ingatlanpont kedvezményes pénzügyi konstrukciókkal áll ügyfelei rendelkezésére! VIP-szolgáltatást nyújtunk az OTP-hiteltermékek ügyintézésében. Jogi és pénzügyi segítséget nyújtanak szakértőink, hogy az adásvétel folyamata gördülékeny legyen. Amennyiben a vételár a kérdés, és úgy gondolja még nincs meg az összeg a leendő új otthonra? Lehet, hogy még is rendelkezésére áll a vételár csak még Ön nem is tudja? Tisztában van valóban az anyagi lehetőségeivel? Az áthidaló megoldásokkal? Esetleg csak az az akadály, hogy nem adta el még a saját ingatlanját? Nem gond, a tulajdonosaink, eladóink szívesen megvárják Önt, segítünk a gyors értékesítésben is. Ne maradjon le a vételről, ha már megtalálta a megfelelő új otthont! Szolgáltatásunk ingyenes, kizárólag sikeres értékesítés esetén van megbízási díj fizetési kötelezettség. A vevők is nálunk vannak és lehet az Ön ingatlanjára várnak?! Tudjon meg többet, hívjon bizalommal! Eladó ingatlanja van? Nincs vevője? Hívjon segítek az értékesítésben! Kedvező hitelajánlatokkal (BABAVÁRÓ hitel, piaci hitel, és szabadfelhasználású hitel) várjuk jelentkezését. Számos konstrukció közül választhatnak. Irodáink Szentes, Petőfi utca 12. (a buszmegálló felől) és Csongrád, Fő utca 54. szám alatt várja a személyes érdeklődőket. ***VÁLASSZUK KI EGYÜTT AZ ÖNNEK LEGMEGFELELŐBB AJÁNLATOT! BANKI SORBAN ÁLLÁS NÉLKÜL! ***