Eladó Ház- házrész
Hirdetéskód: 9265225
OTP Ingatlanpont Csongrád
211.00 m2
ALAPTERÜLET6
SZOBASZÁMnincs megadva
ÉPÍTÉSnincs megadva
FŰTÉS- CSOK igénybe vehető nem
- Tetőtér beépíthető nem
- Építés éve 1980
- Klíma nem
- Szigetelt nem
A+++
A++
A+
A
B
C
D
E
F
G
H
I
Az ingatlan leírása
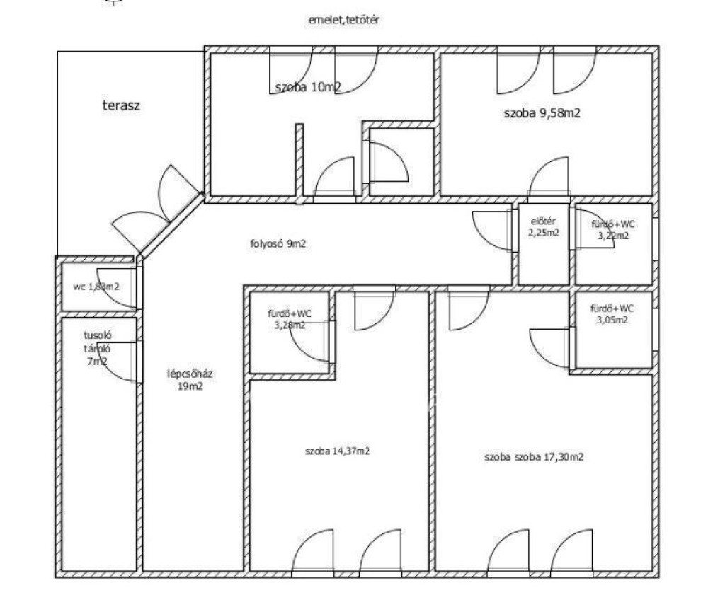
Eladásra kínálunk Csongrád-Csanád vármegyében Szentesen, egy 6 szobás házat. A tégla építésű tetőtér beépítéses ingatlan, jelenleg apartmanként üzemel, de könnyedén átalakítható családi háznak. Az alsó egy önálló lakást találunk. Tágas nappalit, étkezővel és konyhával egybekötve. Emellett két hálószoba, fürdő, mosókonyha és egy előszoba került kialakításra. A lakás előterében egy zárt lépcsőház van, innen lehet az emeletre feljutni. Itt 4 szoba található, mindegyikhez saját fürdőszoba tartozik. Tároló helyiség zuhanyzóval, és egy külön WC is kapott helyet. A fűtésről és a melegvízről gáz-cirkó kazán gondoskodik. A tágas terasz kellemes pihenés lehetőségét adja. Ajánlom befektetőknek, nagycsaládosoknak, összeköltözőknek. Szentes városában mindig szükség van kiadó szállásra, és ez egy remek alkalom, hogy bővítse vállalkozását, vagy most vágjon bele. Ha felkeltette érdeklődését, keressen bizalommal.
,, Otthon Start Hitelprogram
Irodáink Szentes, Petőfi utca 12. (a buszmegálló felől) és Csongrád, Fő utca 54. szám alatt várja a személyes érdeklődőket.
,, Otthon Start Hitelprogram
Irodáink Szentes, Petőfi utca 12. (a buszmegálló felől) és Csongrád, Fő utca 54. szám alatt várja a személyes érdeklődőket.