Eladó Ház- házrész
Hirdetéskód: 9309222

OTP Ingatlanpont Csongrád

Felújításhoz személyi kölcsönt keres? Kalkuláljon itt! →
FIX 3% Program

Ez a hirdetés megfelelhet a FIX 3%-os programnak.
Tudj meg többet a részletekről itt.

140.00 m2
ALAPTERÜLET
0
SZOBASZÁM
nincs megadva
ÉPÍTÉS
Geotermikus
FŰTÉS
  • CSOK igénybe vehető nem
  • Tetőtér beépíthető nem
  • Építés éve 2024
  • Fűtés Geotermikus
  • Klíma nem
  • Szigetelt nem
Energetikai besorolás: Nincs meghatározva
A+++
A++
A+
A
B
C
D
E
F
G
H
I

Az MBH Bank személyi kölcsön ajánlata

Fizetett hirdetés
1 millió Ft
6 évre
20 585 Ft/hó
THM: 14.5%
Részletek →
2 millió Ft
6 évre
41 169 Ft/hó
THM: 14.5%
Részletek →
3 millió Ft
6 évre
61 754 Ft/hó
THM: 14.5%
Részletek →

A tájékoztatás nem teljes körű és nem minősül ajánlattételnek.

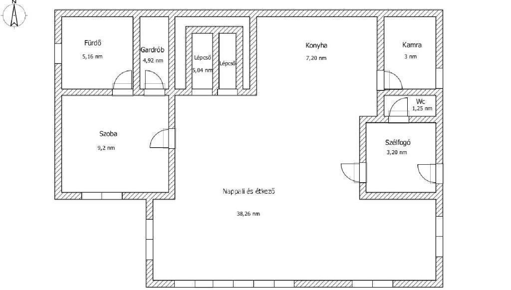
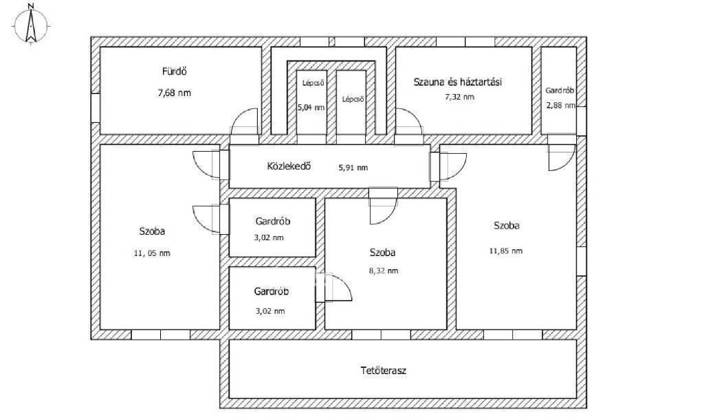
Az ingatlan leírása

Eladásra kínálunk Pest megyében, Szentendrén egy új építésű 140 nm-es,családi házat. Becsült készültségi fok 30-35%. A ház 2022-ben épült tégla falazattal, az alapja megvan és a födém is kész, igény esetén a tulajdonos befejezi a házat a kész tervek szerint vagy akár módosítással. A nagyobb családok részére is kényelmes házban 4 hálószoba, amerikai konyhás nappali, 2 fürdőszoba, 4 gardrób kapott helyet. A tetőteraszról gyönyörű kilátást lehet élvezni a nap bármely szakaszában. Az otthon melegét hőszivattyú rendszer biztosítja. A kivitelezés összehangolt, gyors, profi munkával történik. A további műszaki tartalom és feltételek, a kivitelezés folyamata és minden részlet megbeszélése érdekében várom a jelentkezését a megadott telefonszámon. Kérésre elküldjük a beruházó terveit. Az OTP Bank hitelszakértőjeként finanszírozási ajánlattal, személyre szabott, igényfelmérésen alapuló díjmentes tanácsadással, kamatkedvezményekkel, igényelhető állami támogatásokkal állok az Ön rendelkezésére.

Az energetikai tanúsítvány készítése folyamatban van, amint rendelkezésre áll, úgy azzal a hirdetés frissítésre kerül.

Térkép

Ingatlan adásvétel ügyvédi díja
310 500 Ft
a hirdetésben szereplő ár alapján
  • A vételár 0,45%-a
  • Szerződéscsomag teljeskörű képviselettel
  • Ingyenes tulajdoni lap ellenőrzés
  • Az ÁFA-t már tartalmazza
Érdekel az ajánlat →
A tájékoztatás nem teljes körű és nem minősül ajánlattételnek. Minimum díj: 150 000 Ft, maximum díj: 600 000 Ft. A díj kizárólag lakóingatlan adásvételére vonatkozik.

A hirdető elérhetősége

OTP Ingatlanpont Csongrád

Dr. Szabados Éva
+36 30 309