Eladó Ház- házrész
Hirdetéskód: 9279465

OTP Ingatlanpont Csongrád

Felújításhoz személyi kölcsönt keres? Kalkuláljon itt! →
FIX 3% Program

Ez a hirdetés megfelelhet a FIX 3%-os programnak.
Tudj meg többet a részletekről itt.

140.00 m2
ALAPTERÜLET
0
SZOBASZÁM
nincs megadva
ÉPÍTÉS
Geotermikus
FŰTÉS
  • CSOK igénybe vehető nem
  • Tetőtér beépíthető nem
  • Építés éve 2024
  • Fűtés Geotermikus
  • Klíma nem
  • Szigetelt nem
Energetikai besorolás: Nincs meghatározva
A+++
A++
A+
A
B
C
D
E
F
G
H
I

Az MBH Bank személyi kölcsön ajánlata

Fizetett hirdetés
1 millió Ft
6 évre
20 585 Ft/hó
THM: 14.5%
Részletek →
2 millió Ft
6 évre
41 169 Ft/hó
THM: 14.5%
Részletek →
3 millió Ft
6 évre
61 754 Ft/hó
THM: 14.5%
Részletek →

A tájékoztatás nem teljes körű és nem minősül ajánlattételnek.

Az ingatlan leírása

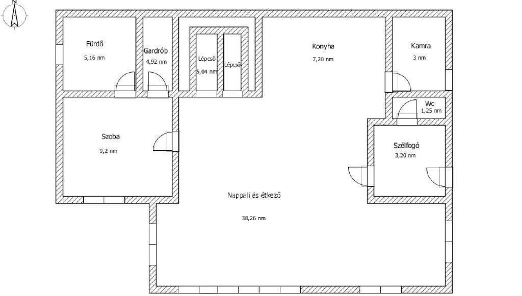
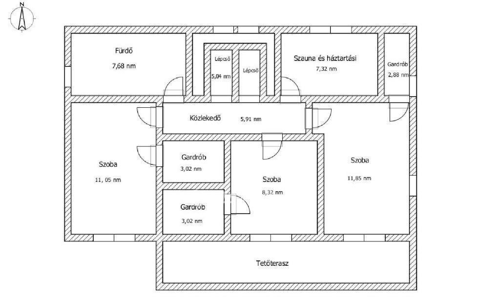
Eladásra kínálunk Pest megyében, Szentendrén egy új építésű 140 nm-es,családi házat. Becsült készültségi fok 30-35%. A ház 2022-ben épült tégla falazattal, az alapja megvan és a födém is kész, igény esetén a tulajdonos befejezi a házat a kész tervek szerint vagy akár módosítással. A nagyobb családok részére is kényelmes házban 4 hálószoba, amerikai konyhás nappali, 2 fürdőszoba, 4 gardrób kapott helyet. A tetőteraszról gyönyörű kilátást lehet élvezni a nap bármely szakaszában. Az otthon melegét hőszivattyú rendszer biztosítja. A kivitelezés összehangolt, gyors, profi munkával történik. A további műszaki tartalom és feltételek, a kivitelezés folyamata és minden részlet megbeszélése érdekében várom a jelentkezését a megadott telefonszámon. Kérésre elküldjük a beruházó terveit. Az OTP Bank hitelszakértőjeként finanszírozási ajánlattal, személyre szabott, igényfelmérésen alapuló díjmentes tanácsadással, kamatkedvezményekkel, igényelhető állami támogatásokkal állok az Ön rendelkezésére.

Térkép

A hirdető elérhetősége

OTP Ingatlanpont Csongrád

Fábrik-Csendes Zsuzsanna
+36 30 656