Eladó Ház- házrész
Hirdetéskód: 9242541
GDN Ingatlanhálózat - Harmónia
Felújításhoz személyi kölcsönt keres? Kalkuláljon itt! →320.00 m2
ALAPTERÜLET10
SZOBASZÁMnincs megadva
ÉPÍTÉSHázközponti fűtés egyedi méréssel
FŰTÉS- CSOK igénybe vehető nem
- Tetőtér beépíthető nem
- Fűtés Házközponti fűtés egyedi méréssel
- Klíma nem
- Szigetelt nem
A+++
A++
A+
A
B
C
D
E
F
G
H
I
Az ingatlan leírása
Tér együttéléshez, nyugalomhoz – többgenerációs családi ház a Bokros utcában
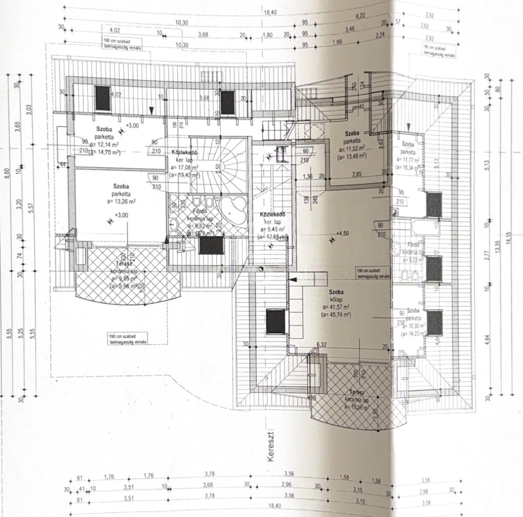
Szentendre egyik nyugodt, biztonságos részén található ez a háromszintes, közel 320 m²-es családi ház, amelyet kifejezetten többgenerációs használatra alakítottak ki. Három, külön bejáratú, teraszos lakóegység kapott benne helyet, így a közelség és az önállóság egyszerre tud jelen lenni a mindennapokban.
A ház 2005-ben épült, masszív 38-as téglafalazattal, korszerű szigeteléssel. A fűtést kondenzációs kazán biztosítja, padlófűtéssel és klímaberendezésekkel kiegészítve, így a komfort egész évben kiegyensúlyozott. A belső terek világosak, jól tagoltak, a hangulat nyugodt és élhető.
Az alsó szint praktikus kiegészítő funkciókat kínál: háromállásos garázs, borospince, konditerem és több tárolóhelyiség áll rendelkezésre. A gondozott kert és a teraszok Szentendrére és a környező zöldövezetre nyíló panorámája természetes része a mindennapoknak.
A ház kamerával és sorompóval védett magánúton közelíthető meg, ami valódi nyugalmat és biztonságot ad a környezetnek.
Ez az ingatlan nem egy élethelyzetre készült, hanem hosszú távra. Olyan családok számára, akik együtt szeretnének maradni, de mindenkinek fontos a saját tér is.
Szentendrén ritkán adódik ilyen adottságú lehetőség – érdemes személyesen is megtapasztalni. ...TOVÁBBI, TÖBBEZRES INGATLAN KÍNÁLAT: - GDN azonosító: 391331
Szentendre egyik nyugodt, biztonságos részén található ez a háromszintes, közel 320 m²-es családi ház, amelyet kifejezetten többgenerációs használatra alakítottak ki. Három, külön bejáratú, teraszos lakóegység kapott benne helyet, így a közelség és az önállóság egyszerre tud jelen lenni a mindennapokban.
A ház 2005-ben épült, masszív 38-as téglafalazattal, korszerű szigeteléssel. A fűtést kondenzációs kazán biztosítja, padlófűtéssel és klímaberendezésekkel kiegészítve, így a komfort egész évben kiegyensúlyozott. A belső terek világosak, jól tagoltak, a hangulat nyugodt és élhető.
Az alsó szint praktikus kiegészítő funkciókat kínál: háromállásos garázs, borospince, konditerem és több tárolóhelyiség áll rendelkezésre. A gondozott kert és a teraszok Szentendrére és a környező zöldövezetre nyíló panorámája természetes része a mindennapoknak.
A ház kamerával és sorompóval védett magánúton közelíthető meg, ami valódi nyugalmat és biztonságot ad a környezetnek.
Ez az ingatlan nem egy élethelyzetre készült, hanem hosszú távra. Olyan családok számára, akik együtt szeretnének maradni, de mindenkinek fontos a saját tér is.
Szentendrén ritkán adódik ilyen adottságú lehetőség – érdemes személyesen is megtapasztalni. ...TOVÁBBI, TÖBBEZRES INGATLAN KÍNÁLAT: - GDN azonosító: 391331