Eladó Ház- házrész
Hirdetéskód: 9252186
Openhouse Székesfehérvár Ingatlaniroda
Felújításhoz személyi kölcsönt keres? Kalkuláljon itt! →
Ez a hirdetés megfelelhet a FIX 3%-os programnak.
Tudj meg többet a részletekről itt.
105.00 m2
ALAPTERÜLET5
SZOBASZÁMnincs megadva
ÉPÍTÉSEgyéb fűtés
FŰTÉS- CSOK igénybe vehető nem
- Tetőtér beépíthető nem
- Építés éve 2026
- Fűtés Egyéb fűtés
- Klíma nem
- Szigetelt nem
A+++
A++
A+
A
B
C
D
E
F
G
H
I
Az ingatlan leírása
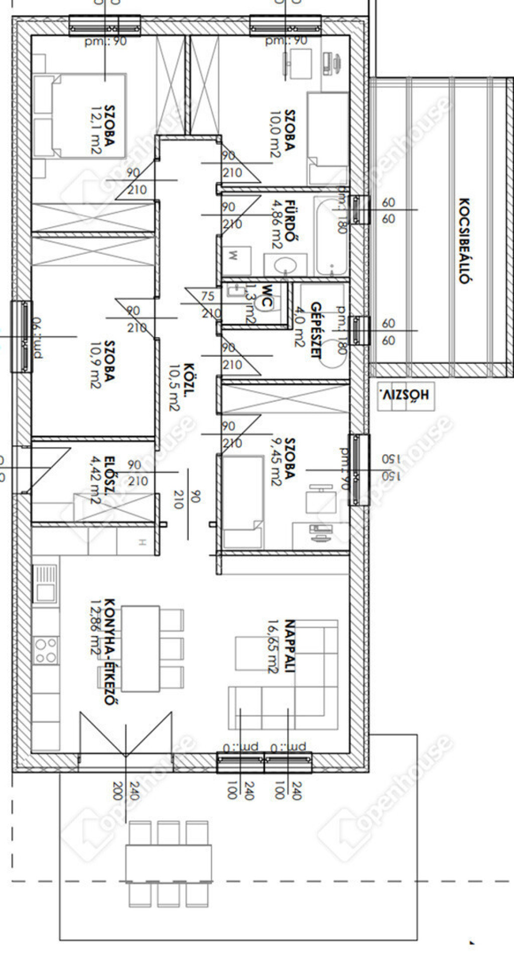
Az Openhouse Székesfehérvár Ingatlaniroda kínálatában eladó a #175317 hivatkozási számú székesfehérvári ikerház.
Eladásra kínálok Székesfehérváron épülő ikerházi lakásokat . Az egyszintes házak nettó 98 m2-esek, + 12 m2 terasszal, + 18 m2 kocsibeállóval. Nappali-konyha-étkező mellett négy hálószoba kerül kialakításra. Belső válaszfalak módosíthatók. Az ingatlanok csak a kocsibeállóknál érnek össze, nincs közös használatú fal.
30-as tégla falak, 10-es tégla válaszfalak,
beton tetőcserép Antracit színben,
15 cm-es EPS hőszigetelés,
három rétegű műanyag nyílászárók,
rejtett redőnytok előkészítés,
Hőszivattyú, padlófűtéssel,
pergolás gépkocsibeálló,
törölköző szárító radiátor,
választható burkolatok, (5000Ft/m2)
választható szaniterek,
választhatóbeltéri ajtók, (90.000Ft/db)
konyhabútort és a lámpatesteket nem tartalmaz az ár
A KIVITELEZŐ CÉGRŐL: Az ingatlan építését egy több éve megbízhatóan működő Székesfehérvári bejelentésű építőipari vállalkozás kordinálja. Több, már elkészült Székesfehérváron is megtekinthető referencia ingatlant áll rendelkezésre, hogy Ön is meggyőződjön a megfelelő minőségű kivitelezésről. Az építkezés önerőből zajlik, az ingatlan fejlesztésre a kivitelező cégnek a tőke rendelkezésére áll.
Ha felkeltette érdeklődését ez az eladó székesfehérvári ikerház, vagy bármely más ikerház és bővebb információt szeretne, keressen bizalommal.Hivatkozási szám: #175317
Az Openhouse Székesfehérvár Ingatlaniroda tagjaként várom Önt az országos hálózatunk teljes kínálatával.
A ikerház vásárláshoz hitelt igényelne? Ingyenes hitelközvetítéssel segít Önnek bankfüggetlen hitelszakértőnk.
További szolgáltatásainkkal (pl. értékbecslés, energetikai tanúsítvány, jogi háttér) is segítjük Önt a vásárlásban.
Az otthon érték. Az ingatlan üzlet.
Eladásra kínálok Székesfehérváron épülő ikerházi lakásokat . Az egyszintes házak nettó 98 m2-esek, + 12 m2 terasszal, + 18 m2 kocsibeállóval. Nappali-konyha-étkező mellett négy hálószoba kerül kialakításra. Belső válaszfalak módosíthatók. Az ingatlanok csak a kocsibeállóknál érnek össze, nincs közös használatú fal.
30-as tégla falak, 10-es tégla válaszfalak,
beton tetőcserép Antracit színben,
15 cm-es EPS hőszigetelés,
három rétegű műanyag nyílászárók,
rejtett redőnytok előkészítés,
Hőszivattyú, padlófűtéssel,
pergolás gépkocsibeálló,
törölköző szárító radiátor,
választható burkolatok, (5000Ft/m2)
választható szaniterek,
választhatóbeltéri ajtók, (90.000Ft/db)
konyhabútort és a lámpatesteket nem tartalmaz az ár
A KIVITELEZŐ CÉGRŐL: Az ingatlan építését egy több éve megbízhatóan működő Székesfehérvári bejelentésű építőipari vállalkozás kordinálja. Több, már elkészült Székesfehérváron is megtekinthető referencia ingatlant áll rendelkezésre, hogy Ön is meggyőződjön a megfelelő minőségű kivitelezésről. Az építkezés önerőből zajlik, az ingatlan fejlesztésre a kivitelező cégnek a tőke rendelkezésére áll.
Ha felkeltette érdeklődését ez az eladó székesfehérvári ikerház, vagy bármely más ikerház és bővebb információt szeretne, keressen bizalommal.Hivatkozási szám: #175317
Az Openhouse Székesfehérvár Ingatlaniroda tagjaként várom Önt az országos hálózatunk teljes kínálatával.
A ikerház vásárláshoz hitelt igényelne? Ingyenes hitelközvetítéssel segít Önnek bankfüggetlen hitelszakértőnk.
További szolgáltatásainkkal (pl. értékbecslés, energetikai tanúsítvány, jogi háttér) is segítjük Önt a vásárlásban.
Az otthon érték. Az ingatlan üzlet.