Eladó Ház- házrész
Hirdetéskód: 9257126

-

Felújításhoz személyi kölcsönt keres? Kalkuláljon itt! →
FIX 3% Program

Ez a hirdetés megfelelhet a FIX 3%-os programnak.
Tudj meg többet a részletekről itt.

94.00 m2
ALAPTERÜLET
3
SZOBASZÁM
Tégla
ÉPÍTÉS
Hőszivattyú
FŰTÉS
  • CSOK igénybe vehető igen
  • Belső szintek 1
  • Kilátás Kertre néző
  • Tájolás Nyugat
  • Ingatlan komfort Összkomfortos
  • Parkolási lehetőség Udvari beálló
  • Építés éve 2026
  • Fűtés Hőszivattyú
  • Építőanyag Tégla
  • Erkély, terasz Terasz 23.00m2
  • Szigetelt igen
Energetikai besorolás: Nincs meghatározva
A+++
A++
A+
A
B
C
D
E
F
G
H
I

Az MBH Bank személyi kölcsön ajánlata

Fizetett hirdetés
1 millió Ft
6 évre
20 585 Ft/hó
THM: 14.5%
Részletek →
2 millió Ft
6 évre
41 169 Ft/hó
THM: 14.5%
Részletek →
3 millió Ft
6 évre
61 754 Ft/hó
THM: 14.5%
Részletek →

A tájékoztatás nem teljes körű és nem minősül ajánlattételnek.

Az ingatlan leírása

BELVÁROS PEREME – CSALÁDI HÁZAS ÖVEZET, CSEND ÉS KÉNYELEM


Az ingatlan Székesfehérváron belül a belváros peremén, egy családi házas övezetben helyezkedik el. A környék egyszerre csendes és kiválóan ellátott, ahol minden a mindennapi élethez szükséges szolgáltatás karnyújtásnyira elérhető: bolt, buszmegálló, óvoda, iskola, park, játszótér, orvosi rendelő, gyógyszertár.


Ez a lokáció tökéletes egyensúlyt teremt a városi kényelem és az otthon nyugalma között.


 


Az ingatlan egy 2700 m²-es telken megvalósuló, prémium lakópark jellegű projekt része, amely összesen 5, egymástól teljesen elkülönülő családi házból áll.
A kínált ingatlan a projekt „B” épülete, amely önálló kertkapcsolattal, saját terasszal és maximális privát szférával rendelkezik.


 


LAKÓÉPÜLET FŐBB PARAMÉTEREI



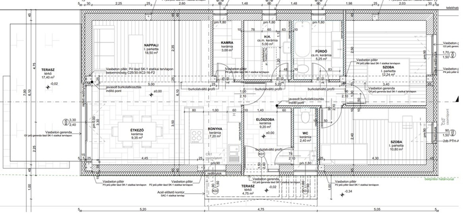
  • Lakóterület: 94 m²

  • Terasz: kb. 23 m², burkolt

  • Saját használatú telek: 366,4 m2

  • Parkolás: 2 állásos, burkolt gépkocsi beálló


 


MEGÉRKEZÉS – OTTHONOS, ÁTGONDOLT TÉRKIALAKÍTÁS


A házba belépve azonnal érezhető az átgondolt alaprajz és a modern élettér harmóniája.



  • Bal kéz felől nyílik a tágas amerikai konyhás nappali–étkező, amely a családi élet központja.
    A nagy üvegfelületeknek köszönhetően világos, barátságos tér fogad, innen közvetlen kertkapcsolat nyílik, valamint kiléphetünk a saját, burkolt teraszra – tökéletes hely reggeli kávéhoz, esti beszélgetésekhez.

  • A bejárattal szemben kapott helyet a háztartási helyiség, valamint a fürdőszoba és a külön WC, praktikus, jól elkülönített elrendezésben.

  • Jobb kéz felől található a pihenőrészleg, két kényelmes méretű hálószobával, amelyek nyugodt visszavonulást biztosítanak a nap végén.


 


MŰSZAKI TARTALOM – MINŐSÉG, AMI HOSSZÚ TÁVRA SZÓL


Szerkezet és szigetelés



  • Alapozás statikai tervek szerint, vasbeton lemezzel

  • Talajnedvesség elleni szigetelés: VILLAS VILLOX GV-45 oxidált bitumenes lemez

  • Teherhordó falak: LEIERTHERM / POROTHERM 30 N+F,
    belül gépi vakolat, kívül 15 cm Dryvit hőszigetelés

  • Válaszfalak: POROTHERM 10 N+F

  • Födém: 20 cm Rockwool Deltarock + 10 cm Rockwool Multirock (A1 tűzvédelem)


Tető



  • Fa fedélszékes nyeregtető, 40° hajlásszög

  • Terrán Zenit grafit beton cserép

  • Trifa bádogos kiegészítők (Matt 7024 Astrograu)


 


ENERGIAHATÉKONYSÁG ÉS GÉPÉSZET



  • Fűtés: hőszivattyús rendszer, padlófűtéssel

  • Hűtés: opcionális fan-coil rendszer

  • Nappali energia: 1×32A

  • H tarifa: 1×25A


 


NYÍLÁSZÁRÓK, ÁRNYÉKOLÁS



  • Kömmerling műanyag nyílászárók, 3 rétegű üvegezéssel

  • Külső fa hatású fólia, belül fehér szín

  • Alumínium, vakolható redőnytok, kézi működtetés

  • Fix szúnyogháló

  • Motoros redőny opcionálisan


 


BURKOLATOK, SZANITEREK, ELEKTROMOSSÁG



  • Hidegburkolat: 8.000 Ft/m²-ig választható

  • Melegburkolat: 5.000 Ft/m²-ig választható

  • Beltéri ajtók: 90.000 Ft/db-ig választható

  • Szaniterek: Geberit, Ravak, Grohe, Alföldi – prémium minőség

  • Elektromos szerelvények: Legrand, bőséges kiállásokkal


 


KERT, PARKOLÁS, BIZTONSÁG



  • Burkolt, 2 állásos gépkocsi beálló

  • Aszfaltos szolgalmi út

  • Kerítés: utcafronton falazott, motoros úszókapuval

  • Opcionálisan riasztó- és kamerarendszer

  • Egyedi, beépített bútorok rendelhetők


 


A házak elhelyezése tudatos tervezés eredménye: nincs közös fal, nincs zsúfoltság – csak nyugalom, tér és valódi családi házas életérzés.


 


A lakás megfelel az Otthon Start Program feltételeinek.


Családosok számára CSOK+ igényelhető.


 


Köszönjük, hogy elolvasta hirdetésünket!


Amennyiben szeretné közelebbről is megismerni az ingatlant, készséggel állunk rendelkezésére részletes információkkal és helyszíni bemutatóval.


További információért vagy időpont-egyeztetésért hívjon bizalommal!


Tegye meg az első lépést új otthona felé – várjuk hívását!

Térkép

Ingatlan adásvétel ügyvédi díja
418 500 Ft
a hirdetésben szereplő ár alapján
  • A vételár 0,45%-a
  • Szerződéscsomag teljeskörű képviselettel
  • Ingyenes tulajdoni lap ellenőrzés
  • Az ÁFA-t már tartalmazza
Érdekel az ajánlat →
A tájékoztatás nem teljes körű és nem minősül ajánlattételnek. Minimum díj: 150 000 Ft, maximum díj: 600 000 Ft. A díj kizárólag lakóingatlan adásvételére vonatkozik.

A hirdető elérhetősége

Mag-Ház Ingatlan

+36 30 890