Eladó Ház- házrész
Hirdetéskód: 9305128
Openhouse Székesfehérvár Ingatlaniroda
Felújításhoz személyi kölcsönt keres? Kalkuláljon itt! →
Ez a hirdetés megfelelhet a FIX 3%-os programnak.
Tudj meg többet a részletekről itt.
113.00 m2
ALAPTERÜLET4
SZOBASZÁMnincs megadva
ÉPÍTÉSEgyéb fűtés
FŰTÉS- CSOK igénybe vehető nem
- Tetőtér beépíthető nem
- Építés éve 2025
- Fűtés Egyéb fűtés
- Klíma nem
- Szigetelt nem
A+++
A++
A+
A
B
C
D
E
F
G
H
I
Az ingatlan leírása
Az Openhouse Székesfehérvár Ingatlaniroda kínálatában eladó a #180631 hivatkozási számú székesfehérvári családi ház.
Székesfehérvári ingatlan iroda eladásra kínál modern stílusban épülő önálló családi házakat Öreghegyen.
LOKÁCIÓ: Székesfehérváron az Öreghegyen egy csendes utcában található az építkezés. A környéken szép megjelenésű ingatlanok találhatóak, az építkezés megközelítése új aszfaltos úton biztosított. A közelben megtalálható szupermarket, iskola, óvoda és buszmegálló is. A város és az autópálya is egyaránt könnyen megközelíthető 5-10 perces autóúttal.
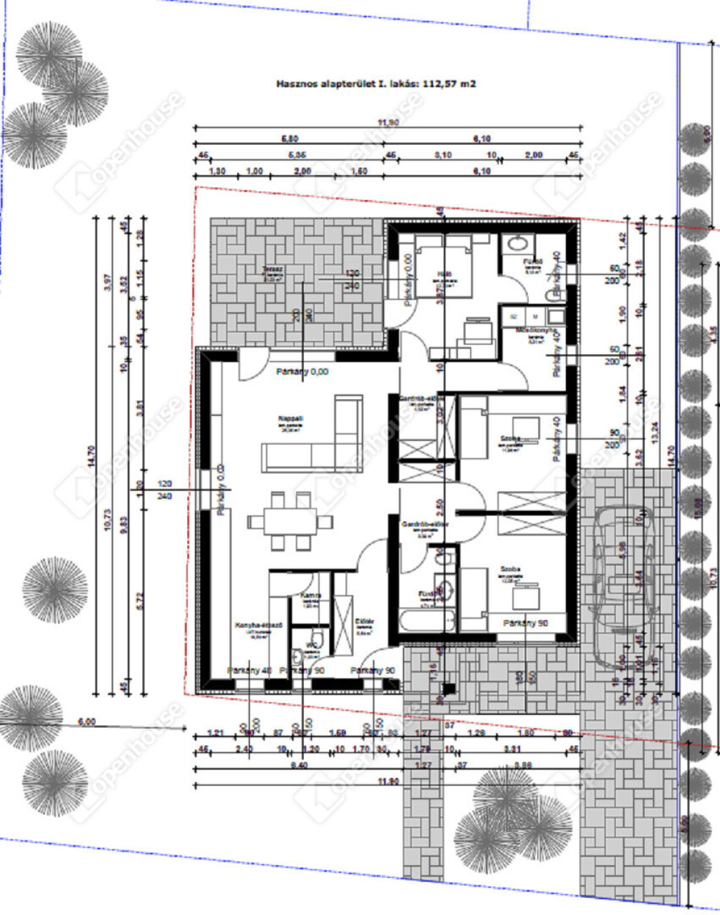
AZ INGATLANRÓL: Az ingatlan minőségi alapanyagok felhasználásával és a modern technológia alkalmazásával készül, a lehető legmagasabb színvonalon, modern megjelenéssel. A nettó alapterület 112,57 m2, ami magába foglal egy hatalmas amerikai konyhás nappalit, 3 hálószobát, 2 fürdőszobát WC-vel,egy vendég WC-vel, egy gardróbot, egy kamrát és egy háztartási helyiséget. Továbbá az ingatlanhoz tartozik egy 21,23 m2-es terasz, és egy saját használatú 533 m2-es telek is.
MŰSZAKI PARAMÉTEREK:
-30-as főfalak, 10-es válaszfalak
-20cm EPS homlokzati hőszigetelés
-30cm födém hőszigetelés
-3 rétegű 5 légkamrás nyílászárók
-Rejtett redőny
-Utcafronti és a két telekrészt elválasztó kerítés
-Térkövezés
-Hőszivattyú + padlófűtés (Panasonic)
-H-tarifás mérőóra
-Kaputelefon védőcsövezése és kábelezése
-1db kerti csap
A KIVITELEZŐ CÉGRŐL: Az ingatlan építését egy több éve megbízhatóan működő Székesfehérvári bejelentésű építőipari vállalkozás kordinálja. Több, már elkészült Székesfehérváron is megtekinthető referencia ingatlant áll rendelkezésre, hogy Ön is meggyőződjön a megfelelő minőségű kivitelezésről. Az építkezés önerőből zajlik, az ingatlan fejlesztésre a kivitelező cégnek a tőke rendelkezésére áll.
FIZETÉSI KONSTRUKCIÓ: Rugalmas fizetési ütem biztosítja a gördülékeny együttműködést, ami mindig a vásárló igényeihez megfelelően van igazítva.
Ha felkeltette érdeklődését ez az eladó székesfehérvári családi ház, vagy bármely más családi ház és bővebb információt szeretne, keressen bizalommal.Hivatkozási szám: #180631
Az Openhouse Székesfehérvár Ingatlaniroda tagjaként várom Önt az országos hálózatunk teljes kínálatával.
A családi ház vásárláshoz hitelt igényelne? Ingyenes hitelközvetítéssel segít Önnek bankfüggetlen hitelszakértőnk.
További szolgáltatásainkkal (pl. értékbecslés, energetikai tanúsítvány, jogi háttér) is segítjük Önt a vásárlásban.
Az otthon érték. Az ingatlan üzlet.
Székesfehérvári ingatlan iroda eladásra kínál modern stílusban épülő önálló családi házakat Öreghegyen.
LOKÁCIÓ: Székesfehérváron az Öreghegyen egy csendes utcában található az építkezés. A környéken szép megjelenésű ingatlanok találhatóak, az építkezés megközelítése új aszfaltos úton biztosított. A közelben megtalálható szupermarket, iskola, óvoda és buszmegálló is. A város és az autópálya is egyaránt könnyen megközelíthető 5-10 perces autóúttal.
AZ INGATLANRÓL: Az ingatlan minőségi alapanyagok felhasználásával és a modern technológia alkalmazásával készül, a lehető legmagasabb színvonalon, modern megjelenéssel. A nettó alapterület 112,57 m2, ami magába foglal egy hatalmas amerikai konyhás nappalit, 3 hálószobát, 2 fürdőszobát WC-vel,egy vendég WC-vel, egy gardróbot, egy kamrát és egy háztartási helyiséget. Továbbá az ingatlanhoz tartozik egy 21,23 m2-es terasz, és egy saját használatú 533 m2-es telek is.
MŰSZAKI PARAMÉTEREK:
-30-as főfalak, 10-es válaszfalak
-20cm EPS homlokzati hőszigetelés
-30cm födém hőszigetelés
-3 rétegű 5 légkamrás nyílászárók
-Rejtett redőny
-Utcafronti és a két telekrészt elválasztó kerítés
-Térkövezés
-Hőszivattyú + padlófűtés (Panasonic)
-H-tarifás mérőóra
-Kaputelefon védőcsövezése és kábelezése
-1db kerti csap
A KIVITELEZŐ CÉGRŐL: Az ingatlan építését egy több éve megbízhatóan működő Székesfehérvári bejelentésű építőipari vállalkozás kordinálja. Több, már elkészült Székesfehérváron is megtekinthető referencia ingatlant áll rendelkezésre, hogy Ön is meggyőződjön a megfelelő minőségű kivitelezésről. Az építkezés önerőből zajlik, az ingatlan fejlesztésre a kivitelező cégnek a tőke rendelkezésére áll.
FIZETÉSI KONSTRUKCIÓ: Rugalmas fizetési ütem biztosítja a gördülékeny együttműködést, ami mindig a vásárló igényeihez megfelelően van igazítva.
Ha felkeltette érdeklődését ez az eladó székesfehérvári családi ház, vagy bármely más családi ház és bővebb információt szeretne, keressen bizalommal.Hivatkozási szám: #180631
Az Openhouse Székesfehérvár Ingatlaniroda tagjaként várom Önt az országos hálózatunk teljes kínálatával.
A családi ház vásárláshoz hitelt igényelne? Ingyenes hitelközvetítéssel segít Önnek bankfüggetlen hitelszakértőnk.
További szolgáltatásainkkal (pl. értékbecslés, energetikai tanúsítvány, jogi háttér) is segítjük Önt a vásárlásban.
Az otthon érték. Az ingatlan üzlet.