Eladó Ház- házrész
Hirdetéskód: 9188764
Fővállalkozó Balla és Balla Kft
Ez a hirdetés megfelelhet a FIX 3%-os programnak.
Tudj meg többet a részletekről itt.
173 m2
ALAPTERÜLET5
SZOBASZÁMnincs megadva
ÉPÍTÉSEgyéb fűtés
FŰTÉS- CSOK igénybe vehető nem
- Tetőtér beépíthető nem
- Építés éve 1992
- Fűtés Egyéb fűtés
- Klíma nem
- Szigetelt nem
A+++
A++
A+
A
B
C
D
E
F
G
H
I
Az ingatlan leírása
Irodánk eladásra kínál Székesfehérvár Feketehegyen 173 m2-es földszintes 5 szobás energiahatékony (alacsony rezsivel rendelkező) szigetelt családi házat hatalmas (2300 m2-es) természetközeli telken garázzsal és medencével, amelyhez Otthon Start Program (3% hitel) igényelhető!
Az ingatlan rendkívül csendes és intim, de egyben kiváló közlekedéssel és infrastruktúrával rendelkezik (tömegközlekedés, orvos, iskola, orvos stb. a közelben).
Az épület 2022-ben átalakításra/bővítésre került. Cserélve lett a villamoshálózat, a víz és csatornarendszer is.
Falazat porotherm30 téglából, 20 cm hőszigeteléssel készült. 3 rétegű üvegek, elektromos redőnnyel és rovarhálóval ellátott nyílászárók Tető cserépfedéssel.
Fűtés és a melegvíz: kombi gázkazán termosztáttal + hűtő-fűtő klímák. Nappaliban egy épített cserépkályha biztosítja az alternatív fűtést.
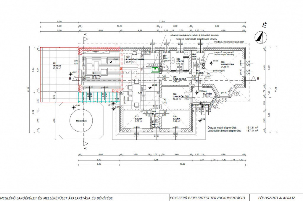
Az Ingatlan nettó területe 151 m2 + 44m2 terasz = 173m2 (terasz 50%-ával számolva), amelynek részei:
1. amerikai konyhás tágas nappali étkezővel
2. télikert
3. előszoba
4. 4 hálószoba
5. 2 fürdőszoba + 2 wc
6. Gardrób
Kertben minden szükséges paraméter adott: garázs/ műhely/ nyárikonyha/veteményes/gyümölcsfák, ahol akár önellátó gazdálkodás is lehetséges.
Egy kis természetközeli magánbirodalom városi környezetben.
Szeressen bele és többé nem akar máshová költözni!
Az ingatlan rendkívül csendes és intim, de egyben kiváló közlekedéssel és infrastruktúrával rendelkezik (tömegközlekedés, orvos, iskola, orvos stb. a közelben).
Az épület 2022-ben átalakításra/bővítésre került. Cserélve lett a villamoshálózat, a víz és csatornarendszer is.
Falazat porotherm30 téglából, 20 cm hőszigeteléssel készült. 3 rétegű üvegek, elektromos redőnnyel és rovarhálóval ellátott nyílászárók Tető cserépfedéssel.
Fűtés és a melegvíz: kombi gázkazán termosztáttal + hűtő-fűtő klímák. Nappaliban egy épített cserépkályha biztosítja az alternatív fűtést.
Az Ingatlan nettó területe 151 m2 + 44m2 terasz = 173m2 (terasz 50%-ával számolva), amelynek részei:
1. amerikai konyhás tágas nappali étkezővel
2. télikert
3. előszoba
4. 4 hálószoba
5. 2 fürdőszoba + 2 wc
6. Gardrób
Kertben minden szükséges paraméter adott: garázs/ műhely/ nyárikonyha/veteményes/gyümölcsfák, ahol akár önellátó gazdálkodás is lehetséges.
Egy kis természetközeli magánbirodalom városi környezetben.
Szeressen bele és többé nem akar máshová költözni!