Eladó Ház- házrész
Hirdetéskód: 9030843
GDN Ingatlanhálózat - Märcz Kft
Ez a hirdetés megfelelhet a FIX 3%-os programnak.
Tudj meg többet a részletekről itt.
84 m2
ALAPTERÜLET3
SZOBASZÁMnincs megadva
ÉPÍTÉSnincs megadva
FŰTÉS- CSOK igénybe vehető nem
- Tetőtér beépíthető nem
- Klíma nem
- Szigetelt nem
A+++
A++
A+
A
B
C
D
E
F
G
H
I
Az ingatlan leírása
Új építésű, korszerű, önálló családiházak 450m2 kerttel!
Otthon Start Program ( 3%-os hitel) igényelhető!
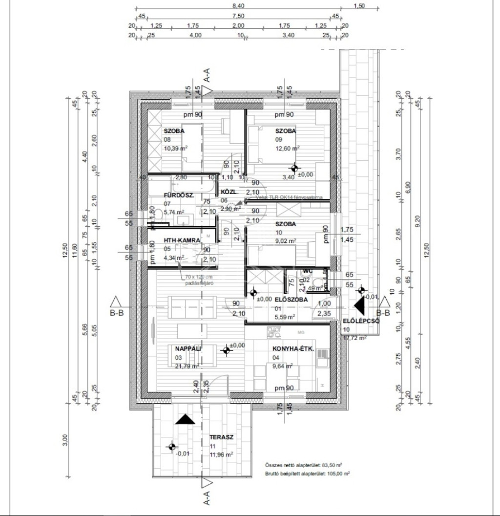
H-004368. Székesfehérváron, Feketehegyen frekventált, kedvelt részén (Rába utca-Körösi utca) RÁBA-LIGET Lakóparkban, összközműves 450m2-es építési telken eladó egy egyszintes, új építésű igényes, egyedi kivitelezésű 85 m2 hasznos alapterületű, nappali + 3 szobás családi ház terasszal.
Energiahatékony ingatlan, rezsiköltség rendkívül alacsony!
Az ingatlan könnyen megközelíthető, a környék tömegközlekedése jó, pár perc alatt gyalogosan elérhető a buszmegálló. A központban orvos, iskola, bölcsőde, óvoda, Bevásárló központ, üzletek megtalálhatóak. Környezete kiépült.
A területre 6db családiház épül, elérhető ingatlanok:
- 2 db nappali+2 szobás, ELKELT
- 3db nappali+3 szobás : 2 DB SZABAD
- 1db nappali+4 szobás : SZABAD
A ház tágas, világos, minőségi anyagokból készült. A ház szerkezete Porotherm tégla kívülről 20 cm szigeteléssel nemesvakolattal. A födém külső borítás cseréppel (BRAMAC) készül alatta a megfelelő vastagságú fóliázattal.
A nyílászárók műanyagból készültek,3 rétegű hőszigetelt üvegezéssel, rejtett redőny tokkal. A burkolatok magas minőségű járólap, illetve laminált padló. Fűtése-melegvíz: hőszivattyú megoldással, padlófűtéssel.
Az ár tartalmazza:,
- a kulcsrakész kivitelezésen felül, a telkeket elválasztó kerítést 3 oldalról, 1 db klímát, térkövezett teraszt és járdát, H-tarifa bekötést ( a H-tarifás órát nem,) locsolómérős vízórát
Átadási határidő: a 3-4 szobás házak 2026.05.30
Az ár NEM tartalmazza:
- beépített bútorok, konyhabútor gépekkel, lámpatestek, utcafronti kerítés kapu, redőny ( beépített redőnytokot igen, motoros kiállással), rovarhálót
Az ár tartalmazza: a kulcsrakész kivitelezést,
Megközelítés: aszfaltozott útról, saját utcafront, saját telekterület, ezen belül saját önálló mérőórák. (víz, locsolómérő is, villany, csatorna van)
A ház elosztását tekintve: Amerikaikonyhás nappali étkező + 3 szoba (11m2), gardrób +fürdőszoba + vendég wc, terasz (12m2)
Praktikusság miatt fő szempont volt, az élhető terek kialakítása is ezért 11 m2 nagyságú hálószoba készült. A nappaliból közvetlen kijárat van a teraszra
Fontosabb paraméterek:
● 2025-ben épül
● 450 m2 önálló telekterület
● Porotherm tégla, 20cm grafitos szigeteléssel, nemesvakolattal, padlóban 10cm, födémen 25cm szigetelés
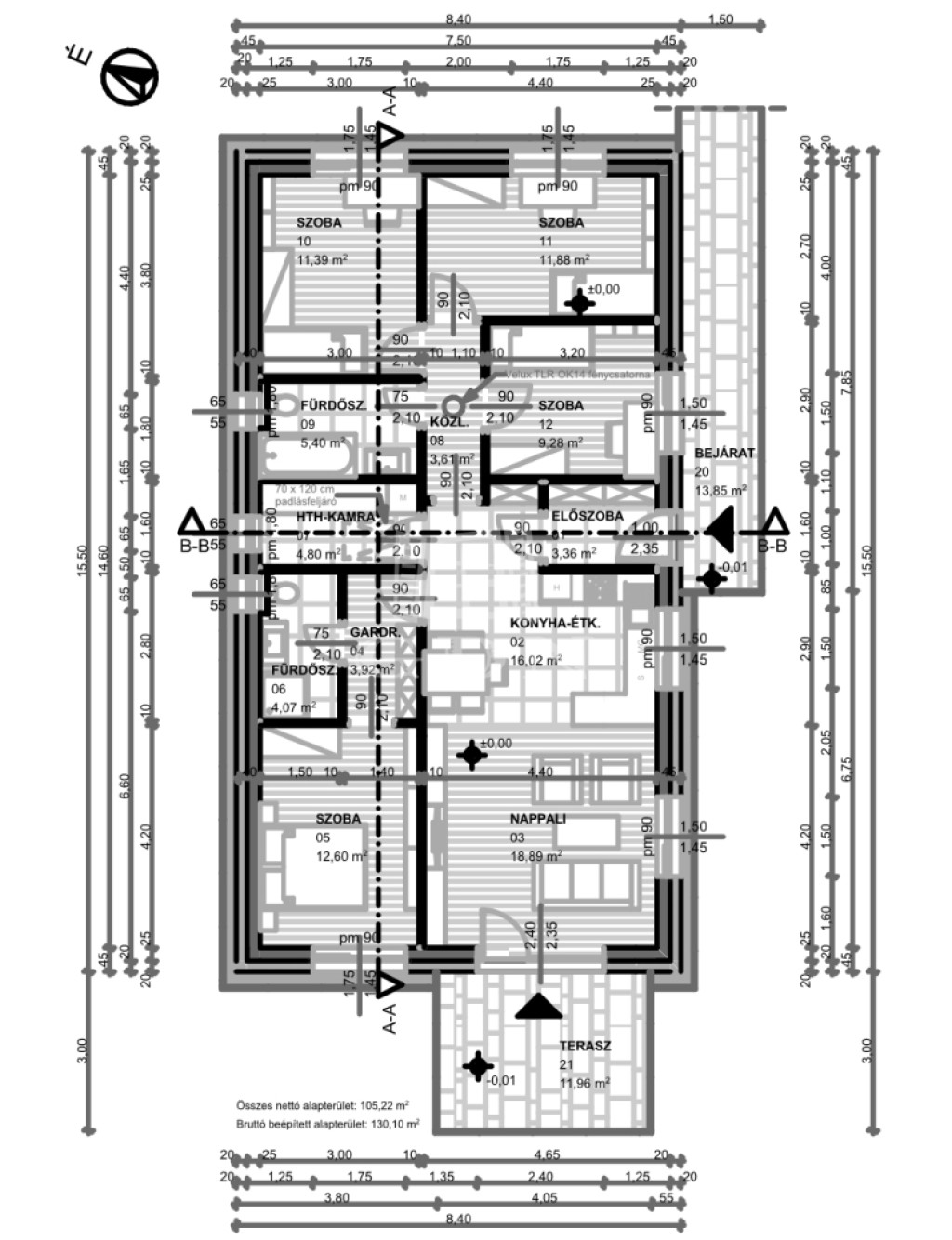
● Nappali + 3 hálószoba + kicsi gardrób+ háztartási helyiség +fürdőszoba-wc-vel+ vendég wc+ terasz ( Választható nappali+3szoba + 2 fürdőszobás változatban is felár nélkül!)
● Saját telekterület, saját utcafront
● Akadálymentesített bejutás
● Hőszivattyú, padlófűtés, 1db klíma az árban
● a riasztó és klíma rendszer alapszerelés
● Alacsony rezsiköltség,
Eladási irányár:
• 2 szobás ház (nappali + 2 szoba): ELKELT
• 3 szobás ház (nappali + 3 szoba): 87.500.000 Ft 2DB SZABAD
• 4 szobás ház (nappali + 4 szoba): 96.900.000 Ft 1 DB SZABAD
Igény esetén bizonyos készültségi fok eléréséig, a belső burkolatok, ajtók szaniterek választhatók.
Megbízható és tapasztalt kivitelező jegyzi a ház építését, több mint 30 éve múlttal, számtalan referenciaépülettel rendelkezik Székesfehérváron.
A vásárláshoz, a jelenleg aktuális otthonteremtésére vonatkozó támogatás igénybe vehető (CSOK, Jelzáloghitel, Babaváró kölcsön, Piaci hitel…)
Az ingatlan adottságainak, fekvésének köszönhetően alkalmas, gyermekes családoknak.. továbbá vállalkozásra, üzleti vagy befektetési célra, hiszen akár bérbe adható,vagy irodai tevékenység,(Csendes tevékenység engedélyezett).
Ha felkeltette érdeklődését, hívjon bizalommal, (hétvégén is) éljen ingyenes, személyre szabott hitelügyintézés szolgáltatásunkkal. Segítünk továbbá adásvételhez szükséges ügyvédi közreműködésben, energetikai tanúsítvány, valamint értékbecslés elkészítésében.
For English information please send a message. ...TOVÁBBI, TÖBBEZRES INGATLAN KÍNÁLAT: - GDN azonosító: 379848
Otthon Start Program ( 3%-os hitel) igényelhető!
H-004368. Székesfehérváron, Feketehegyen frekventált, kedvelt részén (Rába utca-Körösi utca) RÁBA-LIGET Lakóparkban, összközműves 450m2-es építési telken eladó egy egyszintes, új építésű igényes, egyedi kivitelezésű 85 m2 hasznos alapterületű, nappali + 3 szobás családi ház terasszal.
Energiahatékony ingatlan, rezsiköltség rendkívül alacsony!
Az ingatlan könnyen megközelíthető, a környék tömegközlekedése jó, pár perc alatt gyalogosan elérhető a buszmegálló. A központban orvos, iskola, bölcsőde, óvoda, Bevásárló központ, üzletek megtalálhatóak. Környezete kiépült.
A területre 6db családiház épül, elérhető ingatlanok:
- 2 db nappali+2 szobás, ELKELT
- 3db nappali+3 szobás : 2 DB SZABAD
- 1db nappali+4 szobás : SZABAD
A ház tágas, világos, minőségi anyagokból készült. A ház szerkezete Porotherm tégla kívülről 20 cm szigeteléssel nemesvakolattal. A födém külső borítás cseréppel (BRAMAC) készül alatta a megfelelő vastagságú fóliázattal.
A nyílászárók műanyagból készültek,3 rétegű hőszigetelt üvegezéssel, rejtett redőny tokkal. A burkolatok magas minőségű járólap, illetve laminált padló. Fűtése-melegvíz: hőszivattyú megoldással, padlófűtéssel.
Az ár tartalmazza:,
- a kulcsrakész kivitelezésen felül, a telkeket elválasztó kerítést 3 oldalról, 1 db klímát, térkövezett teraszt és járdát, H-tarifa bekötést ( a H-tarifás órát nem,) locsolómérős vízórát
Átadási határidő: a 3-4 szobás házak 2026.05.30
Az ár NEM tartalmazza:
- beépített bútorok, konyhabútor gépekkel, lámpatestek, utcafronti kerítés kapu, redőny ( beépített redőnytokot igen, motoros kiállással), rovarhálót
Az ár tartalmazza: a kulcsrakész kivitelezést,
Megközelítés: aszfaltozott útról, saját utcafront, saját telekterület, ezen belül saját önálló mérőórák. (víz, locsolómérő is, villany, csatorna van)
A ház elosztását tekintve: Amerikaikonyhás nappali étkező + 3 szoba (11m2), gardrób +fürdőszoba + vendég wc, terasz (12m2)
Praktikusság miatt fő szempont volt, az élhető terek kialakítása is ezért 11 m2 nagyságú hálószoba készült. A nappaliból közvetlen kijárat van a teraszra
Fontosabb paraméterek:
● 2025-ben épül
● 450 m2 önálló telekterület
● Porotherm tégla, 20cm grafitos szigeteléssel, nemesvakolattal, padlóban 10cm, födémen 25cm szigetelés
● Nappali + 3 hálószoba + kicsi gardrób+ háztartási helyiség +fürdőszoba-wc-vel+ vendég wc+ terasz ( Választható nappali+3szoba + 2 fürdőszobás változatban is felár nélkül!)
● Saját telekterület, saját utcafront
● Akadálymentesített bejutás
● Hőszivattyú, padlófűtés, 1db klíma az árban
● a riasztó és klíma rendszer alapszerelés
● Alacsony rezsiköltség,
Eladási irányár:
• 2 szobás ház (nappali + 2 szoba): ELKELT
• 3 szobás ház (nappali + 3 szoba): 87.500.000 Ft 2DB SZABAD
• 4 szobás ház (nappali + 4 szoba): 96.900.000 Ft 1 DB SZABAD
Igény esetén bizonyos készültségi fok eléréséig, a belső burkolatok, ajtók szaniterek választhatók.
Megbízható és tapasztalt kivitelező jegyzi a ház építését, több mint 30 éve múlttal, számtalan referenciaépülettel rendelkezik Székesfehérváron.
A vásárláshoz, a jelenleg aktuális otthonteremtésére vonatkozó támogatás igénybe vehető (CSOK, Jelzáloghitel, Babaváró kölcsön, Piaci hitel…)
Az ingatlan adottságainak, fekvésének köszönhetően alkalmas, gyermekes családoknak.. továbbá vállalkozásra, üzleti vagy befektetési célra, hiszen akár bérbe adható,vagy irodai tevékenység,(Csendes tevékenység engedélyezett).
Ha felkeltette érdeklődését, hívjon bizalommal, (hétvégén is) éljen ingyenes, személyre szabott hitelügyintézés szolgáltatásunkkal. Segítünk továbbá adásvételhez szükséges ügyvédi közreműködésben, energetikai tanúsítvány, valamint értékbecslés elkészítésében.
For English information please send a message. ...TOVÁBBI, TÖBBEZRES INGATLAN KÍNÁLAT: - GDN azonosító: 379848