Eladó Ház- házrész
Hirdetéskód: 9327484

-

Felújításhoz személyi kölcsönt keres? Kalkuláljon itt! →
142.00 m2
ALAPTERÜLET
4
SZOBASZÁM
Tégla
ÉPÍTÉS
Hőszivattyú
FŰTÉS
  • Ingatlan komfort Duplakomfortos
  • Fűtés Hőszivattyú
  • Építőanyag Tégla
  • Erkély, terasz Terasz 21.00m2
Energetikai besorolás: Nincs meghatározva
A+++
A++
A+
A
B
C
D
E
F
G
H
I

Az MBH Bank személyi kölcsön ajánlata

Fizetett hirdetés
1 millió Ft
6 évre
20 585 Ft/hó
THM: 14.5%
Részletek →
2 millió Ft
6 évre
41 169 Ft/hó
THM: 14.5%
Részletek →
3 millió Ft
6 évre
61 754 Ft/hó
THM: 14.5%
Részletek →

A tájékoztatás nem teljes körű és nem minősül ajánlattételnek.

Az ingatlan leírása

Székesfehérváron, Öreghegyen új építésű ikerház mindkét felét kínálom eladásra. Az ingatlanok frekventált helyen, mégis nyugodt utcában kerülnek megépítésre, egymás mellé, garantálva a két tulajdonos nyugalmát, saját kerhasználattal.


A közelben iskola, óvoda, bevásárló központ, étterem található az M7-es-re való feljutás pár percet vesz igénybe.


Az ingatlanok alapja már készen van, így a leendő tulajdonosoknak lehetőségük van a belső tereken változtatni valamint a belső burkolatokon, szanitereken. A házak külső megjelenése a mai modern minimál stílust tükrözi lapostetővel, elegáns, kifinomult színkombinációval.


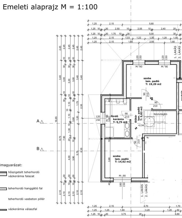
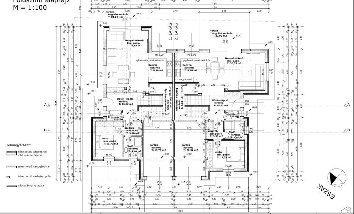
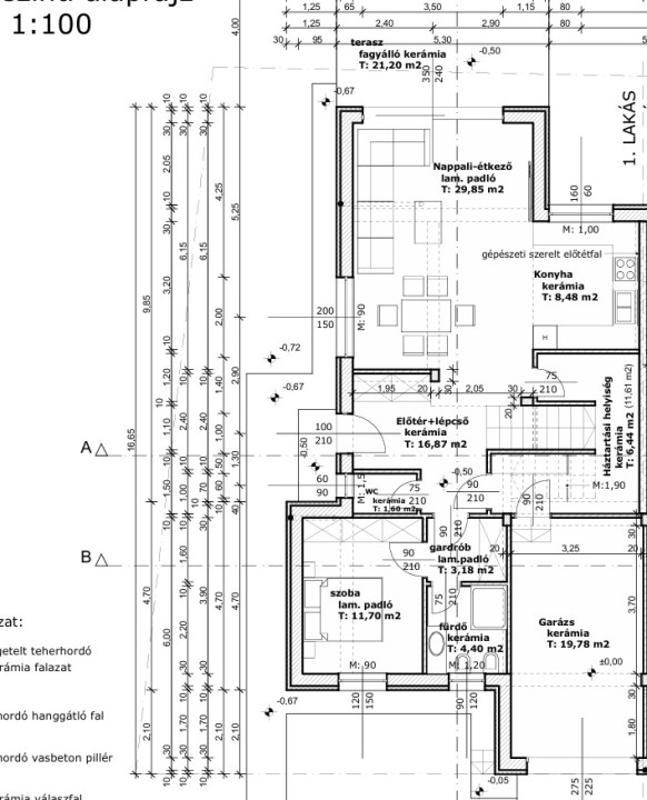
Földszinten található egy tágas előszoba, melyből egy WC kézmosó nyílik (vendég WC), majd az amerikai konyha étkezős nappaliba érkezünk ebből nyílik egy hálószoba, gardrob, fürdőszobával, a lépcső alatt található egy mosókonyha is, kihasználva minden nm-ert


Emeleten található 2 hálószoba és egy tágas fürdőszoba.


Földszint nm: 82,51 nm, emelet 49,49 nm gépkocsitároló, 19,78 nm terasz 21,2 nm


A feltüntetett nm osp szerinti nm (emelet, földszint + terasz 1/2)


Műszaki tartalom: Főfalazata 30 cm-es Wienerberger X-therm rapyd dryfix téglából készül 10 cm-es szigeteléssel,


Fűtés-, hűtése-: egy levegő-víz hőszivattyú gondoskodik (padlófűtés, mennyezeti hűtés)


Szellőző rendszer, riasztó, kamerarendszer becsövezve, vízlágyító készülékhez kiállás elkészítése megtörténik.
Nyílászárók: hő és hangszigetelt kivitelben készülnek az ablakokon, teraszajtókon motoros redőnyök és szúnyoghálók tartoznak, a garázskapuk motorral, távvezérlővel működnek.


Kérésre bővebb műszaki tartalmat küldök:


A kivitelező több referencia munkával rendelkezik. Energetikai besorolása: A+


Díjmentes, személyre szabott hitelügyintéssel állunk ügyfeleink rendelkezésre.


 

Térkép

Ingatlan adásvétel ügyvédi díja
600 000 Ft
a hirdetésben szereplő ár alapján
  • A vételár 0,45%-a
  • Szerződéscsomag teljeskörű képviselettel
  • Ingyenes tulajdoni lap ellenőrzés
  • Az ÁFA-t már tartalmazza
Érdekel az ajánlat →
A tájékoztatás nem teljes körű és nem minősül ajánlattételnek. Minimum díj: 150 000 Ft, maximum díj: 600 000 Ft. A díj kizárólag lakóingatlan adásvételére vonatkozik.

A hirdető elérhetősége

Beropex Consulting Ingatlaniroda

+36 70 331