Eladó Ház- házrész
Hirdetéskód: 9225186
Openhouse Székesfehérvár Ingatlaniroda
98 m2
ALAPTERÜLET4
SZOBASZÁMnincs megadva
ÉPÍTÉSnincs megadva
FŰTÉS- CSOK igénybe vehető nem
- Tetőtér beépíthető nem
- Építés éve 2026
- Klíma nem
- Szigetelt nem
A+++
A++
A+
A
B
C
D
E
F
G
H
I
Az ingatlan leírása
Az Openhouse Székesfehérvár Ingatlaniroda kínálatában eladó a #178470 hivatkozási számú székesfehérvári családi ház.
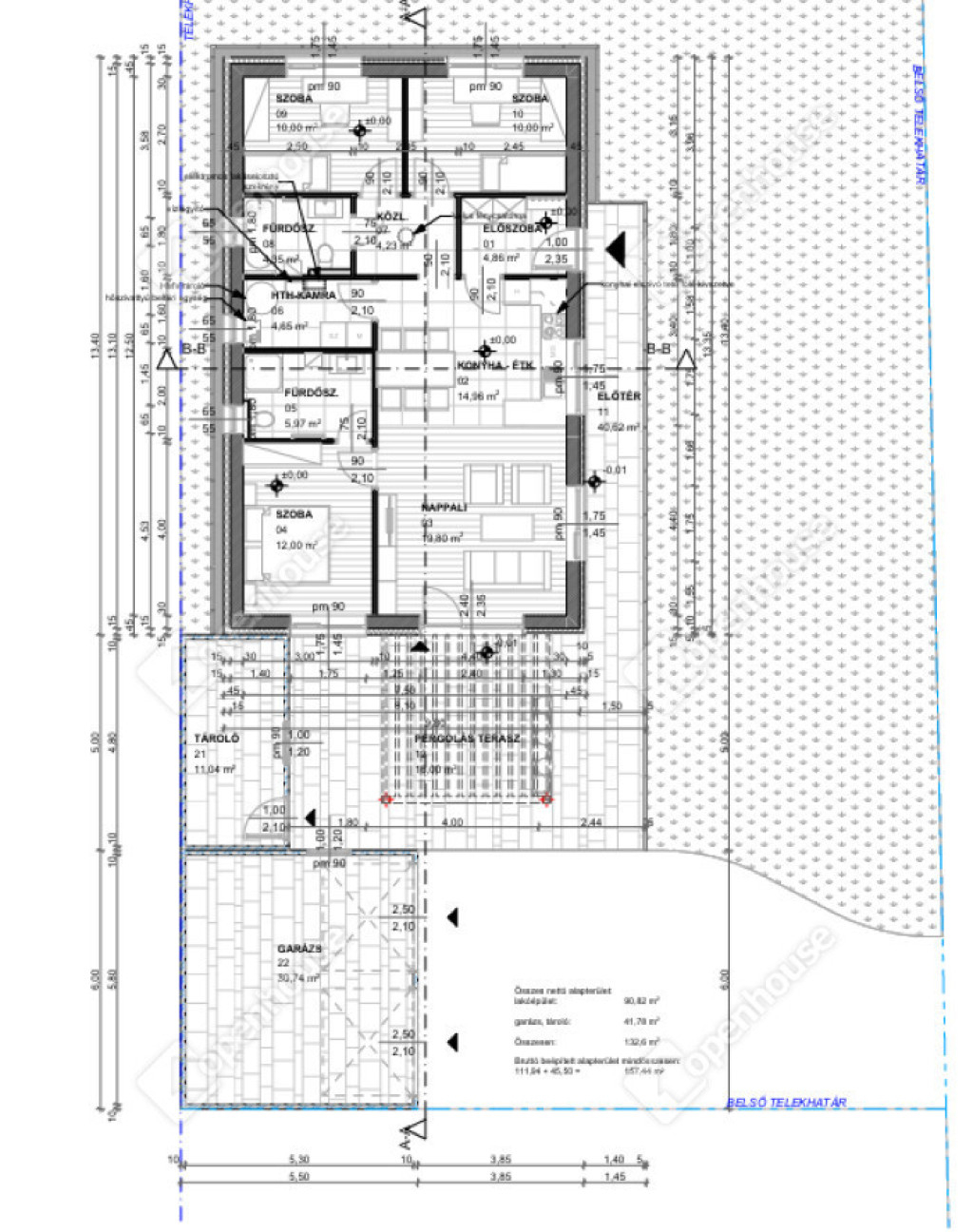
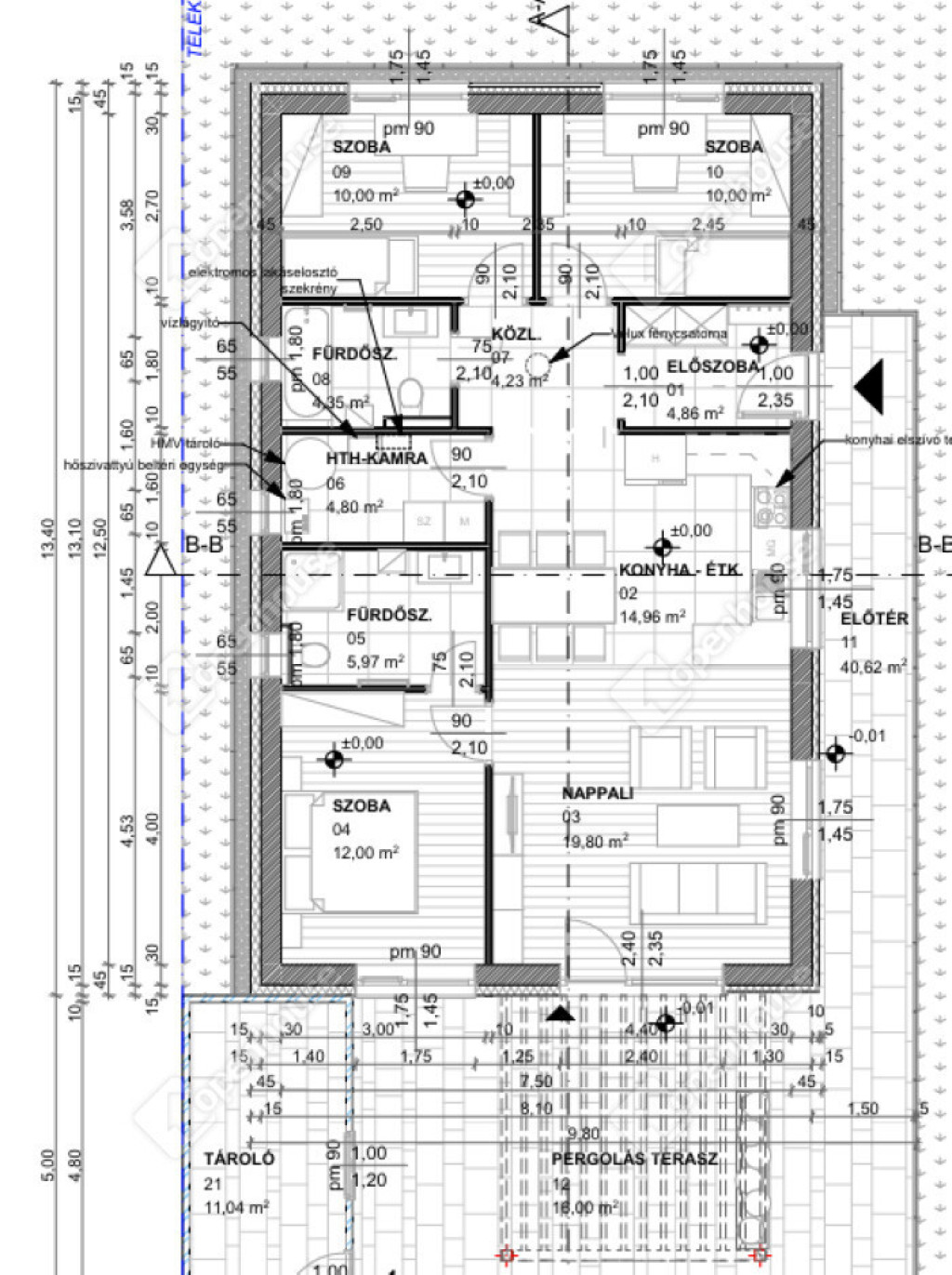
A Fehérvár Plastic & Cleaning Kft, 2026 Oravicai projekt keretében, 2025/2026-ös új építésű egységes megjelenésű modern több extrákkal rendelkező nettó 90 m2-es alapterületű „AA+”energetikájú hőszivattyús + klímás ingatlanok 2 állásos garázzsal + tárolóval, berendezett gépesített konyhával, terasszal Székesfehérváron, a Maros-hegyen családi házas övezetében csendes utcában eladók!
Főbb jellemzők:
- 597,76 m2 telekrészen,
- 90,82 m2 nettó lakóterület
- 16 m2 terasz + 11,04 m2 tároló +30,74 m2 garázs
Helység lista:
- 1 x Nappali + amerikai konyha (19,80 m2 + 14,96 m2)
- 1 x előszoba (4,86 m2) + 1 x közlekedő (4,23 m2) + 1 x kamra + háztartási helység (4,65 m2)
- 2 x fürdő + 2 x WC (5,97 m2 + 4,35 m2)
- 3 x hálószoba (2 x 10 m2 + 1 x 12 m2)
Műszaki tartalom az alábbi paramétereket tartalmazza:
Alapozás – lábazat – szigetelés:
- Alapozás C-16 beton
- Lábazati fal: Leier ZS30 zsalukő + vasalással + 15 cm zúzottkőágy +
- 10 cm XPS hőszigetelő lemezszigetelés
Falazat:
- Külső teherhordó fal: POROTHERM 30 X-THERM tégla / Leier tégla
- BAUMITF 30 falazó habarcs
- 2 rtg. GV-35 vízszigetelés falak alatt
- Válaszfalak fémvázas, dupla kartonborítású szerkezet + 5 cm hangátló szigetelés
Födém – koszorú - áthidaló
- Trapézlemezes födém szerkezet
- Vasbeton koszorú
- Porotherm / Leier nyílásáthidaló rendszerek
- Koszorúnál 2 cm XPS 2 oldalú köpeny hőszigetelés
Tetőszerkezet:
- Szeglemezes faszerkezetű fedélszék (integrált kialakítású)
- Bramac betoncserép fedés + cserép léc/ ellen léc + alátét fólia
- 25 cm Knauf hőszigetelés
Nyílászárók:
- Rehau / Gealan profil rendszerek, 3 rétegű üvegezéssel, Uw:1.0
- Rejtett redőnytok + elektromos redőny + szúnyogháló
- 2 cm por festett alumínium párkány
- Beltéri nyílászárók: INVADOCPL felületű ajtó (4 színben)
Szigetelések:
- 15 cm AT-H80 homlokzatoknál
- 15 cm / 12 cm XPS hőszigetelés lábazatoknál
Épületgépészet:
- Riello 8,3 KW mono blokkos hőszivattyú (levegő-víz rendszerű)
- Több körös padlófűtés
- Meleg víz: elektromos üzemű hőtárolós tartály
- Törülközőszárító radiátorok (fürdőkben kiegészítő fűtésként)
- Légkondicionáló berendezés 1 db 3,5 kW-os hűtő-fűtő klíma kerül (nappaliban)
- Egyedi szellőzés kiépítés fürdőkben / háztartáshelységben
- Gázszerelés: nincs
Elektromos kialakítás:
- dupla szigetelésű réz vezetékek
- 3 x fázis / 1 x 32 A
- H tarifa szekrény
- Riasztó (kb. 200.000 Ft értékben)
- Informatikai rendszer
- Kaputelefon rendszer
Extrák:
- Konyha + előszoba bútortervezés + gyártása + beépítése
- Gépesített konyha (teljes konyha kb. 2,5 millió Ft értékben)
- Dísz (márvány) burkolat a bejárati homlokzaton
- Terasz építése (zúzottkő ágyazat + szegély + szürke térkő burkolat)
- 11 m2 alapterületű igényes lemeztároló + aljzatbetonnal
- 30,74 m2 alapterületű minőségi lemez garázs + aljzatbetonnal
- Frontoldali kerítés
- Térkő burkolat
Egyéb jellemzők:
- Törmelékmentes tereprendezés, geotextília terítés
- Épület körül kavicságy (kulé kavics) + járda szegéllyel
- Kert csap
Építkezés várható befejezése: 2026.10.01.
Beruházóról:
- saját szakember gárda
- önerős beruházás (saját forrásból finanszírozva)
Keretösszegek:
Vásárlási hely megkötése nélkül!
Az összegek variálhatóak a tételek között!
- Hideg és meleg burkolatok padlón / oldalfalakon (csempe, laminált padló)
Nettó:750.000 Ft
Fürdőszobai berendezések, csaptelepek
Nettó: 720.000 Ft
- Elektromos berendezési tárgyak (lámpatestek, dugaljak, kapcsolók)
Nettó:400.000 Ft
Fizetési feltételek:
- Több lehetőség, több opció!
- Akár 10 %-os önrésszel is!
- CSOK + (3 %-os kamattámogatott hitel) igényelhető!
A hirdetésben szereplő adatok tájékoztató jellegűek!
Beruházó a műszaki berendezések (azonos paraméterek mellett) típus változtatás jogát fenntartja!
Bővebb információért keressen bizalommal!
Ha felkeltette érdeklődését ez az eladó székesfehérvári családi ház, vagy bármely más családi ház és bővebb információt szeretne, keressen bizalommal.Hivatkozási szám: #178470
Az Openhouse Székesfehérvár Ingatlaniroda tagjaként várom Önt az országos hálózatunk teljes kínálatával.
A családi ház vásárláshoz hitelt igényelne? Ingyenes hitelközvetítéssel segít Önnek bankfüggetlen hitelszakértőnk.
További szolgáltatásainkkal (pl. értékbecslés, energetikai tanúsítvány, jogi háttér) is segítjük Önt a vásárlásban.
Az otthon érték. Az ingatlan üzlet.
A Fehérvár Plastic & Cleaning Kft, 2026 Oravicai projekt keretében, 2025/2026-ös új építésű egységes megjelenésű modern több extrákkal rendelkező nettó 90 m2-es alapterületű „AA+”energetikájú hőszivattyús + klímás ingatlanok 2 állásos garázzsal + tárolóval, berendezett gépesített konyhával, terasszal Székesfehérváron, a Maros-hegyen családi házas övezetében csendes utcában eladók!
Főbb jellemzők:
- 597,76 m2 telekrészen,
- 90,82 m2 nettó lakóterület
- 16 m2 terasz + 11,04 m2 tároló +30,74 m2 garázs
Helység lista:
- 1 x Nappali + amerikai konyha (19,80 m2 + 14,96 m2)
- 1 x előszoba (4,86 m2) + 1 x közlekedő (4,23 m2) + 1 x kamra + háztartási helység (4,65 m2)
- 2 x fürdő + 2 x WC (5,97 m2 + 4,35 m2)
- 3 x hálószoba (2 x 10 m2 + 1 x 12 m2)
Műszaki tartalom az alábbi paramétereket tartalmazza:
Alapozás – lábazat – szigetelés:
- Alapozás C-16 beton
- Lábazati fal: Leier ZS30 zsalukő + vasalással + 15 cm zúzottkőágy +
- 10 cm XPS hőszigetelő lemezszigetelés
Falazat:
- Külső teherhordó fal: POROTHERM 30 X-THERM tégla / Leier tégla
- BAUMITF 30 falazó habarcs
- 2 rtg. GV-35 vízszigetelés falak alatt
- Válaszfalak fémvázas, dupla kartonborítású szerkezet + 5 cm hangátló szigetelés
Födém – koszorú - áthidaló
- Trapézlemezes födém szerkezet
- Vasbeton koszorú
- Porotherm / Leier nyílásáthidaló rendszerek
- Koszorúnál 2 cm XPS 2 oldalú köpeny hőszigetelés
Tetőszerkezet:
- Szeglemezes faszerkezetű fedélszék (integrált kialakítású)
- Bramac betoncserép fedés + cserép léc/ ellen léc + alátét fólia
- 25 cm Knauf hőszigetelés
Nyílászárók:
- Rehau / Gealan profil rendszerek, 3 rétegű üvegezéssel, Uw:1.0
- Rejtett redőnytok + elektromos redőny + szúnyogháló
- 2 cm por festett alumínium párkány
- Beltéri nyílászárók: INVADOCPL felületű ajtó (4 színben)
Szigetelések:
- 15 cm AT-H80 homlokzatoknál
- 15 cm / 12 cm XPS hőszigetelés lábazatoknál
Épületgépészet:
- Riello 8,3 KW mono blokkos hőszivattyú (levegő-víz rendszerű)
- Több körös padlófűtés
- Meleg víz: elektromos üzemű hőtárolós tartály
- Törülközőszárító radiátorok (fürdőkben kiegészítő fűtésként)
- Légkondicionáló berendezés 1 db 3,5 kW-os hűtő-fűtő klíma kerül (nappaliban)
- Egyedi szellőzés kiépítés fürdőkben / háztartáshelységben
- Gázszerelés: nincs
Elektromos kialakítás:
- dupla szigetelésű réz vezetékek
- 3 x fázis / 1 x 32 A
- H tarifa szekrény
- Riasztó (kb. 200.000 Ft értékben)
- Informatikai rendszer
- Kaputelefon rendszer
Extrák:
- Konyha + előszoba bútortervezés + gyártása + beépítése
- Gépesített konyha (teljes konyha kb. 2,5 millió Ft értékben)
- Dísz (márvány) burkolat a bejárati homlokzaton
- Terasz építése (zúzottkő ágyazat + szegély + szürke térkő burkolat)
- 11 m2 alapterületű igényes lemeztároló + aljzatbetonnal
- 30,74 m2 alapterületű minőségi lemez garázs + aljzatbetonnal
- Frontoldali kerítés
- Térkő burkolat
Egyéb jellemzők:
- Törmelékmentes tereprendezés, geotextília terítés
- Épület körül kavicságy (kulé kavics) + járda szegéllyel
- Kert csap
Építkezés várható befejezése: 2026.10.01.
Beruházóról:
- saját szakember gárda
- önerős beruházás (saját forrásból finanszírozva)
Keretösszegek:
Vásárlási hely megkötése nélkül!
Az összegek variálhatóak a tételek között!
- Hideg és meleg burkolatok padlón / oldalfalakon (csempe, laminált padló)
Nettó:750.000 Ft
Fürdőszobai berendezések, csaptelepek
Nettó: 720.000 Ft
- Elektromos berendezési tárgyak (lámpatestek, dugaljak, kapcsolók)
Nettó:400.000 Ft
Fizetési feltételek:
- Több lehetőség, több opció!
- Akár 10 %-os önrésszel is!
- CSOK + (3 %-os kamattámogatott hitel) igényelhető!
A hirdetésben szereplő adatok tájékoztató jellegűek!
Beruházó a műszaki berendezések (azonos paraméterek mellett) típus változtatás jogát fenntartja!
Bővebb információért keressen bizalommal!
Ha felkeltette érdeklődését ez az eladó székesfehérvári családi ház, vagy bármely más családi ház és bővebb információt szeretne, keressen bizalommal.Hivatkozási szám: #178470
Az Openhouse Székesfehérvár Ingatlaniroda tagjaként várom Önt az országos hálózatunk teljes kínálatával.
A családi ház vásárláshoz hitelt igényelne? Ingyenes hitelközvetítéssel segít Önnek bankfüggetlen hitelszakértőnk.
További szolgáltatásainkkal (pl. értékbecslés, energetikai tanúsítvány, jogi háttér) is segítjük Önt a vásárlásban.
Az otthon érték. Az ingatlan üzlet.