Eladó Ház- házrész
Hirdetéskód: 9227657
Openhouse Székesfehérvár Ingatlaniroda
116 m2
ALAPTERÜLET4
SZOBASZÁMnincs megadva
ÉPÍTÉSnincs megadva
FŰTÉS- CSOK igénybe vehető nem
- Tetőtér beépíthető nem
- Építés éve 2025
- Klíma nem
- Szigetelt nem
A+++
A++
A+
A
B
C
D
E
F
G
H
I
Az ingatlan leírása
Az Openhouse Székesfehérvár Ingatlaniroda kínálatában eladó a #178747 hivatkozási számú székesfehérvári családi ház.
Székesfehérvár dinamikusan fejlődő, új városrészének, a Harmatosvölgy Lakóparknak a szomszédságában kínáljuk eladásra ezt az új építésű családi házat. A terület rendezett, csendes és nyugodt környezetet biztosít, így tökéletes választás mindazok számára, akik természetközeli, mégis modern otthonra vágynak.
A környék teljes infrastruktúrával rendelkezik: minden közmű be van vezetve, az ingatlan új, frissen aszfaltozott úton közelíthető meg. A környék kimondottan családbarát, igényes, rendezett és folyamatosan fejlődő.
A belváros könnyedén elérhető autóval, így a munkába járás vagy a városi ügyintézés gyors és kényelmes. A természet közelsége, a csendes utcák és a modern infrastruktúra ideális környezetet teremt a harmonikus, minőségi életvitelhez.
Ez az ingatlan kivételes lehetőség mindazok számára, akik új építésű otthont keresnek egy értékálló, folyamatosan fejlődő lakóövezetben.
Műszaki paraméterek:
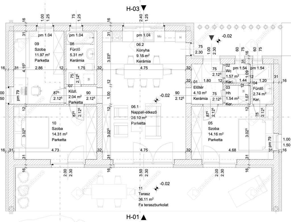
94m2-es családi ház + 36m2 fedett terasz + 9m2 fedett szélfogó,
30-as téglafal 10-es válaszfalak + 15cm homlokzati hőszigetelés,
beton tetőcserép,
önálló 972m2-es telek,
hőszivattyú + padlófűtés,
helyiségenkénti termosztátos vezérlés,
H-tarifás mérőóra,
háromrétegű műanyag nyílászárók,
rejtett redőnytok előkészítés, elektromos kiállásokkal,
klímaberendezés + beépítés,
1db kerti csap,
2db térkövezett kocsibeálló,
épített utcafronti kerítés + személybejáró,
oldalhatárokon 3D kerítés,
választható beltéri ajtók 90 000Ft-ig,
választható csaptelepek és szaniterek 600 000Ft-ig,
szellőzőventillátorok beépítése,
választható burkolatok,
szikkasztó kialakítása,
napelem-előkészítés,
elektromosautó-töltés előkészítés,
További információkért keressen bátran.
Ingyenes, bankfüggetlen CSOK PLUSZ, OTTHON START és piaci hitelügyintézés sorban állás nélkül!
Az otthon érték, az ingatlan üzlet!
Ha felkeltette érdeklődését ez az eladó székesfehérvári családi ház, vagy bármely más családi ház és bővebb információt szeretne, keressen bizalommal.Hivatkozási szám: #178747
Az Openhouse Székesfehérvár Ingatlaniroda tagjaként várom Önt az országos hálózatunk teljes kínálatával.
A családi ház vásárláshoz hitelt igényelne? Ingyenes hitelközvetítéssel segít Önnek bankfüggetlen hitelszakértőnk.
További szolgáltatásainkkal (pl. értékbecslés, energetikai tanúsítvány, jogi háttér) is segítjük Önt a vásárlásban.
Az otthon érték. Az ingatlan üzlet.
Székesfehérvár dinamikusan fejlődő, új városrészének, a Harmatosvölgy Lakóparknak a szomszédságában kínáljuk eladásra ezt az új építésű családi házat. A terület rendezett, csendes és nyugodt környezetet biztosít, így tökéletes választás mindazok számára, akik természetközeli, mégis modern otthonra vágynak.
A környék teljes infrastruktúrával rendelkezik: minden közmű be van vezetve, az ingatlan új, frissen aszfaltozott úton közelíthető meg. A környék kimondottan családbarát, igényes, rendezett és folyamatosan fejlődő.
A belváros könnyedén elérhető autóval, így a munkába járás vagy a városi ügyintézés gyors és kényelmes. A természet közelsége, a csendes utcák és a modern infrastruktúra ideális környezetet teremt a harmonikus, minőségi életvitelhez.
Ez az ingatlan kivételes lehetőség mindazok számára, akik új építésű otthont keresnek egy értékálló, folyamatosan fejlődő lakóövezetben.
Műszaki paraméterek:
94m2-es családi ház + 36m2 fedett terasz + 9m2 fedett szélfogó,
30-as téglafal 10-es válaszfalak + 15cm homlokzati hőszigetelés,
beton tetőcserép,
önálló 972m2-es telek,
hőszivattyú + padlófűtés,
helyiségenkénti termosztátos vezérlés,
H-tarifás mérőóra,
háromrétegű műanyag nyílászárók,
rejtett redőnytok előkészítés, elektromos kiállásokkal,
klímaberendezés + beépítés,
1db kerti csap,
2db térkövezett kocsibeálló,
épített utcafronti kerítés + személybejáró,
oldalhatárokon 3D kerítés,
választható beltéri ajtók 90 000Ft-ig,
választható csaptelepek és szaniterek 600 000Ft-ig,
szellőzőventillátorok beépítése,
választható burkolatok,
szikkasztó kialakítása,
napelem-előkészítés,
elektromosautó-töltés előkészítés,
További információkért keressen bátran.
Ingyenes, bankfüggetlen CSOK PLUSZ, OTTHON START és piaci hitelügyintézés sorban állás nélkül!
Az otthon érték, az ingatlan üzlet!
Ha felkeltette érdeklődését ez az eladó székesfehérvári családi ház, vagy bármely más családi ház és bővebb információt szeretne, keressen bizalommal.Hivatkozási szám: #178747
Az Openhouse Székesfehérvár Ingatlaniroda tagjaként várom Önt az országos hálózatunk teljes kínálatával.
A családi ház vásárláshoz hitelt igényelne? Ingyenes hitelközvetítéssel segít Önnek bankfüggetlen hitelszakértőnk.
További szolgáltatásainkkal (pl. értékbecslés, energetikai tanúsítvány, jogi háttér) is segítjük Önt a vásárlásban.
Az otthon érték. Az ingatlan üzlet.