Eladó Ház- házrész
Hirdetéskód: 9242981
Openhouse Székesfehérvár Ingatlaniroda
Felújításhoz személyi kölcsönt keres? Kalkuláljon itt! →
Ez a hirdetés megfelelhet a FIX 3%-os programnak.
Tudj meg többet a részletekről itt.
156.00 m2
ALAPTERÜLET4
SZOBASZÁMnincs megadva
ÉPÍTÉSGáz (cirkó)
FŰTÉS- CSOK igénybe vehető nem
- Tetőtér beépíthető nem
- Építés éve 2013
- Fűtés Gáz (cirkó)
- Klíma nem
- Szigetelt nem
A+++
A++
A+
A
B
C
D
E
F
G
H
I
Az ingatlan leírása
Az Openhouse Székesfehérvár Ingatlaniroda kínálatában eladó a #179084 hivatkozási számú székesfehérvári családi ház.
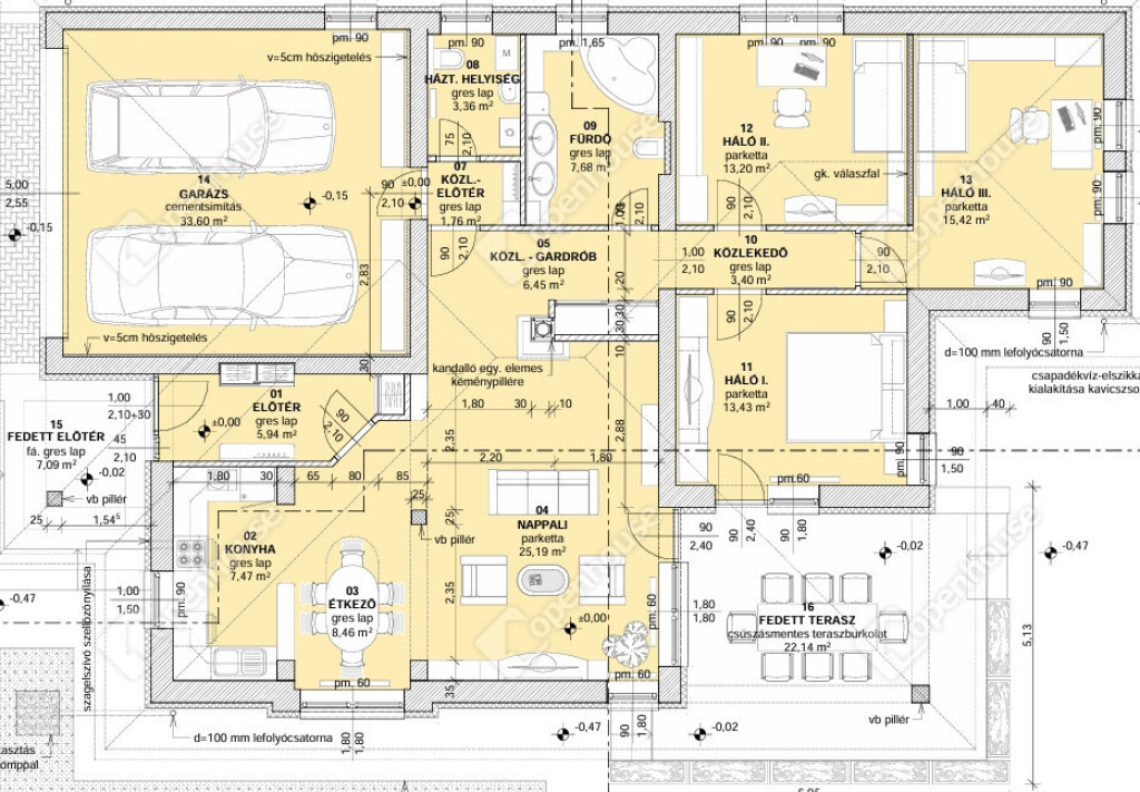
Székesfehérvár egyik legkedveltebb városrészén, Maroshegyen a Harmatosvölgy lakóparkban kínálok eladásra egy önálló, egyszintes 156 m2-es szép, hangulatos családi házat, dupla garázzsal, nagy terasszal, rendezett kerttel. A környék modern, új házakkal beépített, csendes, biztonságos, igazi családbarát környezet, kertvárosi nyugalom! A ház szép, jó állapotú, jó elosztású, minőségi kivitelezéssel épült, igazán hangulatos otthon!
Az ingatlan főbb jellemzői:
- 2013-ban épült 38-as Porotherm téglából, cserép tetőfedéssel.
- 10 cm homlokzati szigetelést és 30 cm födémszigetelést kapott.
- A ház összesen 156 m2-es. Ebből 112 m2 lakótér ( hasznos alapterület), 33 m2 garázs és 30 m2 fedett terasz.
- Nappali + konyha + étkező + 3 szoba + háztartási helyiség + fürdőszoba található az ingatlanban. Tágas terek, jól átgondolt elosztás, kialakítás jellemzi a házat és igazán napfényes, világos!
- Szép beépített, gépesített konyha étkezővel, egy légtérben a nappalival.
- A nappaliból és a hálószobából közvetlen kapcsolat van a fedett teraszra.
- Műanyag nyílászárók, redőnnyel, szúnyoghálóval ellátva.
- Fűtés: kondenzációs gázkazán, padlófűtés és radiátoros hőleadással történik.
- 1 db hűtő-fűtő klíma gondoskodik nyáron is az ideális hőmérsékletről.
- 800 m2-es szép, nagy, körbekerített, gondozott, füvesített kert.
- Locsolórendszer kiépítve!
- Fa kerti tároló (körülbelül 6 m2-es)
- A padlástér járható, pakolható!
- Kamerás riasztórendszer beépítve!
- Elektromos kapu
-- Dupla garázs (33 m2), közvetlen bejárattal a házba!
- Térkövezett beálló a garázs előtt, ami további autónak biztosít kényelmes parkolást.
- A környéken bolt, óvoda, bölcsőde, babauszoda, autóval pár percre Interspar, Praktiker, konditerem, Posta és egyéb fontos intézmény is megtalálható! M7-es autópálya könnyedén, pár perc alatt elérhető!
Ajánlom ezt a csodás házat főként családosoknak, kisgyermekeseknek, de ideális pároknak is akik szeretik a kertvárost a jó levegőt de nem akarnak lemondani a város közelségéről sem. Hívjon bizalommal és tekintsük meg együtt ezt a remek, minden igényt kielégítő otthont! Kollégám díjmentes hitelügyintézéssel áll rendelkezésére.
Ha felkeltette érdeklődését ez az eladó székesfehérvári családi ház, vagy bármely más családi ház és bővebb információt szeretne, keressen bizalommal.Hivatkozási szám: #179084
Az Openhouse Székesfehérvár Ingatlaniroda tagjaként várom Önt az országos hálózatunk teljes kínálatával.
A családi ház vásárláshoz hitelt igényelne? Ingyenes hitelközvetítéssel segít Önnek bankfüggetlen hitelszakértőnk.
További szolgáltatásainkkal (pl. értékbecslés, energetikai tanúsítvány, jogi háttér) is segítjük Önt a vásárlásban.
Az otthon érték. Az ingatlan üzlet.
Székesfehérvár egyik legkedveltebb városrészén, Maroshegyen a Harmatosvölgy lakóparkban kínálok eladásra egy önálló, egyszintes 156 m2-es szép, hangulatos családi házat, dupla garázzsal, nagy terasszal, rendezett kerttel. A környék modern, új házakkal beépített, csendes, biztonságos, igazi családbarát környezet, kertvárosi nyugalom! A ház szép, jó állapotú, jó elosztású, minőségi kivitelezéssel épült, igazán hangulatos otthon!
Az ingatlan főbb jellemzői:
- 2013-ban épült 38-as Porotherm téglából, cserép tetőfedéssel.
- 10 cm homlokzati szigetelést és 30 cm födémszigetelést kapott.
- A ház összesen 156 m2-es. Ebből 112 m2 lakótér ( hasznos alapterület), 33 m2 garázs és 30 m2 fedett terasz.
- Nappali + konyha + étkező + 3 szoba + háztartási helyiség + fürdőszoba található az ingatlanban. Tágas terek, jól átgondolt elosztás, kialakítás jellemzi a házat és igazán napfényes, világos!
- Szép beépített, gépesített konyha étkezővel, egy légtérben a nappalival.
- A nappaliból és a hálószobából közvetlen kapcsolat van a fedett teraszra.
- Műanyag nyílászárók, redőnnyel, szúnyoghálóval ellátva.
- Fűtés: kondenzációs gázkazán, padlófűtés és radiátoros hőleadással történik.
- 1 db hűtő-fűtő klíma gondoskodik nyáron is az ideális hőmérsékletről.
- 800 m2-es szép, nagy, körbekerített, gondozott, füvesített kert.
- Locsolórendszer kiépítve!
- Fa kerti tároló (körülbelül 6 m2-es)
- A padlástér járható, pakolható!
- Kamerás riasztórendszer beépítve!
- Elektromos kapu
-- Dupla garázs (33 m2), közvetlen bejárattal a házba!
- Térkövezett beálló a garázs előtt, ami további autónak biztosít kényelmes parkolást.
- A környéken bolt, óvoda, bölcsőde, babauszoda, autóval pár percre Interspar, Praktiker, konditerem, Posta és egyéb fontos intézmény is megtalálható! M7-es autópálya könnyedén, pár perc alatt elérhető!
Ajánlom ezt a csodás házat főként családosoknak, kisgyermekeseknek, de ideális pároknak is akik szeretik a kertvárost a jó levegőt de nem akarnak lemondani a város közelségéről sem. Hívjon bizalommal és tekintsük meg együtt ezt a remek, minden igényt kielégítő otthont! Kollégám díjmentes hitelügyintézéssel áll rendelkezésére.
Ha felkeltette érdeklődését ez az eladó székesfehérvári családi ház, vagy bármely más családi ház és bővebb információt szeretne, keressen bizalommal.Hivatkozási szám: #179084
Az Openhouse Székesfehérvár Ingatlaniroda tagjaként várom Önt az országos hálózatunk teljes kínálatával.
A családi ház vásárláshoz hitelt igényelne? Ingyenes hitelközvetítéssel segít Önnek bankfüggetlen hitelszakértőnk.
További szolgáltatásainkkal (pl. értékbecslés, energetikai tanúsítvány, jogi háttér) is segítjük Önt a vásárlásban.
Az otthon érték. Az ingatlan üzlet.