Eladó Ház- házrész
Hirdetéskód: 9173388

Fair-m Ingatlaniroda Hódmezővásárhely

FIX 3% Program

Ez a hirdetés megfelelhet a FIX 3%-os programnak.
Tudj meg többet a részletekről itt.

120 m2
ALAPTERÜLET
4
SZOBASZÁM
nincs megadva
ÉPÍTÉS
Központi fűtés
FŰTÉS
  • CSOK igénybe vehető nem
  • Tetőtér beépíthető nem
  • Építés éve 1965
  • Fűtés Központi fűtés
  • Klíma nem
  • Szigetelt nem
Energetikai besorolás: Nincs meghatározva
A+++
A++
A+
A
B
C
D
E
F
G
H
I

Az ingatlan leírása

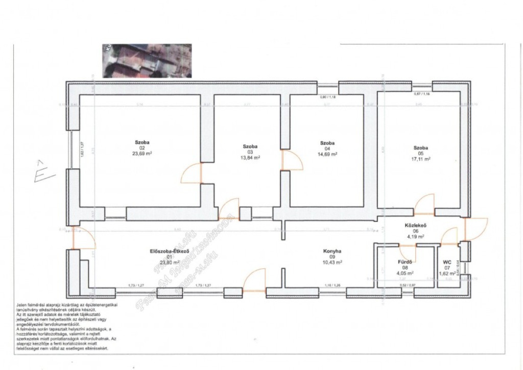
Szegváron a Kurca utcában, családi ház eladó. 2017-től folyamatos újítást végeztek. Régi parasztházat építettek újjá, ez a folyamat 2017-től napjainkig tartott. A házban 4 szoba, egy szobánál hiányzik a padló burkolat, étkező a konyhával lett kialakítva. Fürdőszoba + wc, külön wc mosdóval. A helyiségek burkolata hideg burkolat és laminált padló. Ami hiányzik az a kert rendezés illetve a régi ólak elbontása. A gáz nem került bekötésre, de a csonk megtalálható, így ha valaki szeretné beköttetni van rá lehetősége. Inverteres napelem rendszer került kialakításra,mely hatékonyan csökkenti a rezsi költséget. Ipari áram is van. Az ingatlan elhelyezkedését tekintve a telek közvetlen a festőien szép Kurca folyóig tart. Horgászni szerető embereknek, kimondottan remek lehetőség.



Bővebb információért keressen bizalomma! Az ingatlan teher és per mentes! Pénzügyi szakértőnk, megbízható banki hátérrel és sok éves tapasztalattal segíthet Önnek kiválasztani a megfelelő hitelt a kiválasztott otthona megvásárlásához.




Falazat anyaga: Tégla + vályog

Térkép

A hirdető elérhetősége

Fair-m Ingatlaniroda Hódmezővásárhely

Molnárné Edit
+36 30 678