Eladó Ház- házrész
Hirdetéskód: 9300585
OTP Ingatlanpont Csongrád
Felújításhoz személyi kölcsönt keres? Kalkuláljon itt! →83.00 m2
ALAPTERÜLET1
SZOBASZÁMnincs megadva
ÉPÍTÉSnincs megadva
FŰTÉS- CSOK igénybe vehető nem
- Tetőtér beépíthető nem
- Építés éve 1960
- Klíma nem
- Szigetelt nem
A+++
A++
A+
A
B
C
D
E
F
G
H
I
Az ingatlan leírása
Csak az OTP Ingatlanpontnál!
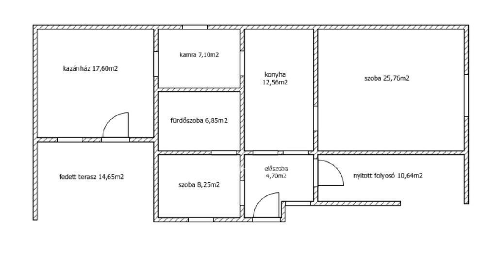
Eladásra kínálunk Szegvár településen, Csongrád-Csanád vármegye területén egy 83 m2-es kertes házat, amely csendes, forgalomtól mentes utcában helyezkedik el, mindössze egy perc sétára a Kurca folyótól. Az ingatlan nyugodt, természetközeli környezetet kínál, ideális választás mindazok számára, akik értékelik a békét, a nagy sétákat vagy akár a horgászat nyújtotta kikapcsolódást. A ház falainak 60%-át téglára cserélték, a megmaradt vályogfalakat aláfalazták, így az épület vízszigetelése kiváló állapotú. A fűtést vegyestüzelésű kazán biztosítja, ugyanakkor a gázcsonk a telekhatáron található, ami lehetőséget ad a későbbi gázfűtés kialakítására. A melegvíz-ellátásról villanybojler gondoskodik. Az 1079 m2-es telek tágas teret kínál bővítésre, kertészkedésre vagy akár további melléképületek kialakítására. Az ingatlan belső munkálatai, az új tulajdonosát várja.
Az Otthon Start Hitelprogram keretében az OTP Bankcsoport teljes körű ügyintézéssel áll az eladók és a vevők rendelkezésére. A kínálatunkból választott ingatlan finanszírozásához kedvezményes hitelkonstrukciókat biztosítunk, valamint lehetőséget kínálunk az OTP Bank által közvetített Babaváró, CSOK PLUSZ, Falusi CSOK és egyéb kölcsönök ügyintézésére is. Igény esetén megbízható ügyvédi közreműködést biztosítunk az adásvételi szerződés megkötéséhez, és segítséget nyújtunk az adásvételhez kapcsolódó további ügyek intézésében. Irodáink Szentesen a Petőfi utca 12. szám alatt (a buszmegálló felől), valamint Csongrádon a Fő utca 54. szám alatt várják a személyes érdeklődőket. Akár hétvégén is hívható vagyok, és amennyiben kényelmesebb, SMS-ben is elér, készséggel visszahívom.
Eladásra kínálunk Szegvár településen, Csongrád-Csanád vármegye területén egy 83 m2-es kertes házat, amely csendes, forgalomtól mentes utcában helyezkedik el, mindössze egy perc sétára a Kurca folyótól. Az ingatlan nyugodt, természetközeli környezetet kínál, ideális választás mindazok számára, akik értékelik a békét, a nagy sétákat vagy akár a horgászat nyújtotta kikapcsolódást. A ház falainak 60%-át téglára cserélték, a megmaradt vályogfalakat aláfalazták, így az épület vízszigetelése kiváló állapotú. A fűtést vegyestüzelésű kazán biztosítja, ugyanakkor a gázcsonk a telekhatáron található, ami lehetőséget ad a későbbi gázfűtés kialakítására. A melegvíz-ellátásról villanybojler gondoskodik. Az 1079 m2-es telek tágas teret kínál bővítésre, kertészkedésre vagy akár további melléképületek kialakítására. Az ingatlan belső munkálatai, az új tulajdonosát várja.
Az Otthon Start Hitelprogram keretében az OTP Bankcsoport teljes körű ügyintézéssel áll az eladók és a vevők rendelkezésére. A kínálatunkból választott ingatlan finanszírozásához kedvezményes hitelkonstrukciókat biztosítunk, valamint lehetőséget kínálunk az OTP Bank által közvetített Babaváró, CSOK PLUSZ, Falusi CSOK és egyéb kölcsönök ügyintézésére is. Igény esetén megbízható ügyvédi közreműködést biztosítunk az adásvételi szerződés megkötéséhez, és segítséget nyújtunk az adásvételhez kapcsolódó további ügyek intézésében. Irodáink Szentesen a Petőfi utca 12. szám alatt (a buszmegálló felől), valamint Csongrádon a Fő utca 54. szám alatt várják a személyes érdeklődőket. Akár hétvégén is hívható vagyok, és amennyiben kényelmesebb, SMS-ben is elér, készséggel visszahívom.