Eladó Ház- házrész
Hirdetéskód: 9314759
Aktív7 Ingatlaniroda
Felújításhoz személyi kölcsönt keres? Kalkuláljon itt! →110.00 m2
ALAPTERÜLET4
SZOBASZÁMnincs megadva
ÉPÍTÉSnincs megadva
FŰTÉS- Belső szintek 2
A+++
A++
A+
A
B
C
D
E
F
G
H
I
Az ingatlan leírása
Legyen a szomszédom! – Az utolsó elérhető házak egyike a Liliom Lakópark főutcáján
13 éve élek a családommal a Liliom Lakóparkban.
Nem térképről és nem prospektusból ismerem a környéket – hanem a mindennapokból.
Ha szeretné, szívesen elmondom, milyen itt élni.
Szegeden, a Liliom Lakóparkban, a Vinkler László úton kínálom megvételre ezt az új építésű, önálló házat, amelynek ikerpárja is eladó.
Főbb jellemzők:
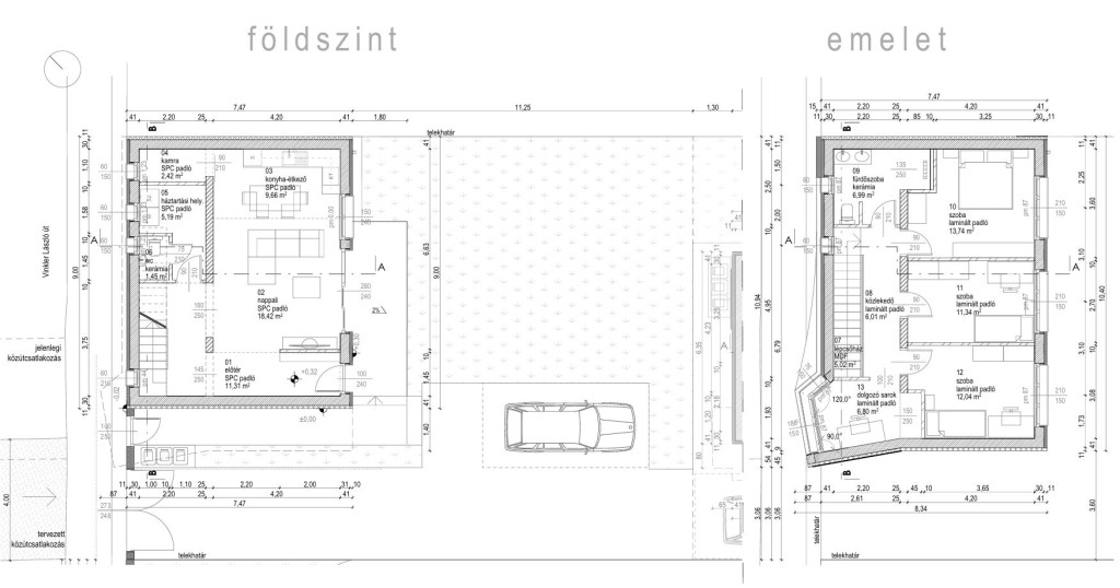
- 205 m² saját használatú telekrész (a teljes telek 700 m²)
- 110,4 m² hasznos alapterület
- nappali + 3 hálószoba + dolgozó
- fürdőszoba az emeleten,
- külön WC kézmosóval a földszinten
- nincs közös fal a szomszéddal, a másik épület 12 méter távolságra
- buszmegálló közvetlenül a ház előtt
Műszaki tartalom – röviden:
- kulcsrakész kivitelezés
- tégla falazat, 10 cm vastag polisztirol hőszigeteléssel
- alacsony rezsi a modern hőszivattyús fűtési rendszernek köszönhetően.
- burkolatok-, ajtók-, szaniterek választhatók, igény szerint módosíthatók
A négy egymás melletti telken összesen 8 új ház épül, ezek közül már csak az én hirdetéseimben szereplő ingatlanok eladóak!
A közelben épülő BYD szegedi autógyár miatt a környék nemcsak otthonként, hanem hosszabb távú befektetésként is értelmezhető.
Ha kérdése van, vagy személyesen is megnézné a helyszínt, hívjon bizalommal.
13 éve élek a családommal a Liliom Lakóparkban.
Nem térképről és nem prospektusból ismerem a környéket – hanem a mindennapokból.
Ha szeretné, szívesen elmondom, milyen itt élni.
Szegeden, a Liliom Lakóparkban, a Vinkler László úton kínálom megvételre ezt az új építésű, önálló házat, amelynek ikerpárja is eladó.
Főbb jellemzők:
- 205 m² saját használatú telekrész (a teljes telek 700 m²)
- 110,4 m² hasznos alapterület
- nappali + 3 hálószoba + dolgozó
- fürdőszoba az emeleten,
- külön WC kézmosóval a földszinten
- nincs közös fal a szomszéddal, a másik épület 12 méter távolságra
- buszmegálló közvetlenül a ház előtt
Műszaki tartalom – röviden:
- kulcsrakész kivitelezés
- tégla falazat, 10 cm vastag polisztirol hőszigeteléssel
- alacsony rezsi a modern hőszivattyús fűtési rendszernek köszönhetően.
- burkolatok-, ajtók-, szaniterek választhatók, igény szerint módosíthatók
A négy egymás melletti telken összesen 8 új ház épül, ezek közül már csak az én hirdetéseimben szereplő ingatlanok eladóak!
A közelben épülő BYD szegedi autógyár miatt a környék nemcsak otthonként, hanem hosszabb távú befektetésként is értelmezhető.
Ha kérdése van, vagy személyesen is megnézné a helyszínt, hívjon bizalommal.