Eladó Ház- házrész
Hirdetéskód: 9314758
Aktív7 Ingatlaniroda
Felújításhoz személyi kölcsönt keres? Kalkuláljon itt! →96.00 m2
ALAPTERÜLET4
SZOBASZÁMnincs megadva
ÉPÍTÉSnincs megadva
FŰTÉS- Belső szintek 1
- Építés éve 2027
A+++
A++
A+
A
B
C
D
E
F
G
H
I
Az ingatlan leírása
Legyen a szomszédom! – Az utolsó elérhető házak egyike a Liliom Lakópark főutcáján
13 éve élek a családommal a Liliom Lakóparkban.
Nem térképről és nem prospektusból ismerem a környéket – hanem a mindennapokból.
Ha szeretné, szívesen elmondom, milyen itt élni.
Szegeden, a Liliom Lakóparkban, a Vinkler László utcában kínálom megvételre ezt az új építésű, önálló házat, amelynek ikerpárja is eladó!
Főbb jellemzők:
- 440 m² saját használatú telekrész (a teljes telek 700 m²)
- A telek belső részén elhelyezkedő épület, a másik ház 12 m távolságra
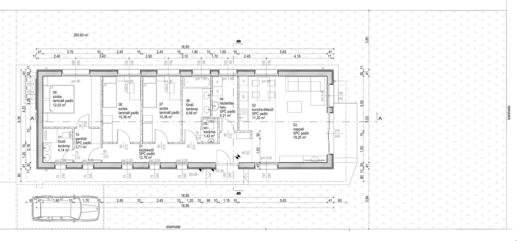
- 96 m² hasznos alapterület
- Nappali + 3 hálószoba
- két fürdőszoba, az egyik tusolóval-, a másik fürdőkáddal felszerelve.
- mindkét fürdőszobához tartozik WC
- buszmegálló közvetlenül a ház előtt
Műszaki tartalom – röviden:
- kulcsrakész kivitelezés, átadás várhatóan 2027 nyara
- tégla falazat, 10 cm vastag polisztirol hőszigetelés
- alacsony rezsi a modern hőszivattyús fűtési rendszernek köszönhetően.
- burkolatok-, ajtók-, szaniterek választhatók, igény szerint módosíthatók
A négy egymás melletti telken összesen 8 új ház épül, ezek közül már csak a hirdetéseimben szereplő ingatlanok eladóak!
A közelben épülő BYD szegedi autógyár miatt a környék nemcsak otthonként, hanem hosszabb távú befektetésként is értelmezhető.
Ha kérdése van, vagy személyesen is megnézné a helyszínt, hívjon bizalommal.
13 éve élek a családommal a Liliom Lakóparkban.
Nem térképről és nem prospektusból ismerem a környéket – hanem a mindennapokból.
Ha szeretné, szívesen elmondom, milyen itt élni.
Szegeden, a Liliom Lakóparkban, a Vinkler László utcában kínálom megvételre ezt az új építésű, önálló házat, amelynek ikerpárja is eladó!
Főbb jellemzők:
- 440 m² saját használatú telekrész (a teljes telek 700 m²)
- A telek belső részén elhelyezkedő épület, a másik ház 12 m távolságra
- 96 m² hasznos alapterület
- Nappali + 3 hálószoba
- két fürdőszoba, az egyik tusolóval-, a másik fürdőkáddal felszerelve.
- mindkét fürdőszobához tartozik WC
- buszmegálló közvetlenül a ház előtt
Műszaki tartalom – röviden:
- kulcsrakész kivitelezés, átadás várhatóan 2027 nyara
- tégla falazat, 10 cm vastag polisztirol hőszigetelés
- alacsony rezsi a modern hőszivattyús fűtési rendszernek köszönhetően.
- burkolatok-, ajtók-, szaniterek választhatók, igény szerint módosíthatók
A négy egymás melletti telken összesen 8 új ház épül, ezek közül már csak a hirdetéseimben szereplő ingatlanok eladóak!
A közelben épülő BYD szegedi autógyár miatt a környék nemcsak otthonként, hanem hosszabb távú befektetésként is értelmezhető.
Ha kérdése van, vagy személyesen is megnézné a helyszínt, hívjon bizalommal.