Eladó Ház- házrész
Hirdetéskód: 9282726
Aktív7 Ingatlaniroda
Felújításhoz személyi kölcsönt keres? Kalkuláljon itt! →
Ez a hirdetés megfelelhet a FIX 3%-os programnak.
Tudj meg többet a részletekről itt.
99.00 m2
ALAPTERÜLET0
SZOBASZÁMnincs megadva
ÉPÍTÉSnincs megadva
FŰTÉS
A+++
A++
A+
A
B
C
D
E
F
G
H
I
Az ingatlan leírása
Legyen a szomszédom! – Az utolsó elérhető ház ebben a projektben a Liliom Lakópark főutcáján
13 éve élek a családommal a Liliom Lakóparkban.
Nem térképről és nem prospektusból ismerem a környéket – hanem a mindennapokból.
Ha szeretné, szívesen elmondom, milyen itt élni.
Szegeden, a Liliom Lakóparkban, a Vinkler László utcában kínálom megvételre ezt az új építésű, önálló házat, amelynek ikerpárja már elkelt.
Főbb jellemzők:
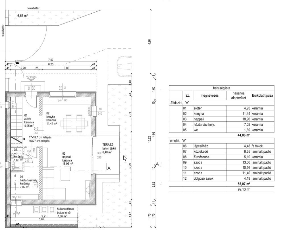
- 315 m² saját használatú telekrész (a teljes telek 676 m²)
- 99,13 m² hasznos alapterület
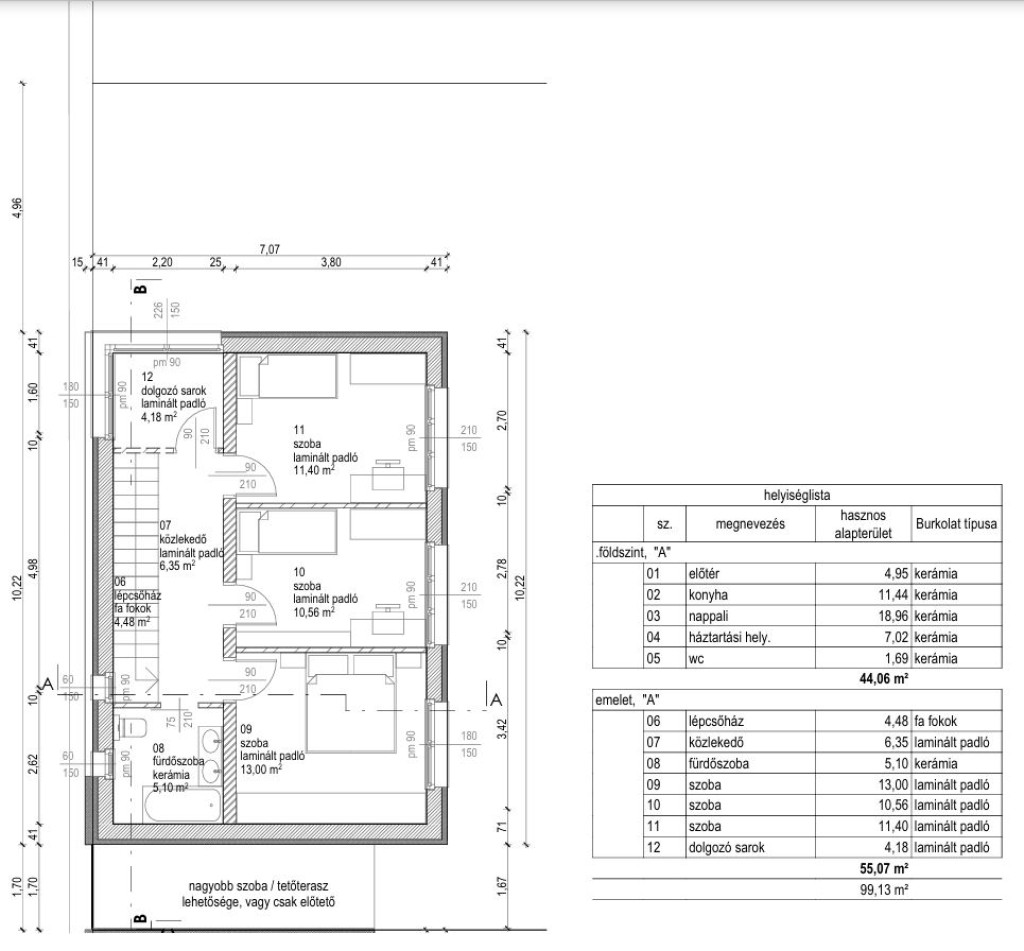
- nappali + 3 hálószoba
- fürdőszoba az emeleten,
- külön WC kézmosóval a földszinten
- nincs közös fal a szomszéddal
- tetőterasz vagy nagyobb emeleti szoba kialakításának lehetősége
- buszmegálló közvetlenül a ház előtt
Műszaki tartalom – röviden:
-
- kulcsrakész kivitelezés
- tégla falazat, korszerű hőszigeteléssel
- alacsony rezsi a modern hőszivattyús fűtési rendszernek köszönhetően.
- burkolatok-, ajtók-, szaniterek választhatók, igény szerint módosíthatók
A három egymás melletti telken összesen 6 új ház épül, ezek közül már csak a hirdetésben szereplő ingatlan eladó!
A közelben épülő BYD szegedi autógyár miatt a környék nemcsak otthonként, hanem hosszabb távú befektetésként is értelmezhető.
Ha kérdése van, vagy személyesen is megnézné a helyszínt, hívjon bizalommal.
13 éve élek a családommal a Liliom Lakóparkban.
Nem térképről és nem prospektusból ismerem a környéket – hanem a mindennapokból.
Ha szeretné, szívesen elmondom, milyen itt élni.
Szegeden, a Liliom Lakóparkban, a Vinkler László utcában kínálom megvételre ezt az új építésű, önálló házat, amelynek ikerpárja már elkelt.
Főbb jellemzők:
- 315 m² saját használatú telekrész (a teljes telek 676 m²)
- 99,13 m² hasznos alapterület
- nappali + 3 hálószoba
- fürdőszoba az emeleten,
- külön WC kézmosóval a földszinten
- nincs közös fal a szomszéddal
- tetőterasz vagy nagyobb emeleti szoba kialakításának lehetősége
- buszmegálló közvetlenül a ház előtt
Műszaki tartalom – röviden:
-
- kulcsrakész kivitelezés
- tégla falazat, korszerű hőszigeteléssel
- alacsony rezsi a modern hőszivattyús fűtési rendszernek köszönhetően.
- burkolatok-, ajtók-, szaniterek választhatók, igény szerint módosíthatók
A három egymás melletti telken összesen 6 új ház épül, ezek közül már csak a hirdetésben szereplő ingatlan eladó!
A közelben épülő BYD szegedi autógyár miatt a környék nemcsak otthonként, hanem hosszabb távú befektetésként is értelmezhető.
Ha kérdése van, vagy személyesen is megnézné a helyszínt, hívjon bizalommal.