Eladó Ház- házrész
Hirdetéskód: 9236603
GDN Ingatlanhálózat - Belvárosi Ingatlaniroda
Felújításhoz személyi kölcsönt keres? Kalkuláljon itt! →
Ez a hirdetés megfelelhet a FIX 3%-os programnak.
Tudj meg többet a részletekről itt.
135.00 m2
ALAPTERÜLET5
SZOBASZÁMnincs megadva
ÉPÍTÉSnincs megadva
FŰTÉS- CSOK igénybe vehető nem
- Tetőtér beépíthető nem
- Klíma nem
- Szigetelt nem
A+++
A++
A+
A
B
C
D
E
F
G
H
I
Az ingatlan leírása
IKERHÁZ ELADÓ SZEGED TÁPÉN SZERKEZETKÉSZ ÁLLAPOTBAN
Szeged egyik kedvelt városrészében, Tápén kínálok megvételre egy kétlakásos, tégla építésű ikerház egyik felét, amely a modern otthonok minden elvárásának megfelel.
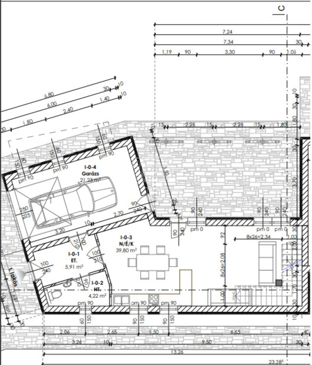
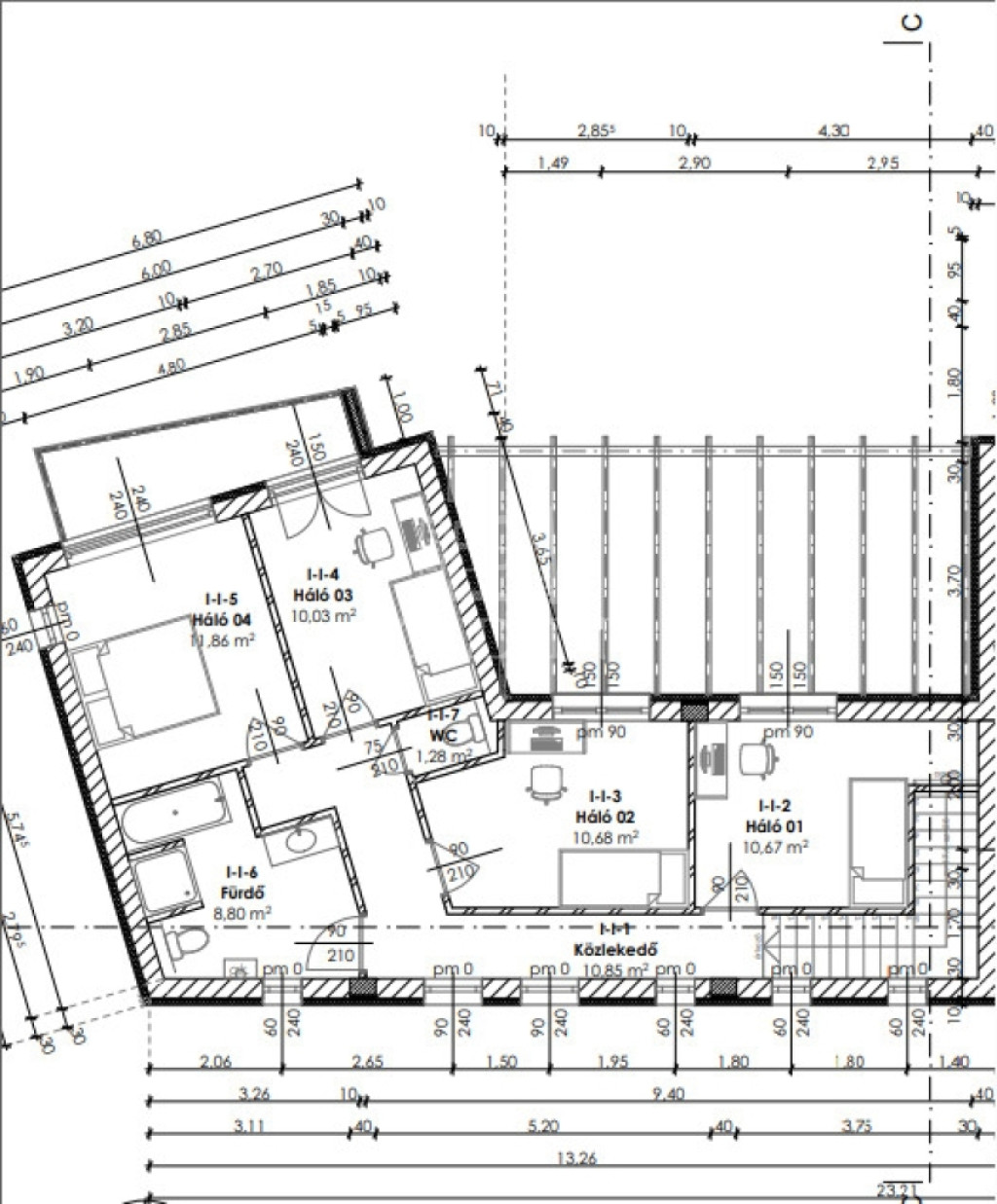
Az ingatlan nettó 135,33m², alapterületű, melyet tovább növel a 6 m²-es erkély és a 30 m²-es terasz, ideális teret biztosítva a pihenéshez és a családi együttlétekhez. Az alaprajz a hirdetés mellékleteként elérhető.
Az ingatlan szerkezetkész állapotban kerül értékesítésre, így a végső kialakítás teljes mértékben az új tulajdonos ízlését és igényeit tükrözheti.
Kiemelkedő műszaki tartalom
30 cm PTH tégla falazat
12 cm külső hőszigetelés
Prémium minőségű, 3 rétegű, 6 légkamrás nyílászárók
kívül dió, belül fehér kivitelben
Padlófűtés hőszivattyús rendszerrel
Helyiségenként szabályozható hűtés hőszivattyúval
H tarifás áram
Szerkezetkész állapot részletei
Glettelt falak, festésre előkészítve
Komplett villanyszerelés (szerelvények nélkül)
Napelem előkészítés
PANASONIC hőszivattyús fűtés–hűtés rendszer
Elektromos árnyékolástechnika: redőnyök és zsalúziák
Térkövezett udvar
Az ár nem tartalmazza
Beltéri ajtók és kilincsek
Kapcsolók, lámpák, aljzatok
Hideg- és melegburkolatok
Szaniterek
Ez az ingatlan ideális választás azok számára, akik modern, energiatakarékos és hosszú távon értékálló otthont keresnek Szeged egyik jól megközelíthető, mégis nyugodt környezetében.
További információért és megtekintésért keressen bizalommal! ...TOVÁBBI, TÖBBEZRES INGATLAN KÍNÁLAT: - GDN azonosító: 390877
Szeged egyik kedvelt városrészében, Tápén kínálok megvételre egy kétlakásos, tégla építésű ikerház egyik felét, amely a modern otthonok minden elvárásának megfelel.
Az ingatlan nettó 135,33m², alapterületű, melyet tovább növel a 6 m²-es erkély és a 30 m²-es terasz, ideális teret biztosítva a pihenéshez és a családi együttlétekhez. Az alaprajz a hirdetés mellékleteként elérhető.
Az ingatlan szerkezetkész állapotban kerül értékesítésre, így a végső kialakítás teljes mértékben az új tulajdonos ízlését és igényeit tükrözheti.
Kiemelkedő műszaki tartalom
30 cm PTH tégla falazat
12 cm külső hőszigetelés
Prémium minőségű, 3 rétegű, 6 légkamrás nyílászárók
kívül dió, belül fehér kivitelben
Padlófűtés hőszivattyús rendszerrel
Helyiségenként szabályozható hűtés hőszivattyúval
H tarifás áram
Szerkezetkész állapot részletei
Glettelt falak, festésre előkészítve
Komplett villanyszerelés (szerelvények nélkül)
Napelem előkészítés
PANASONIC hőszivattyús fűtés–hűtés rendszer
Elektromos árnyékolástechnika: redőnyök és zsalúziák
Térkövezett udvar
Az ár nem tartalmazza
Beltéri ajtók és kilincsek
Kapcsolók, lámpák, aljzatok
Hideg- és melegburkolatok
Szaniterek
Ez az ingatlan ideális választás azok számára, akik modern, energiatakarékos és hosszú távon értékálló otthont keresnek Szeged egyik jól megközelíthető, mégis nyugodt környezetében.
További információért és megtekintésért keressen bizalommal! ...TOVÁBBI, TÖBBEZRES INGATLAN KÍNÁLAT: - GDN azonosító: 390877