Eladó Ház- házrész
Hirdetéskód: 9275454
OTP Ingatlanpont Csongrád
Felújításhoz személyi kölcsönt keres? Kalkuláljon itt! →302.00 m2
ALAPTERÜLET7
SZOBASZÁMnincs megadva
ÉPÍTÉSnincs megadva
FŰTÉS- CSOK igénybe vehető nem
- Tetőtér beépíthető nem
- Építés éve 2019
- Klíma nem
- Szigetelt nem
A+++
A++
A+
A
B
C
D
E
F
G
H
I
Az ingatlan leírása
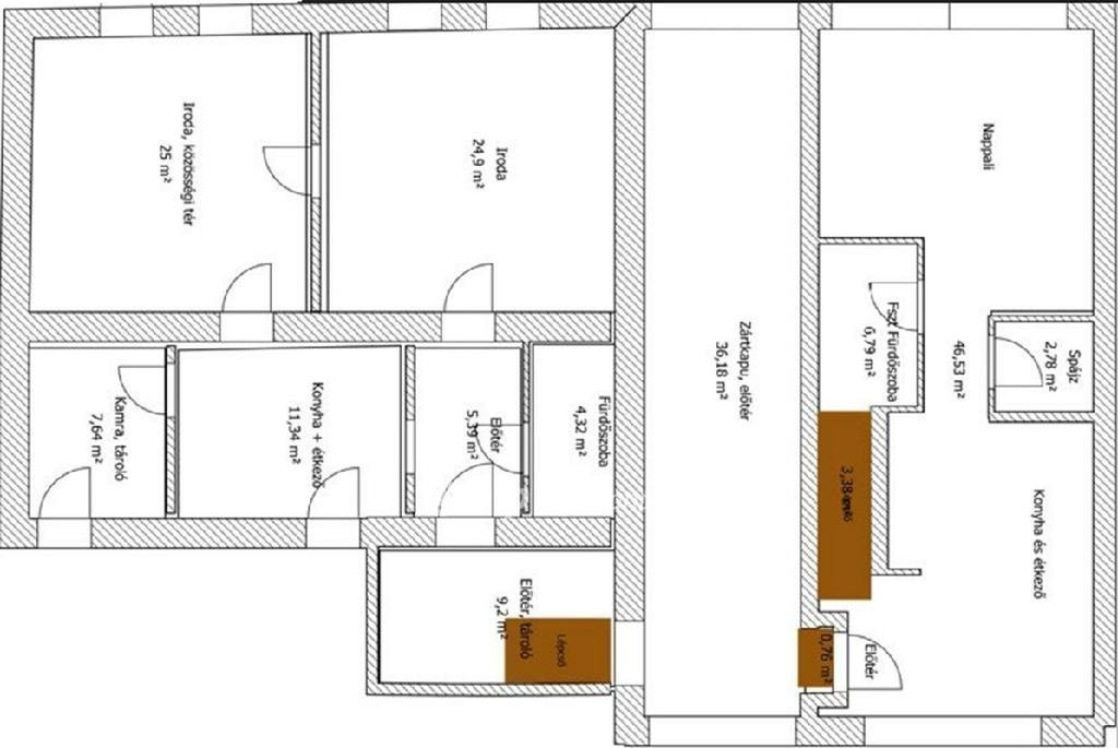
Szeged Alsóvárosának frekventált részén, a Mátyás tér közvetlen közelében eladó egy 540 nm-es telken fekvő, összesen 302 nm alapterületű, 2019-ben felújított, két különálló épületből álló családi házegyüttes.
Az épületek közös, zárt kapun keresztül közelíthetők meg. A lakrészek külön villany- és gázórákkal rendelkeznek, így a fogyasztás a támogatott kategórián belül marad. Az irányár a felújított, befejezett alapterületre vonatkozik.
Ezen felül rendelkezésre áll még egy 80 nm-es pince, valamint egy beépíthető tetőtér is.
A főépület 167 nm-es családi lakóházként funkcionál. A kisebb, 88 nm-es épület jelenleg irodaként használatos. A tető cseréje és a szigetelés 2019-ben megtörtént, a fűtés kondenzációs kazánnal és klímával megoldott. Az éves gázfogyasztás mindössze 726 nm.
Az udvaron több autó számára van beállási lehetőség. A ház előtt 3 utcai parkoló áll rendelkezésre. Az ingatlan alacsony rezsijű, sokoldalúan hasznosítható. Ideális választás mindazoknak, akik modern technológiájú, csendes környezetben elhelyezkedő, mégis minden igényt kielégítő kétgenerációs otthont, keresnek.
További információért hívjon bizalommal akár hétvégén is! Megtekintésre telefonos egyeztetés alapján van lehetőség.
Az épületek közös, zárt kapun keresztül közelíthetők meg. A lakrészek külön villany- és gázórákkal rendelkeznek, így a fogyasztás a támogatott kategórián belül marad. Az irányár a felújított, befejezett alapterületre vonatkozik.
Ezen felül rendelkezésre áll még egy 80 nm-es pince, valamint egy beépíthető tetőtér is.
A főépület 167 nm-es családi lakóházként funkcionál. A kisebb, 88 nm-es épület jelenleg irodaként használatos. A tető cseréje és a szigetelés 2019-ben megtörtént, a fűtés kondenzációs kazánnal és klímával megoldott. Az éves gázfogyasztás mindössze 726 nm.
Az udvaron több autó számára van beállási lehetőség. A ház előtt 3 utcai parkoló áll rendelkezésre. Az ingatlan alacsony rezsijű, sokoldalúan hasznosítható. Ideális választás mindazoknak, akik modern technológiájú, csendes környezetben elhelyezkedő, mégis minden igényt kielégítő kétgenerációs otthont, keresnek.
További információért hívjon bizalommal akár hétvégén is! Megtekintésre telefonos egyeztetés alapján van lehetőség.