Eladó Ház- házrész
Hirdetéskód: 9227945
Városi Ingatlaniroda
Felújításhoz személyi kölcsönt keres? Kalkuláljon itt! →
Ez a hirdetés megfelelhet a FIX 3%-os programnak.
Tudj meg többet a részletekről itt.
140.00 m2
ALAPTERÜLET6
SZOBASZÁMnincs megadva
ÉPÍTÉSGeotermikus
FŰTÉS- CSOK igénybe vehető nem
- Belső szintek 1
- Tetőtér beépíthető nem
- Építés éve 2026
- Fűtés Geotermikus
- Klíma nem
- Szigetelt nem
A+++
A++
A+
A
B
C
D
E
F
G
H
I
Az ingatlan leírása
Szeged Subasa városrészben Eladó egy most induló, tégla építésű, 140 nm-es élettérrel rendelkező, nappali plusz négy - öt szobás TÉGLA építésű ház, amelyhez igény szerint terasz, vagy medence is járhat (ez külön megállapodás lehet az eladóval), mindenezek mellett egy 805 nm - es telek is jár hozzá.
A látványtervek folyamatban vannak.
A feltűntetett ár Szerkezetkész ár, az építtető vállalja a kulcsrakész befejezést is.
Kulcsrakész ára 109.900.000 Ft
Várható kulcsrakész befejezés, kezdéstől számított 7-8 hónap.
Az ingatlanra CSOK plusz, otthon start, és más hiteltámogatás is igénybe vehető.
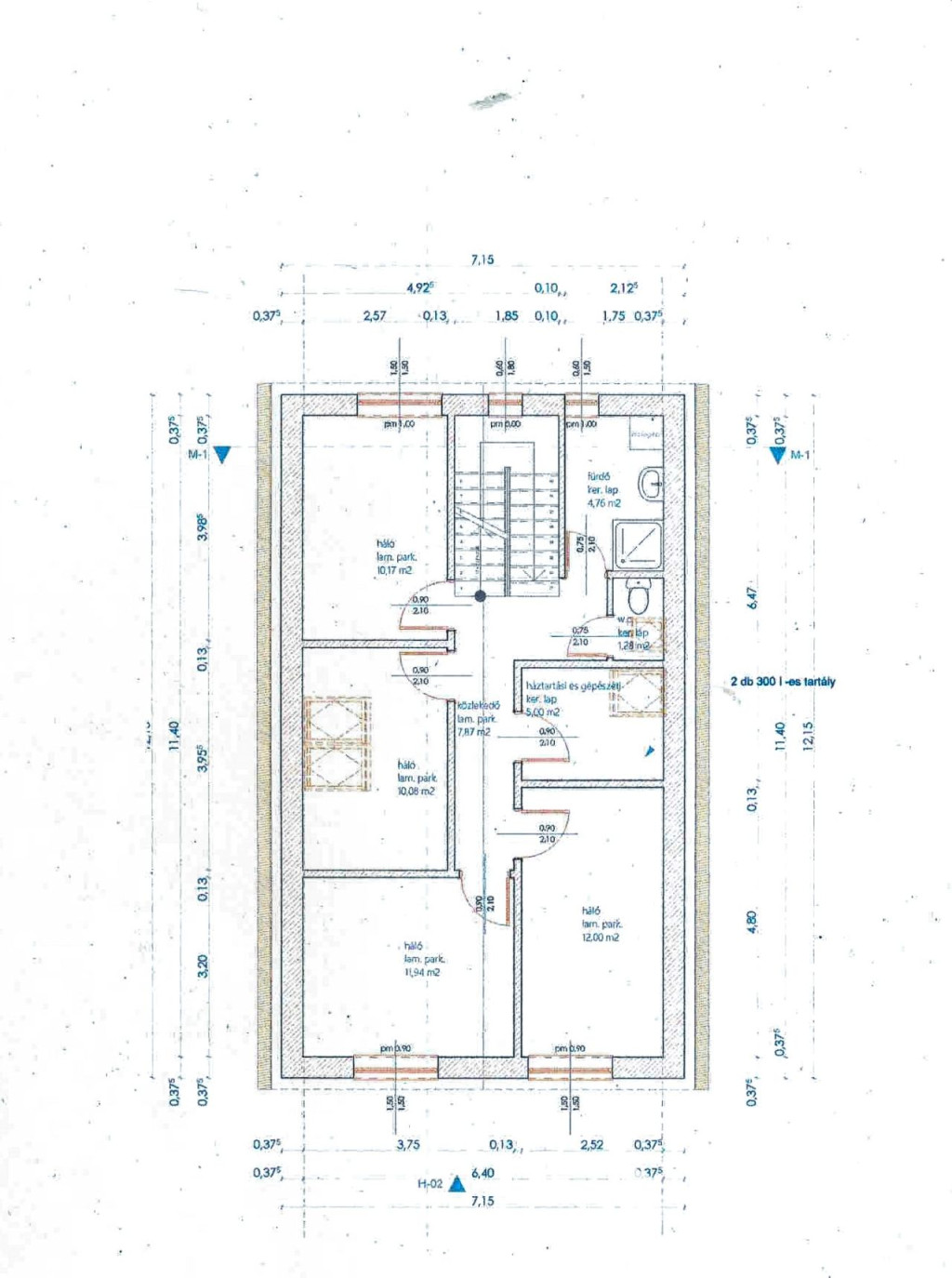
A ház 1 db óriási amerikai konyhás nappalival, 5 db hálószobával, 2 db fürdőszobával, közlekedővel, terasszal rendelkezik. Az ingatlan elhelyezkedésre, kialakítása miatt, maximálisan kiemeli ezt az ingatlant az átlagos lakások sorából és egyedülálló választássá teszi azt. További előny. hogy ház hőszivattyús helyiségenkénti Fan coilos hűtő - Fűtő rendszerrel lesz felszerelve.
Fontos tény, hogy teljesen hétköznapi használat mellett is a rezsicsökkentés értékhatárai alatti a fogyasztás, így a rezsiköltség rendkívül alacsony.
A lakás délkeleti fekvésű, napfényes ingatlan.
A környék infrastruktúrája tökéletes, tömegközlekedés, 1 - 3 percnyire az ingatlantól.
Helyiségei:
- amerikai konyhás nappali
- 4-5 szoba
- dupla fürdő
- wc
- közlekedő, előtér
- terasz
Az ingatlan megtekintése rugalmas.
Teljes totál műszaki tartalomért, illetve megtekintésért hívjon bármikor bizalommal.
Várom megtisztelő hívását:
KÓKAI FERENC Ving
Prémium ingatlanértékesítő
Szeged
A látványtervek folyamatban vannak.
A feltűntetett ár Szerkezetkész ár, az építtető vállalja a kulcsrakész befejezést is.
Kulcsrakész ára 109.900.000 Ft
Várható kulcsrakész befejezés, kezdéstől számított 7-8 hónap.
Az ingatlanra CSOK plusz, otthon start, és más hiteltámogatás is igénybe vehető.
A ház 1 db óriási amerikai konyhás nappalival, 5 db hálószobával, 2 db fürdőszobával, közlekedővel, terasszal rendelkezik. Az ingatlan elhelyezkedésre, kialakítása miatt, maximálisan kiemeli ezt az ingatlant az átlagos lakások sorából és egyedülálló választássá teszi azt. További előny. hogy ház hőszivattyús helyiségenkénti Fan coilos hűtő - Fűtő rendszerrel lesz felszerelve.
Fontos tény, hogy teljesen hétköznapi használat mellett is a rezsicsökkentés értékhatárai alatti a fogyasztás, így a rezsiköltség rendkívül alacsony.
A lakás délkeleti fekvésű, napfényes ingatlan.
A környék infrastruktúrája tökéletes, tömegközlekedés, 1 - 3 percnyire az ingatlantól.
Helyiségei:
- amerikai konyhás nappali
- 4-5 szoba
- dupla fürdő
- wc
- közlekedő, előtér
- terasz
Az ingatlan megtekintése rugalmas.
Teljes totál műszaki tartalomért, illetve megtekintésért hívjon bármikor bizalommal.
Várom megtisztelő hívását:
KÓKAI FERENC Ving
Prémium ingatlanértékesítő
Szeged