Eladó Ház- házrész
Hirdetéskód: 9247942
OTP Ingatlanpont Csongrád
Felújításhoz személyi kölcsönt keres? Kalkuláljon itt! →
Ez a hirdetés megfelelhet a FIX 3%-os programnak.
Tudj meg többet a részletekről itt.
145.00 m2
ALAPTERÜLET4
SZOBASZÁMnincs megadva
ÉPÍTÉSGáz (cirkó)
FŰTÉS- CSOK igénybe vehető nem
- Tetőtér beépíthető nem
- Építés éve 2025
- Fűtés Gáz (cirkó)
- Klíma nem
- Szigetelt nem
A+++
A++
A+
A
B
C
D
E
F
G
H
I
Az ingatlan leírása
*****Modern családi tér két szinten, innovatív megoldásokkal Szeged-Szentmihályon!*****
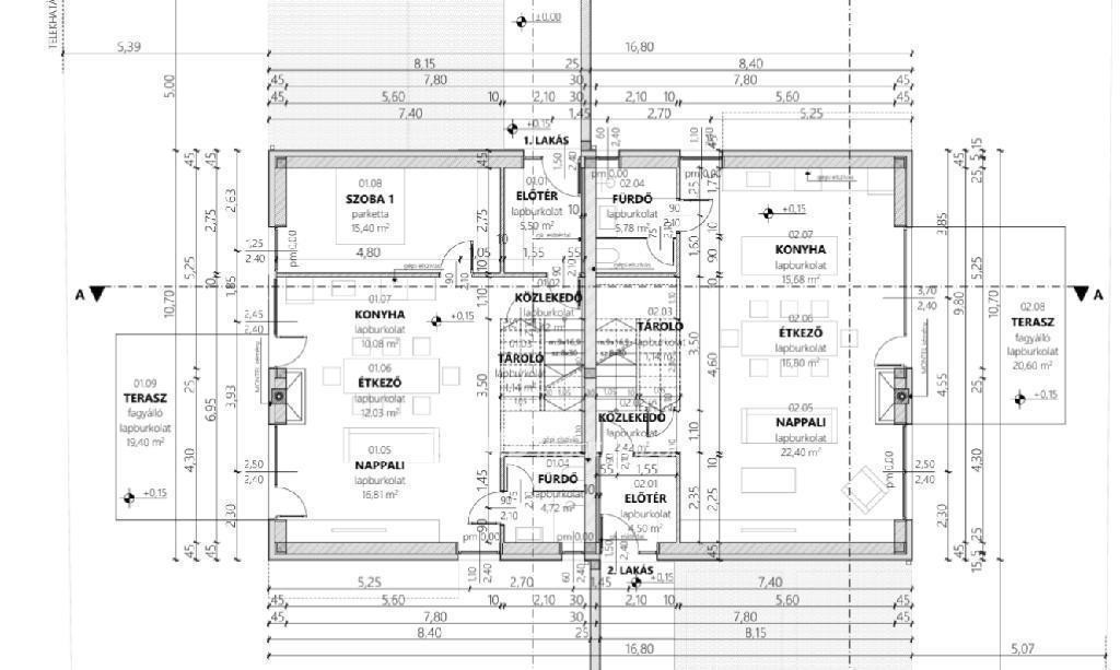
Eladó egy különleges, külön bejárattal, saját telekrésszel rendelkező, emeltszintű szerkezetkész ikerház-lakás Szeged-Szentmihály keresett, csendes környezetében! Az ingatlan 302 nm-es telekrészen 145,6 m2-en kínál praktikus életteret két szinten, prémium anyaghasználattal és letisztult, funkcionális elrendezéssel.
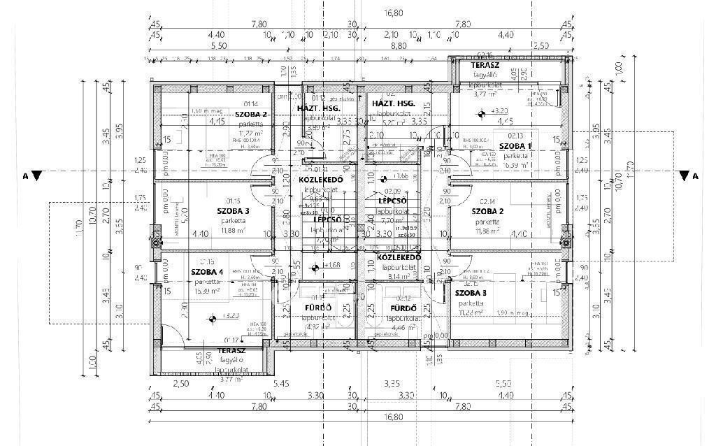
Elrendezés: Földszint: nappali-konyha-étkező + fürdőszoba + terasz + kertkapcsolat Emelet: 3 szoba + fürdőszoba + háztartási helyiség + közlekedő + erkély
A kiemelkedően energiatakarékos otthon Porotherm tégla falazatú, extra ROCKWOOL és CARBOLAND szigeteléssel, prémium REHAU Brillant nyílászárókkal várja új tulajdonosát. Az otthon melegét hőszivattyús rendszer előkészítés teszi lehetővé, modern szellőzőrendszerrel, egyedileg szabályozható padlófűtéssel és mennyezethűtéssel kiegészítve. Teljes műszaki infrastruktúra (okos vezérlés, riasztó, kaputelefon, napelem-előkészítés, automata öntözés, kültéri LED-világítás) kiépítve, igény szerint azonnal szerződhető, tehermentes státusszal.
A csendes zsákutcában található ingatlan közel helyezkedik el buszmegállóhoz és bolthoz, ugyanakkor nincs átjáró forgalom, biztosítva a nyugodt családi életet. Ez az ikerház rész kompromisszummentes választás azoknak, akik a fenntartható, biztonságos, korszerű családi otthont keresik Szeged-Szentmihály városrészében!
***Ne hagyja ki ezt a remek lehetőséget ! Hívjon még ma, és tekintse meg személyesen!***
Eladó egy különleges, külön bejárattal, saját telekrésszel rendelkező, emeltszintű szerkezetkész ikerház-lakás Szeged-Szentmihály keresett, csendes környezetében! Az ingatlan 302 nm-es telekrészen 145,6 m2-en kínál praktikus életteret két szinten, prémium anyaghasználattal és letisztult, funkcionális elrendezéssel.
Elrendezés: Földszint: nappali-konyha-étkező + fürdőszoba + terasz + kertkapcsolat Emelet: 3 szoba + fürdőszoba + háztartási helyiség + közlekedő + erkély
A kiemelkedően energiatakarékos otthon Porotherm tégla falazatú, extra ROCKWOOL és CARBOLAND szigeteléssel, prémium REHAU Brillant nyílászárókkal várja új tulajdonosát. Az otthon melegét hőszivattyús rendszer előkészítés teszi lehetővé, modern szellőzőrendszerrel, egyedileg szabályozható padlófűtéssel és mennyezethűtéssel kiegészítve. Teljes műszaki infrastruktúra (okos vezérlés, riasztó, kaputelefon, napelem-előkészítés, automata öntözés, kültéri LED-világítás) kiépítve, igény szerint azonnal szerződhető, tehermentes státusszal.
A csendes zsákutcában található ingatlan közel helyezkedik el buszmegállóhoz és bolthoz, ugyanakkor nincs átjáró forgalom, biztosítva a nyugodt családi életet. Ez az ikerház rész kompromisszummentes választás azoknak, akik a fenntartható, biztonságos, korszerű családi otthont keresik Szeged-Szentmihály városrészében!
***Ne hagyja ki ezt a remek lehetőséget ! Hívjon még ma, és tekintse meg személyesen!***