Eladó Ház- házrész
Hirdetéskód: 9310999

OTP Ingatlanpont Csongrád

Felújításhoz személyi kölcsönt keres? Kalkuláljon itt! →
189.00 m2
ALAPTERÜLET
4
SZOBASZÁM
nincs megadva
ÉPÍTÉS
Egyéb fűtés
FŰTÉS
  • CSOK igénybe vehető nem
  • Tetőtér beépíthető nem
  • Építés éve 2026
  • Fűtés Egyéb fűtés
  • Klíma nem
  • Szigetelt nem
Energetikai besorolás: Nincs meghatározva
A+++
A++
A+
A
B
C
D
E
F
G
H
I

Az MBH Bank személyi kölcsön ajánlata

Fizetett hirdetés
1 millió Ft
6 évre
20 585 Ft/hó
THM: 14.5%
Részletek →
2 millió Ft
6 évre
41 169 Ft/hó
THM: 14.5%
Részletek →
3 millió Ft
6 évre
61 754 Ft/hó
THM: 14.5%
Részletek →

A tájékoztatás nem teljes körű és nem minősül ajánlattételnek.

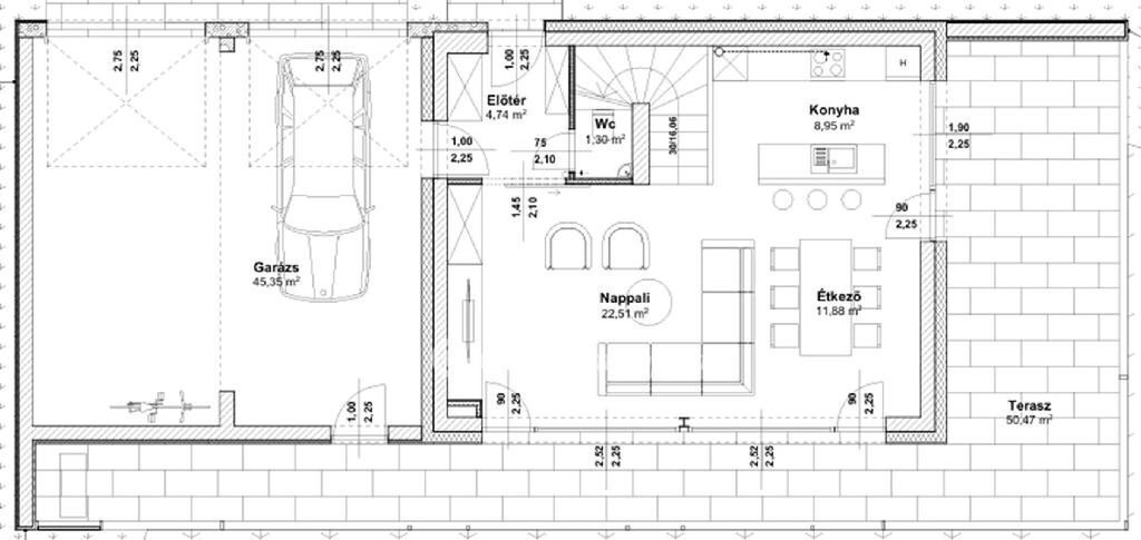
Az ingatlan leírása

Szeged, Újszeged egyik legjobb utcájának legcsendesebb részén - a Fűvészkert és a Tisza szomszédságában - eladó egy 189 m2 alapterületű, 4 szobás, Török Csongor által tervezett, kulcsrakész családi ház, 2026-os átadással. Az épületben amerikai konyhás nappali + 3 szoba + 2 fürdőszoba + garázs + terasz is található. A rendkívűl kedvező hőszigetelési paraméterekkel rendelkező házban az otthon melegét hőszivattyús fűtés biztosítja. Ajánlom a könnyen megközelíthető területet olyan családok részére, akik Újszegeden, természetközeli miliőben érzik jól magukat és a centrumhoz közel, de a város zajától mentesen szeretnék élvezni a mindennapokat. További információért hívjon bizalommal akár hétvégén is! Megtekintésre telefonos egyeztetés alapján van lehetőség. CSOK és kedvezményes kamatozású lakásvásárlási és felújítási hitelek elérhetőek az OTP hátterével, irodánkban.

Térkép

Ingatlan adásvétel ügyvédi díja
600 000 Ft
a hirdetésben szereplő ár alapján
  • A vételár 0,45%-a
  • Szerződéscsomag teljeskörű képviselettel
  • Ingyenes tulajdoni lap ellenőrzés
  • Az ÁFA-t már tartalmazza
Érdekel az ajánlat →
A tájékoztatás nem teljes körű és nem minősül ajánlattételnek. Minimum díj: 150 000 Ft, maximum díj: 600 000 Ft. A díj kizárólag lakóingatlan adásvételére vonatkozik.

A hirdető elérhetősége

OTP Ingatlanpont Csongrád

Berényiné Annus Krisztina
+36 30 487