Eladó Ház- házrész
Hirdetéskód: 9247708

OTP Ingatlanpont Csongrád

174.00 m2
ALAPTERÜLET
5
SZOBASZÁM
nincs megadva
ÉPÍTÉS
nincs megadva
FŰTÉS
  • CSOK igénybe vehető nem
  • Tetőtér beépíthető nem
  • Építés éve 2025
  • Klíma nem
  • Szigetelt nem
Energetikai besorolás: Nincs meghatározva
A+++
A++
A+
A
B
C
D
E
F
G
H
I

Az ingatlan leírása

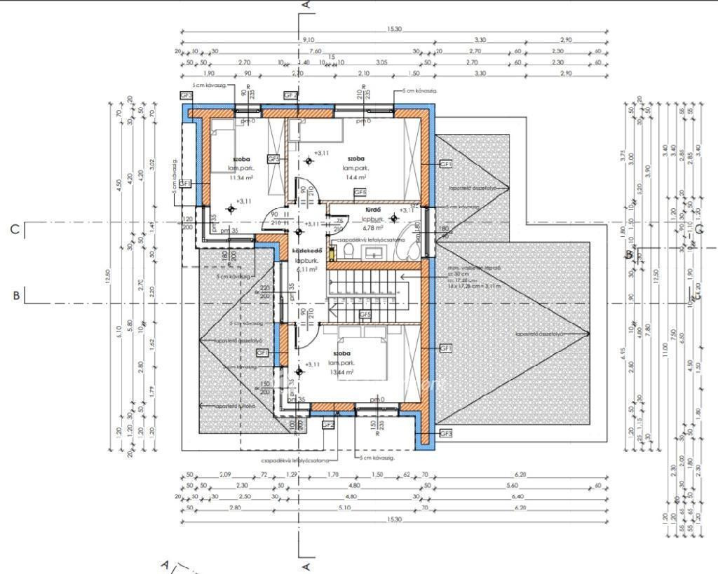
Szeged Újszeged kertvárosi övezetében, közel a Thököly úthoz, 5 szobás, privát kerttel rendelkező családi ház eladó. Az ingatlan most épül, már közel a befejezéshez, 2026 év elejétől költözhető, kulcsrakész átadással. A konyhabútor és a fürdőszoba berendezése nincs benne az árban, viszont a csapok és lefolyók kiépítésre kerültek, elektromos redőny-lehetőség előszerelésre került. Az épület téglából épült, hőszigetelt, korszerű technológiával kerül kialakításra. Az otthon melegét hőszivattyús rendszer biztosítja, padlófűtéssel és mennyezet hűtéssel. A 2 állásos garázs is padlófűtéssel ellátott, a lakótérhez kapcsolódik, ajtóval ellátott. A házhoz a földszinten 36 nm térkövezett terasz kapcsolódik, ami a hasznos alapterülethez nincs hozzáadva. Az ingatlan megvásárlásához kedvező hitel is igényelhető, melynek intézéséhez szakszerű segítség áll a leendő vásárló rendelkezésére. Amennyiben vásárlás előtt eladná meglévő ingatlanát, abban is szívesen együttműködünk Önnel. További információkért, időpontegyeztetés miatt hívjon bizalommal!

Térkép

A hirdető elérhetősége

OTP Ingatlanpont Csongrád

Fekete Vivien
+36 30 401