Eladó Ház- házrész
Hirdetéskód: 9215957
GDN Ingatlanhálózat - GARDEN CITY
91 m2
ALAPTERÜLET1
SZOBASZÁMnincs megadva
ÉPÍTÉSnincs megadva
FŰTÉS- CSOK igénybe vehető nem
- Tetőtér beépíthető nem
- Klíma nem
- Szigetelt nem
A+++
A++
A+
A
B
C
D
E
F
G
H
I
Az ingatlan leírása
Százhalombatta családi házas övezetében, az Óvárosban kínálunk megvételre két lakóegységből álló ikerházat.
A kivitelező cég számos százhalombattai referenciamunkával rendelkezik, aki több éve megbízhatóan, pontos határidőkkel végzi a kivitelezést ügyfelei legnagyobb megelégedésére.
Az építkezés folyamatosan halad, várható befejezés 2026 ősz.
Az ikerházi lakások társasházi alapító okirattal, külön helyrajzi számmal (albetétesítve) és külön mérőórákkal, saját kertrésszel, megosztással kerülnek átadásra a leendő tulajdonosok részére.
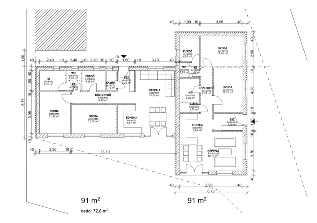
1.lakás: bruttó 91 nm, nettó 72,8 nm + 6 nm terasz
telekterület: 400 nm
szobaszám: 1+2
KÜLÖNÁLLÓ, SAJÁT GARÁZS a telekrészen belül!
2.lakás: bruttó 91 nm, nettó 72,8 nm + 6 nm terasz
telekterület: 400 nm
szobaszám: 1+2
Az ár a befejezett, KULCSRAKÉSZ állapotra vonatkozik!
Főbb műszaki paraméterek:
- alap: vasalt, szigetelt beton sávalap
- tartófalazat: 30-as Porotherm XTherm okostégla
- válaszfalak: 10-es Ytong
- szigetelés: homlokzat 15 cm dryvit, lábazat 10-cm xps
- födém: a szerkezetű, 25 cm fújt cellulóz szigeteléssel
- fűtés: Panasonic hőszivattyú (5kW), padlófűtés hőleadással
- melegvíz: hőszivattyúra kötött 200 literes HMV tartály
- nyílászárók: fehér, három rétegű hő-és hangszigetelt, beépített redőnytokkal
A belső ajtók 50.000 Ft/db, a hideg-és meleg burkolatok 4.000 Ft/nm áron a vevő által szabadon választhatóak.
Az érdeklődők részére teljes műszaki és fotódokumentáció rendelkezésre áll, valamint már elkészült referencia házak is megtekinthetőek.
OtthonSart, CSOK Plusz és piaci hitel igénybe vehető, melyben ingatlanirodánk BANKFÜGGETLEN hitelcentruma, DÍJMENTESEN áll érdeklődőink rendelkezésére.
- Egyedi, bankfiókban nem elérhető kamat- és díjkedvezmények
- Hitelképesség vizsgálat
- Idő, energia és pénz megtakarítás
- Teljes hivatali ügyintézés
Ne maradjon le róla!
További információkért és megtekintéssel kapcsolatban várom jelentkezését a hét minden napján.
A hirdetésben szereplő adatok tájékoztató jellegűek, nem minősülnek ajánlattételnek. ...TOVÁBBI, TÖBBEZRES INGATLAN KÍNÁLAT: - GDN azonosító: 389873
A kivitelező cég számos százhalombattai referenciamunkával rendelkezik, aki több éve megbízhatóan, pontos határidőkkel végzi a kivitelezést ügyfelei legnagyobb megelégedésére.
Az építkezés folyamatosan halad, várható befejezés 2026 ősz.
Az ikerházi lakások társasházi alapító okirattal, külön helyrajzi számmal (albetétesítve) és külön mérőórákkal, saját kertrésszel, megosztással kerülnek átadásra a leendő tulajdonosok részére.
1.lakás: bruttó 91 nm, nettó 72,8 nm + 6 nm terasz
telekterület: 400 nm
szobaszám: 1+2
KÜLÖNÁLLÓ, SAJÁT GARÁZS a telekrészen belül!
2.lakás: bruttó 91 nm, nettó 72,8 nm + 6 nm terasz
telekterület: 400 nm
szobaszám: 1+2
Az ár a befejezett, KULCSRAKÉSZ állapotra vonatkozik!
Főbb műszaki paraméterek:
- alap: vasalt, szigetelt beton sávalap
- tartófalazat: 30-as Porotherm XTherm okostégla
- válaszfalak: 10-es Ytong
- szigetelés: homlokzat 15 cm dryvit, lábazat 10-cm xps
- födém: a szerkezetű, 25 cm fújt cellulóz szigeteléssel
- fűtés: Panasonic hőszivattyú (5kW), padlófűtés hőleadással
- melegvíz: hőszivattyúra kötött 200 literes HMV tartály
- nyílászárók: fehér, három rétegű hő-és hangszigetelt, beépített redőnytokkal
A belső ajtók 50.000 Ft/db, a hideg-és meleg burkolatok 4.000 Ft/nm áron a vevő által szabadon választhatóak.
Az érdeklődők részére teljes műszaki és fotódokumentáció rendelkezésre áll, valamint már elkészült referencia házak is megtekinthetőek.
OtthonSart, CSOK Plusz és piaci hitel igénybe vehető, melyben ingatlanirodánk BANKFÜGGETLEN hitelcentruma, DÍJMENTESEN áll érdeklődőink rendelkezésére.
- Egyedi, bankfiókban nem elérhető kamat- és díjkedvezmények
- Hitelképesség vizsgálat
- Idő, energia és pénz megtakarítás
- Teljes hivatali ügyintézés
Ne maradjon le róla!
További információkért és megtekintéssel kapcsolatban várom jelentkezését a hét minden napján.
A hirdetésben szereplő adatok tájékoztató jellegűek, nem minősülnek ajánlattételnek. ...TOVÁBBI, TÖBBEZRES INGATLAN KÍNÁLAT: - GDN azonosító: 389873