Eladó Ház- házrész
Hirdetéskód: 9198385

Kató Edina

FIX 3% Program

Ez a hirdetés megfelelhet a FIX 3%-os programnak.
Tudj meg többet a részletekről itt.

76 m2
ALAPTERÜLET
3
SZOBASZÁM
Tégla
ÉPÍTÉS
Hőszivattyú
FŰTÉS
  • Belső szintek 1
  • Kilátás Kertre néző
  • Ingatlan komfort Összkomfortos
  • Parkolási lehetőség Udvari beálló
  • Építés éve 2026
  • Fűtés Hőszivattyú
  • Építőanyag Tégla
  • Erkély, terasz Terasz
  • Szigetelt igen
  • Bútorozott nem
  • Víz telken belül
  • Csatorna telken belül
  • Villany telken belül
Energetikai besorolás: Nincs meghatározva
A+++
A++
A+
A
B
C
D
E
F
G
H
I

Az ingatlan leírása

Hivatkozzon erre, kód: 5057KE


HATALMAS ÁRESÉS! MOST -10 MILLIÓVAL OLCSÓBBAN, 90mFt helyett 80mFt!


- ÚJ ÉPÍTÉSŰ IKERHÁZI LAKÁS


- ÖNÁLLÓ HRSZ


- HŐSZIVATTYÚ PADLÓFŰTÉSSEL


- NAPPALI + 2 SZOBA, TERASZ, UDVARI BEÁLLÓ


- MEGBÍZHATÓ BERUHÁZÓ, SZÁMOS REFERENCIA


Százhalombatta Óváros részén csendes, családi házas övezetben kb. 400m2 saját kerttel rendelkező nappali + 2 szobás, összesen 76m2-es (terasz felével), új építésű ikerházi lakás (3-as épület) leköthető igény szerinti befejezéssel.


Várható átadás: 2026. ősz.


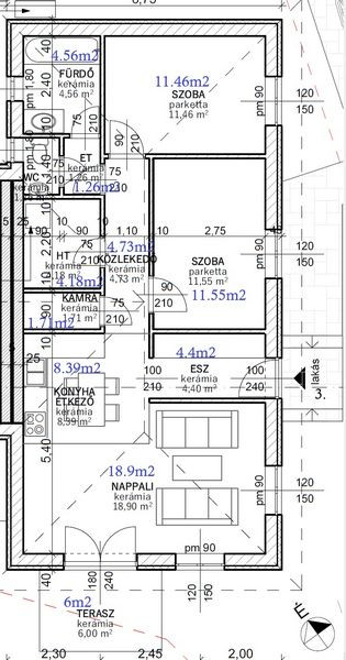
A lakás felosztása a következőképpen alakul (nettó 72.4m2 + 6m2 terasz + kb. 400m2 saját kert): előszoba (4,40m2), konyha (8,39m2), nappali-étkező (18,9m2), kamra (1,71m2),wc (1,26m2), fürdő (4,56m2), háztartási helyiség (4,18m2), közlekedő (4,73m2, 1,26m2), 2 szoba (11,55m2, 11,46m2), terasz (6m2).


Rövid műszaki ismertető: beton alap. Porotherm 30 okostégla főfalak, 15cm-es szigeteléssel. Ytong válaszfalak. Fa födém, 25cm-es fújt cellulóz szigeteléssel. A tető betoncserép fedésű, antracit színben. A nyílászárók műanyag szerkezetűek 3 rétegű szigetelt üvegezéssel, rejtett redőnytok beépítéssel.


A belső ajtók 50.000,-Ft/db áron, míg a hideg és meleg burkolatok 4.000,-Ft/m2 áron vevő által választhatóak.


Fűtés és meleg víz ellátás: Panasonic (5 kW) hőszivattyús rendszer látja el, minden helyiségben padlófűtéssel, 200 literes puffer tartállyal.


Parkolás: murvázott udvari beálló áll rendelkezésre.


Megközelíthetőség és infrastruktúra jó! Buszmegálló, óvoda, iskola, bevásárlási lehetőség, strand hamar elérhető!


További hasonló ingatlanok találhatók még a kínálatunkban!


Szüksége van hitelre? SEGÍTÜNK!


Bankfüggetlen hitel tanácsadónk díjmentesen áll az Ön rendelkezésére! Keressen bizalommal!


A hirdetésben szereplő adatok, információk, képek, alaprajzok stb... tájékoztató jellegűek! Irodánk az esetleges elírásokért felelősséget nem tud vállalni!  


Tájékoztatjuk a Tisztelt Érdeklődőket, hogy az ingatlan hirdetésében szereplő telefonszám felhívásával Önök hozzájárulnak személyes adataik (név, telefonszám), a hirdetést feladó -Otthonplusz.hu Kft. - által a bizalmas kezeléshez és nyilvántartáshoz.

Térkép

A hirdető elérhetősége

Otthon Plusz Ingatlanközvetítő Iroda

Kató Edina
+36 20 976