Eladó Ház- házrész
Hirdetéskód: 9290573

Kató Edina

Felújításhoz személyi kölcsönt keres? Kalkuláljon itt! →
88.00 m2
ALAPTERÜLET
4
SZOBASZÁM
Tégla
ÉPÍTÉS
Hőszivattyú
FŰTÉS
  • Belső szintek 1
  • Kilátás Kertre néző
  • Ingatlan komfort Összkomfortos
  • Parkolási lehetőség Udvari beálló
  • Építés éve 2026
  • Fűtés Hőszivattyú
  • Építőanyag Tégla
  • Erkély, terasz Terasz
  • Szigetelt nem
  • Bútorozott nem
  • Víz telken belül
  • Csatorna telken belül
  • Villany telken belül
Energetikai besorolás: Nincs meghatározva
A+++
A++
A+
A
B
C
D
E
F
G
H
I

Az MBH Bank személyi kölcsön ajánlata

Fizetett hirdetés
1 millió Ft
6 évre
20 585 Ft/hó
THM: 14.5%
Részletek →
2 millió Ft
6 évre
41 169 Ft/hó
THM: 14.5%
Részletek →
3 millió Ft
6 évre
61 754 Ft/hó
THM: 14.5%
Részletek →

A tájékoztatás nem teljes körű és nem minősül ajánlattételnek.

Az ingatlan leírása

Hivatkozzon erre, kód: 5141KE


- ÚJ ÉPÍTÉSŰ IKERHÁZI LAKÁSOK


- ÖNÁLLÓ HRSZ SZÁM


- NAPPALI + 3 SZOBA, TERASZ, SAJÁT KERT / LAKÁS


- HŐSZIVATTYÚ PADLÓFŰTÉSSEL


- MEGBÍZHATÓ, TŐKEERŐS BERUHÁZÓ


AZ ÁR LAKÁSONKÉNT ÉRTENDŐ!


Százhalombatta Dunafüredi részén csendes, családi házas övezetben saját kerttel rendelkező nettó 87.5m2-es (teraszok felével), nappali + 3 szobás ikerházi lakások leköthetők igény szerinti befejezéssel.


Várható átadás: 2027. tavasz.


A fotók között referencia ingatlan is látható.


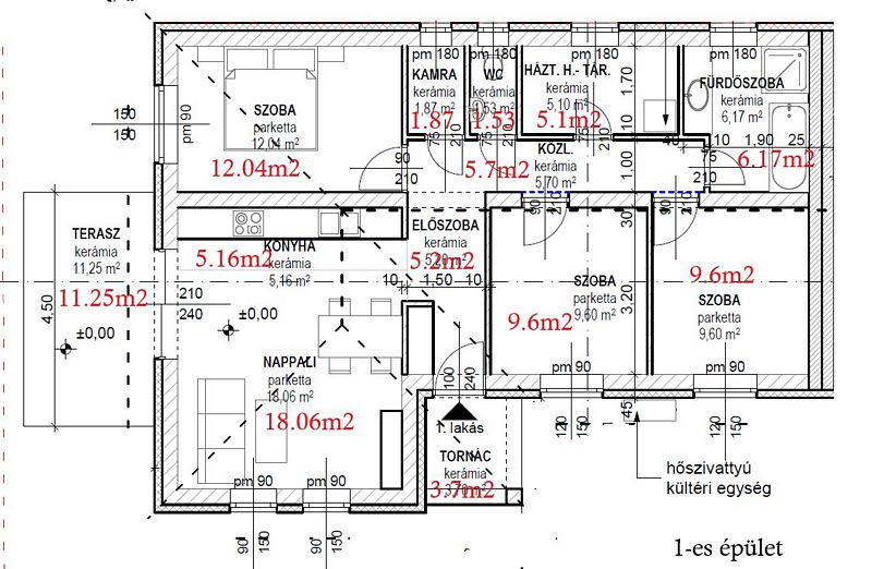
Mindkét lakás egyforma, felosztásuk a következőképpen alakul (nettó 80.03m2 + 14.95m2 teraszok + saját kert / LAKÁS): elő - terasz (3.70m2), előszoba (5.20m2), konyha (5.16m2), nappali-étkező (18.06m2), kamra (1.87m2), wc (1.53m2), fürdőszoba (6.17m2), háztartási helyiség (5.10m2), közlekedő (5.70m2), 3 szoba (12.04m2, 9.60m2, 9.60m2), terasz (11.25m2).


A lakások saját kerttel fognak rendelkezni:


1. lakás kb.300-350nm.


2. lakás kb.450-500nm.


Rövid műszaki ismertető: Beton alap. Porotherm 30-as tégla főfalak, 15cm-es szigeteléssel. Ytong válaszfalak. Fa födém, 25cm-es fújt cellulóz szigeteléssel. A tető betoncserép fedésű, antracit színben. A külső nyílászárók műanyag szerkezetűek, 3 rétegű szigetelt üvegezéssel, rejtett redőnytok beépítéssel (redőny és szúnyogháló nincs az árban).


A belső ajtók 50.000,-Ft/db. áron, míg a hideg és meleg burkolatok 4.000,-Ft/m2 árig vevő által választhatóak.


Fűtés és meleg víz ellátás: Panasonic (5 kW) hőszivattyús rendszer látja el, minden helyiségben padlófűtéssel, 200 literes puffer tartállyal.


Parkolás: saját kerten belül udvari beállóban lehetséges.


Megközelíthetőség és infrastruktúra jó! Buszmegálló, óvoda, iskola, bevásárlási lehetőség, strand hamar elérhető!


További hasonló ingatlanok találhatók még a kínálatunkban!


Szüksége van hitelre? SEGÍTÜNK!


Bankfüggetlen hitel tanácsadónk díjmentesen áll az Ön rendelkezésére! Keressen bizalommal!


A hirdetésben szereplő adatok, információk, képek, alaprajzok stb... tájékoztató jellegűek! Irodánk az esetleges elírásokért felelősséget nem tud vállalni!  


Tájékoztatjuk a Tisztelt Érdeklődőket, hogy az ingatlan hirdetésében szereplő telefonszám felhívásával Önök hozzájárulnak személyes adataik (név, telefonszám), a hirdetést feladó -Otthonplusz.hu Kft. - által a bizalmas kezeléshez és nyilvántartáshoz.

Térkép

A hirdető elérhetősége

Otthon Plusz Ingatlanközvetítő Iroda

Kató Edina
+36 20 976