Eladó Ház- házrész
Hirdetéskód: 9262841

Eger Kertész utca 25 - OTP Ingatlanpont Iroda

Felújításhoz személyi kölcsönt keres? Kalkuláljon itt! →
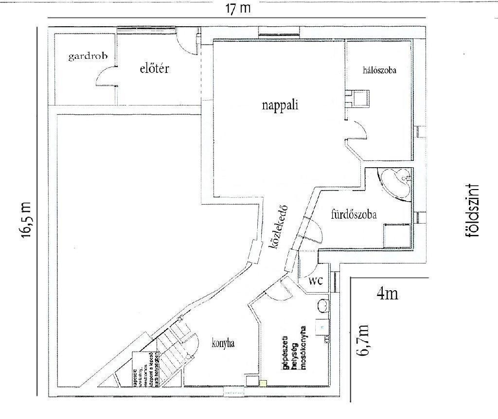
424.00 m2
ALAPTERÜLET
6
SZOBASZÁM
nincs megadva
ÉPÍTÉS
nincs megadva
FŰTÉS
  • CSOK igénybe vehető nem
  • Tetőtér beépíthető nem
  • Építés éve 1992
  • Klíma nem
  • Szigetelt nem
Energetikai besorolás: Nincs meghatározva
A+++
A++
A+
A
B
C
D
E
F
G
H
I

Az MBH Bank személyi kölcsön ajánlata

Fizetett hirdetés
1 millió Ft
6 évre
20 585 Ft/hó
THM: 14.5%
Részletek →
2 millió Ft
6 évre
41 169 Ft/hó
THM: 14.5%
Részletek →
3 millió Ft
6 évre
61 754 Ft/hó
THM: 14.5%
Részletek →

A tájékoztatás nem teljes körű és nem minősül ajánlattételnek.

Az ingatlan leírása

Heves megye, Szarvaskő, rendkívüli adottságokkal rendelkező családi ház eladó. A Makovecz Imre tervei alapján, a 1990-es években épült ingatlan egyedi formavilágával, kialakításával és a környezettel, melyben épült, páratlan lehetőségeket rejt magában. Magáncélra lakóingatlanként, pihenőházként használva vagy szállásadó helyként, illetve rendezvények színhelyeként üzemeltetve is nagyszerű választás. Az épület az elmúlt években felújításon esett át, melynek során törekedtek megtartani jellegzetes építészeti stílusát, tulajdonságait, de modernizálni is. A Bükk lábainál elhelyezkedő település dísze a 2013 nm-en elterülő ingatlan. Az erdősávval szegélyezett területen található egy gondozott kert; dísztó; nyitott, faszerkezetű, jól felszerelt kerti konyha kemencével; nyársaló; egy fémszerkezetes üvegház; továbbá egy medence. A lakóépület 3 szinten helyezkedik el. A legalsó szint külön bejárattal rendelkező, önálló lakrész, melyben nappali, hálószoba, konyha/étkező, fürdőszoba(szaunával, masszázs zuhanykabinnal), WC és előszoba kapott helyet. Ugyanitt kapott helyet a ház gépészeti helyisége is. A középső szinten helyezkedik el a nagyméretű nappali, mely a belső terek közül leginkább hivatott az egyedi stílus közvetítésére üvegkupolájának és faszerkezetes kialakításának köszönhetően. Ezen térhez csatlakozik egy közel 100 nm-es terasz is. A nappaliból nyílóan alakítottak ki egy konyhát, illetve egy WC-t. A legfelső emeleten, a nappalit felülről ölelő folyosón, három lakószoba került kialakításra, melyek közül mindegyik saját fürdőszobát és WC-t kapott. Az épületben külön padló- és fal-fűtés, illetve hűtésrendszer üzemel, továbbá minden szobába klímaberendezéseket telepítettek, valamint szellőztető légrendszert is kiépítettek. A fűtéséről és melegvíz-ellátásról napkollektor és a svájci Alpha InnoTech hőszivattyús levegőkazán gondoskodik. Amennyiben felkeltették figyelmét a képek és a leírtak, szeretne személyesen is meggyőződni azok valóságtartalmáról, kérem, keressen, egyeztessünk időpontot!

Térkép

A hirdető elérhetősége

Eger Kertész utca 25 - OTP Ingatlanpont Iroda

Juhász Anita
+36 70 907