Eladó Ház- házrész
Hirdetéskód: 9315935
Körös Ingatlan Iroda
Felújításhoz személyi kölcsönt keres? Kalkuláljon itt! →140.00 m2
ALAPTERÜLET3
SZOBASZÁMnincs megadva
ÉPÍTÉSGáz (konvektor)
FŰTÉS- Építés éve 1920
- Fűtés Gáz (konvektor)
A+++
A++
A+
A
B
C
D
E
F
G
H
I
Az ingatlan leírása
Kiváló lokáció, a Mangolzug szomszédságában! Polgári hangulat fagerendákkal!
Szarvas város nyugati részén, eladásra kínálunk egy felújítandó családi házat!
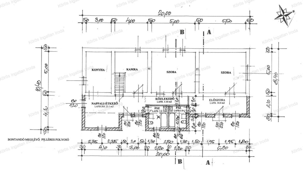
Az ingatlan az 1920 években épült, 50-es vályog falazattal, látszó gerendázattal. Az utólag beépített tornácos rész tégla falazatú. Hasznos alapterülete közel 150m2 , ezért két önálló lakrész kialakítással, komfortosítással hasznosult az elmúlt években. Fűtése külön-külön gázórával ellátott konvektorokkal megoldott. Mindkét fürdőszoba káddal,-és tusolóval felszerelt, a melegvízről villanybojler gondoskodik.
Felújításra szoruló, de lakható, összközműves ingatlan, mely könnyen megközelíthető, aszfaltozott út mellett helyezkedik el!
A telek mérete 1085m2, füvesített, körbehatárolt. A gazdasági épület tárolásra, de felvonulási épületnek is alkalmas lehet.
Befektetőknek és családoknak is ajánlott!
A lokáció, és a családi ház formája némi átalakítással lehetővé teszi a szállásadói tevékenységet.
Szarvas város Békés megye nyugati részén, a történelmi Magyarország földrajzi középpontján fekszik. Egyrészt a Hármas-Körös Kákafoki-holtága, továbbá a Mini Magyarország Makettpark, az Arborétum, a Szarvasi Vizi Színház, és még számos látnivaló fogadja az idelátogató turistákat. Két felsőfokú intézmény üzemel városunkban, Gál Ferenc Egyetem Pedagógiai Kar, és a Szent István Campus (MATE). Budapest-Kecskemét-Gyula vonalán, a 44-es főútról, vagy az M44-es autóútról közvetlen lehajtóval rendelkezik.
Az ingatlan per,-teher,-igény mentes!
Bővebb információért kérem keressen!
Az ingatlanról, a hirdetésekben szereplő információk a megbízótól kapott adatok alapján készítettük, irodánk azokért felelősséget nem vállal!
Szarvas város nyugati részén, eladásra kínálunk egy felújítandó családi házat!
Az ingatlan az 1920 években épült, 50-es vályog falazattal, látszó gerendázattal. Az utólag beépített tornácos rész tégla falazatú. Hasznos alapterülete közel 150m2 , ezért két önálló lakrész kialakítással, komfortosítással hasznosult az elmúlt években. Fűtése külön-külön gázórával ellátott konvektorokkal megoldott. Mindkét fürdőszoba káddal,-és tusolóval felszerelt, a melegvízről villanybojler gondoskodik.
Felújításra szoruló, de lakható, összközműves ingatlan, mely könnyen megközelíthető, aszfaltozott út mellett helyezkedik el!
A telek mérete 1085m2, füvesített, körbehatárolt. A gazdasági épület tárolásra, de felvonulási épületnek is alkalmas lehet.
Befektetőknek és családoknak is ajánlott!
A lokáció, és a családi ház formája némi átalakítással lehetővé teszi a szállásadói tevékenységet.
Szarvas város Békés megye nyugati részén, a történelmi Magyarország földrajzi középpontján fekszik. Egyrészt a Hármas-Körös Kákafoki-holtága, továbbá a Mini Magyarország Makettpark, az Arborétum, a Szarvasi Vizi Színház, és még számos látnivaló fogadja az idelátogató turistákat. Két felsőfokú intézmény üzemel városunkban, Gál Ferenc Egyetem Pedagógiai Kar, és a Szent István Campus (MATE). Budapest-Kecskemét-Gyula vonalán, a 44-es főútról, vagy az M44-es autóútról közvetlen lehajtóval rendelkezik.
Az ingatlan per,-teher,-igény mentes!
Bővebb információért kérem keressen!
Az ingatlanról, a hirdetésekben szereplő információk a megbízótól kapott adatok alapján készítettük, irodánk azokért felelősséget nem vállal!