Eladó Ház- házrész
Hirdetéskód: 9238856
Magyar Ingatlanközvetítők Országos Szövetsége
Ez a hirdetés megfelelhet a FIX 3%-os programnak.
Tudj meg többet a részletekről itt.
91.00 m2
ALAPTERÜLET4
SZOBASZÁMnincs megadva
ÉPÍTÉSEgyéb fűtés
FŰTÉS- CSOK igénybe vehető nem
- Tetőtér beépíthető nem
- Építés éve 2013
- Fűtés Egyéb fűtés
- Klíma nem
- Szigetelt nem
A+++
A++
A+
A
B
C
D
E
F
G
H
I
Az ingatlan leírása
ÚJÉPÍTÉSŰ, KÖRNYEZETBARÁT, ALACSONY ENERGIAIGÉNYŰ OTTHONOK A VÉRTES LAKÓPARKBAN
Tatabányától néhány kilométerre, szár új parcellázású, fejlődő övezetében
DOT-ING INGATLAN kínálatában elérhető két önálló kertkapcsolatos, földszintes családi ház, modern építészeti megoldásokkal és kiemelkedő energetikai paraméterekkel.
PROJEKT RÖVIDEN
• Helyszín: Szár, Vértes Lakópark
• Telek: 1 400 m² összterület – 2 db, egyenként kb. 700 m² saját telekhányad
• Épület típusa: egyszintes, 3 hálószoba + amerikai konyhás nappali, terasszal
• Kivitelezés: minőségi, kulcsrakész állapotban
• Várható átadás: 2026. IV. negyedév
MŰSZAKI TARTALOM (rövidített kivonat)
Szerkezet, alapozás
• Vasalt sávalap statikai terv szerinti kivitelben
• LEIER zsalukő lábazat, kibetonozva, függőleges és hosszanti vasalással
• Alaplemezen 15 cm vasalt aljzatbeton, alatta AUSTROTHERM AT-N150 lépésálló hőszigetelés (10–12 cm)
• Talajnedvesség elleni bitumenes lemezszigetelés, vizes helyiségekben kent vízszigetelés (MAPELASTIC)
Falazat és hőszigetelés
• Teherhordó falak: YTONG CLASSIC 30 cm pórusbeton
• Válaszfalak: YTONG Pve10 – 10 cm vastag válaszfaltégla
• Homlokzati hőszigetelés: 15 cm vastag BAUMIT Dryvit ásványi hőszigetelő rendszer
• Lábazati hőszigetelés: 14 cm AUSTROTHERM XPS zártcellás szigetelés
• Belső vakolat: BAUMIT Ratio Slim javított mészhabarcs, simított kivitel
• Külső vakolat: törtfehér, gördülőszemcsés, páraáteresztő vékonyvakolat
Födém és tető
• Szeglemezes fa tetőszerkezet, hőkezelt, rovar- és gombamentesített
• Tetőfödém: hőszigetelt fafödém 30 cm ROCKWOOL ásványgyapottal
• Héjazat: Mediterrán jellegű Terrán/Leier betoncserép
• Bádogozás: acéllemez, antracit színben
• Padlás: lehajtható padlásfeljáróval megközelíthető, szervizelésre alkalmas
Nyílászárók
• Külső: háromrétegű üvegezésű, 5 kamrás műanyag nyílászárók (U ≤ 0,85 W/m²K)
• Belső: típusajtók, laminált fa hatású felülettel
• Bejárati ajtó: többpontos biztonsági záródás, hőhídmentes szerkezet
Gépészet
• Energiatakarékos hőszivattyús fűtési rendszer, víz–víz vagy levegő–víz rendszerben, teljesítményigény szerint
• Padlófűtés minden lakótérben, egyedi termosztátos szabályozással
• Hideg- és melegvíz-hálózat: 5 rétegű ALPEX csövezés, présidomos kötésekkel
• Szennyvízelvezetés: PVC KG rendszer
• Vízlágyító előkészítés (Euroclear kompatibilis)
• Klíma-előkészítés kiépített védőcsövezéssel és kondenzvíz elvezetéssel
Elektromos hálózat
• 3 fázisú betáplálás,
• Sedna vagy Schneider Electric szerelvénycsalád
• Helyiségenként TV/UTP csatlakozás
• LED világítás előkészítés, kapcsolt fénypontokkal
• Riasztó- és kaputelefon rendszer csövezése előkészítve
Burkolatok és festés
• Laminált parketta a hálószobákban
• Greslap burkolat a konyhában, fürdőben, előtérben és nappaliban
• Fürdő: fali csempe 2,1 m magasságig, modern szaniterekkel
• Festés: kétszeri glettelés, kétszeri vizes bázisú diszperzió, fehér színben
ALAPADATOK ÉS ÁRAK:
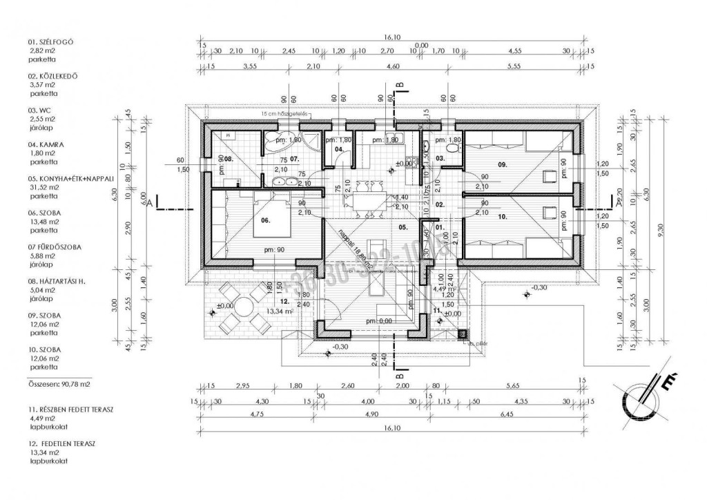
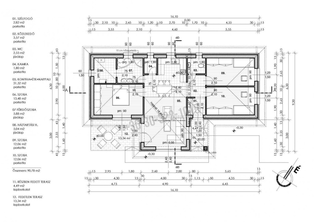
„B” épület: Nettó alapterület :90,78 m² | Terasz 13 m² | Telek ~700 m² | Vételár(bruttó): 90 300 000Ft
Állapot: kulcsrakész
Átadás: 2026. IV. negyedév
LOKÁCIÓ
Szár – Fejér megye egyik legdinamikusabban fejlődő települése, mégis megőrizte vidéki hangulatát.
• Tatabánya: 8 perc
• Bicske: 10 perc
• Budapest: ~30 perc az M1 autópályán
• Közvetlen buszjáratok és vasúti kapcsolat is elérhető
Ideális választás azoknak, akik természetközeli, nyugodt életet keresnek, de nem akarnak lemondani a városi kényelemről és közelségről.
KINEK AJÁNLOTT?
• Családoknak, akik új, energiahatékony otthonban kezdenének
• Befektetőknek, akik hosszú távú értékálló ingatlant keresnek
• Fiatal pároknak, akik modern, alacsony fenntartású házban gondolkodnak
• Természetkedvelőknek, akik vidéki környezetben, de jó elérhetőséggel szeretnének élni
FINANSZÍROZÁS
Vásárolna, de hitelre van szüksége?
Kollégáink díjmentes, banksemleges hitelügyintézéssel állnak rendelkezésére –
akár CSOK Plusz, Babaváró vagy zöldhitel konstrukciókkal.
ÉRDEKLŐDÉS
Farkas Gergely | |
DOT-ING INGATLAN – szakértelem, megbízhatóság, minőség.
Jogi nyilatkozat: A hirdetés tájékoztató jellegű, nem minősül ajánlattételnek.
A pontos műszaki tartalom a vállalkozói szerződés mellékletében kerül rögzítésre.
A látványtervek illusztrációk.
A KÖRNYÉK:
SZÁR egy folyamatosan fejlődő falu Fejér megyében, amely még mindig megőrzi a vidéki élet varázsát. A település mindössze TÍZ KILOMÉTERRE található Bicskétől. Szár csendes utcáiban a nyugalom és a vidéki hangulat uralkodik, és mindez csak FÉL ÓRÁNYI AUTÓÚTRA VAN BUDAPESTTŐL az M1-es autópályán. Ez az ideális hely a természet szerelmeseinek és azoknak, akik szeretnének elmenekülni a város zajától, miközben még mindig könnyen elérhetők a városi kényelmek és szolgáltatások.
KINEK AJÁNLOM:
Mindazoknak, akik szeretnék megtalálni az ideális lakhelyet, ahol nyugodt környezetben élhetnek.
Azoknak, akik értékelik a tágas és napfényes tereket, valamint fontos számukra a kényelmes terasz és kert jelenléte.
Azoknak, akik szeretnék elkerülni a felújítással járó nehézségeket, és inkább az újépítésű családi ház kényelmét és előnyeit részesítenék előnyben.
Ebben az otthonban megtalálhatják álmaik lakhelyét!
Amennyiben a DOT-ING INGATLAN által kínált CSALÁDI HÁZ projekt, vagy bármely a kínálatunkban található LAKÁS felkeltette érdeklődését, hívjon bármikor a megadott telefonszámon. Vásárolna, de nincs rá keret? Kollégám díjmentes, bank semleges hitelügyintézéssel áll rendelkezésére.
Farkas Gergely
Tatabányától néhány kilométerre, szár új parcellázású, fejlődő övezetében
DOT-ING INGATLAN kínálatában elérhető két önálló kertkapcsolatos, földszintes családi ház, modern építészeti megoldásokkal és kiemelkedő energetikai paraméterekkel.
PROJEKT RÖVIDEN
• Helyszín: Szár, Vértes Lakópark
• Telek: 1 400 m² összterület – 2 db, egyenként kb. 700 m² saját telekhányad
• Épület típusa: egyszintes, 3 hálószoba + amerikai konyhás nappali, terasszal
• Kivitelezés: minőségi, kulcsrakész állapotban
• Várható átadás: 2026. IV. negyedév
MŰSZAKI TARTALOM (rövidített kivonat)
Szerkezet, alapozás
• Vasalt sávalap statikai terv szerinti kivitelben
• LEIER zsalukő lábazat, kibetonozva, függőleges és hosszanti vasalással
• Alaplemezen 15 cm vasalt aljzatbeton, alatta AUSTROTHERM AT-N150 lépésálló hőszigetelés (10–12 cm)
• Talajnedvesség elleni bitumenes lemezszigetelés, vizes helyiségekben kent vízszigetelés (MAPELASTIC)
Falazat és hőszigetelés
• Teherhordó falak: YTONG CLASSIC 30 cm pórusbeton
• Válaszfalak: YTONG Pve10 – 10 cm vastag válaszfaltégla
• Homlokzati hőszigetelés: 15 cm vastag BAUMIT Dryvit ásványi hőszigetelő rendszer
• Lábazati hőszigetelés: 14 cm AUSTROTHERM XPS zártcellás szigetelés
• Belső vakolat: BAUMIT Ratio Slim javított mészhabarcs, simított kivitel
• Külső vakolat: törtfehér, gördülőszemcsés, páraáteresztő vékonyvakolat
Födém és tető
• Szeglemezes fa tetőszerkezet, hőkezelt, rovar- és gombamentesített
• Tetőfödém: hőszigetelt fafödém 30 cm ROCKWOOL ásványgyapottal
• Héjazat: Mediterrán jellegű Terrán/Leier betoncserép
• Bádogozás: acéllemez, antracit színben
• Padlás: lehajtható padlásfeljáróval megközelíthető, szervizelésre alkalmas
Nyílászárók
• Külső: háromrétegű üvegezésű, 5 kamrás műanyag nyílászárók (U ≤ 0,85 W/m²K)
• Belső: típusajtók, laminált fa hatású felülettel
• Bejárati ajtó: többpontos biztonsági záródás, hőhídmentes szerkezet
Gépészet
• Energiatakarékos hőszivattyús fűtési rendszer, víz–víz vagy levegő–víz rendszerben, teljesítményigény szerint
• Padlófűtés minden lakótérben, egyedi termosztátos szabályozással
• Hideg- és melegvíz-hálózat: 5 rétegű ALPEX csövezés, présidomos kötésekkel
• Szennyvízelvezetés: PVC KG rendszer
• Vízlágyító előkészítés (Euroclear kompatibilis)
• Klíma-előkészítés kiépített védőcsövezéssel és kondenzvíz elvezetéssel
Elektromos hálózat
• 3 fázisú betáplálás,
• Sedna vagy Schneider Electric szerelvénycsalád
• Helyiségenként TV/UTP csatlakozás
• LED világítás előkészítés, kapcsolt fénypontokkal
• Riasztó- és kaputelefon rendszer csövezése előkészítve
Burkolatok és festés
• Laminált parketta a hálószobákban
• Greslap burkolat a konyhában, fürdőben, előtérben és nappaliban
• Fürdő: fali csempe 2,1 m magasságig, modern szaniterekkel
• Festés: kétszeri glettelés, kétszeri vizes bázisú diszperzió, fehér színben
ALAPADATOK ÉS ÁRAK:
„B” épület: Nettó alapterület :90,78 m² | Terasz 13 m² | Telek ~700 m² | Vételár(bruttó): 90 300 000Ft
Állapot: kulcsrakész
Átadás: 2026. IV. negyedév
LOKÁCIÓ
Szár – Fejér megye egyik legdinamikusabban fejlődő települése, mégis megőrizte vidéki hangulatát.
• Tatabánya: 8 perc
• Bicske: 10 perc
• Budapest: ~30 perc az M1 autópályán
• Közvetlen buszjáratok és vasúti kapcsolat is elérhető
Ideális választás azoknak, akik természetközeli, nyugodt életet keresnek, de nem akarnak lemondani a városi kényelemről és közelségről.
KINEK AJÁNLOTT?
• Családoknak, akik új, energiahatékony otthonban kezdenének
• Befektetőknek, akik hosszú távú értékálló ingatlant keresnek
• Fiatal pároknak, akik modern, alacsony fenntartású házban gondolkodnak
• Természetkedvelőknek, akik vidéki környezetben, de jó elérhetőséggel szeretnének élni
FINANSZÍROZÁS
Vásárolna, de hitelre van szüksége?
Kollégáink díjmentes, banksemleges hitelügyintézéssel állnak rendelkezésére –
akár CSOK Plusz, Babaváró vagy zöldhitel konstrukciókkal.
ÉRDEKLŐDÉS
Farkas Gergely | |
DOT-ING INGATLAN – szakértelem, megbízhatóság, minőség.
Jogi nyilatkozat: A hirdetés tájékoztató jellegű, nem minősül ajánlattételnek.
A pontos műszaki tartalom a vállalkozói szerződés mellékletében kerül rögzítésre.
A látványtervek illusztrációk.
A KÖRNYÉK:
SZÁR egy folyamatosan fejlődő falu Fejér megyében, amely még mindig megőrzi a vidéki élet varázsát. A település mindössze TÍZ KILOMÉTERRE található Bicskétől. Szár csendes utcáiban a nyugalom és a vidéki hangulat uralkodik, és mindez csak FÉL ÓRÁNYI AUTÓÚTRA VAN BUDAPESTTŐL az M1-es autópályán. Ez az ideális hely a természet szerelmeseinek és azoknak, akik szeretnének elmenekülni a város zajától, miközben még mindig könnyen elérhetők a városi kényelmek és szolgáltatások.
KINEK AJÁNLOM:
Mindazoknak, akik szeretnék megtalálni az ideális lakhelyet, ahol nyugodt környezetben élhetnek.
Azoknak, akik értékelik a tágas és napfényes tereket, valamint fontos számukra a kényelmes terasz és kert jelenléte.
Azoknak, akik szeretnék elkerülni a felújítással járó nehézségeket, és inkább az újépítésű családi ház kényelmét és előnyeit részesítenék előnyben.
Ebben az otthonban megtalálhatják álmaik lakhelyét!
Amennyiben a DOT-ING INGATLAN által kínált CSALÁDI HÁZ projekt, vagy bármely a kínálatunkban található LAKÁS felkeltette érdeklődését, hívjon bármikor a megadott telefonszámon. Vásárolna, de nincs rá keret? Kollégám díjmentes, bank semleges hitelügyintézéssel áll rendelkezésére.
Farkas Gergely