Eladó Ház- házrész
Hirdetéskód: 9271085
Szigetszentmiklós Tököli út 19.B - OTP Ingatlanpont Iroda
Felújításhoz személyi kölcsönt keres? Kalkuláljon itt! →187.00 m2
ALAPTERÜLET5
SZOBASZÁMnincs megadva
ÉPÍTÉSGáz (cirkó)
FŰTÉS- CSOK igénybe vehető nem
- Belső szintek 2
- Tetőtér beépíthető nem
- Építés éve 2012
- Fűtés Gáz (cirkó)
- Klíma nem
- Szigetelt nem
A+++
A++
A+
A
B
C
D
E
F
G
H
I
Az ingatlan leírása
Eladó Szár településen tágas 187 m2 kétszintes családi ház napelemes rendszerrel + melléképület hatalmas 1895 m2 telken
Szár Fejér megyében található, Budapest központjától mért távolság kb. 35-45 km.
Jó közlekedési kapcsolatok: rendszeres autóbuszjáratok a környező városok felé, a közeli nagyobb települések (pl. Bicske, Zsámbék) rövid autóúttal elérhetők.
Közösségi szolgáltatások: helyi óvoda, általános iskola, alapvető boltok és szolgáltatások a faluban, egészségügyi alapellátás és további üzletek a közeli városokban.
Természeti és szabadidős lehetőségek: nyugodt, zöld környezet, kirándulási és kirándulóhelyek a környéken ideális családoknak és természetkedvelőknek.
Kiváló elhelyezkedésű, rendezett telken fekvő, két szintes családi ház napelemes rendszerrel, alacsony rezsivel, korszerű megoldásokkal rendelkezik.
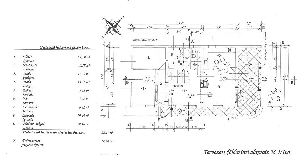
A szigetelt minőségi nyilászárókkal elátott ház tágas, világos helyiségekkel, kényelmes nappalival, külön étkezővel és több hálószobával.
A fő fürdőszoba modern letisztult teljekörűen fel lett újítva.
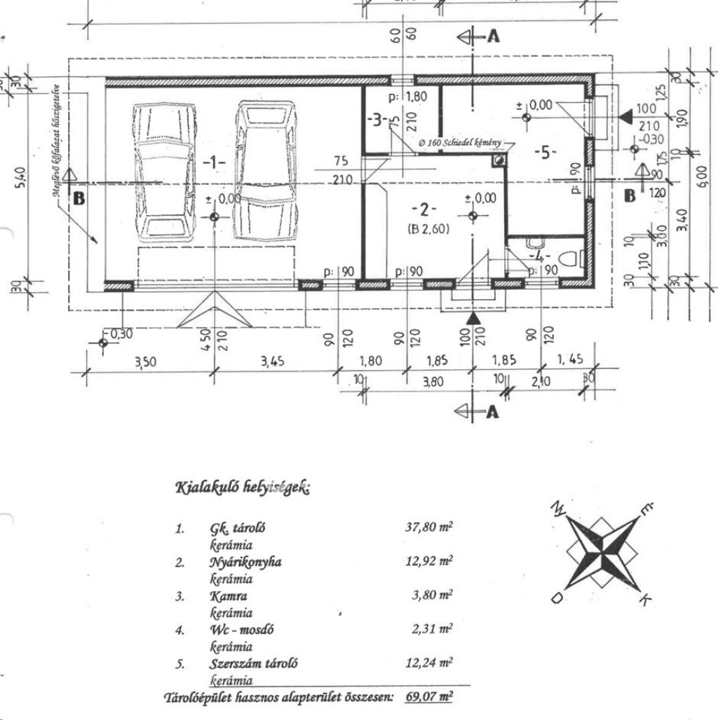
A telek része egy praktikus melléképület mely saját fűtéssel, konyhával és mellékhelyiséggel is rendelkezik valamit egy hatalmas gépkocsi tárolóval.
A kínálatunkból választott ingatlan finanszíroz ásához kedvezményes hitel- és lízingkonstrukciókat kínálunk. Az adásvételi szerződés megkötéséhez igény szerint megbízható ügyvédi közreműködést biztosítunk, és segítséget nyújtunk az adásvételhez kapcsolódó ügyek intézéséhez. Amennyiben felkeltettem érdeklődését, keressen bizalommal, akár hétvégén is.
Referenciaszám: M320327
Szár Fejér megyében található, Budapest központjától mért távolság kb. 35-45 km.
Jó közlekedési kapcsolatok: rendszeres autóbuszjáratok a környező városok felé, a közeli nagyobb települések (pl. Bicske, Zsámbék) rövid autóúttal elérhetők.
Közösségi szolgáltatások: helyi óvoda, általános iskola, alapvető boltok és szolgáltatások a faluban, egészségügyi alapellátás és további üzletek a közeli városokban.
Természeti és szabadidős lehetőségek: nyugodt, zöld környezet, kirándulási és kirándulóhelyek a környéken ideális családoknak és természetkedvelőknek.
Kiváló elhelyezkedésű, rendezett telken fekvő, két szintes családi ház napelemes rendszerrel, alacsony rezsivel, korszerű megoldásokkal rendelkezik.
A szigetelt minőségi nyilászárókkal elátott ház tágas, világos helyiségekkel, kényelmes nappalival, külön étkezővel és több hálószobával.
A fő fürdőszoba modern letisztult teljekörűen fel lett újítva.
A telek része egy praktikus melléképület mely saját fűtéssel, konyhával és mellékhelyiséggel is rendelkezik valamit egy hatalmas gépkocsi tárolóval.
A kínálatunkból választott ingatlan finanszíroz ásához kedvezményes hitel- és lízingkonstrukciókat kínálunk. Az adásvételi szerződés megkötéséhez igény szerint megbízható ügyvédi közreműködést biztosítunk, és segítséget nyújtunk az adásvételhez kapcsolódó ügyek intézéséhez. Amennyiben felkeltettem érdeklődését, keressen bizalommal, akár hétvégén is.
Referenciaszám: M320327