Eladó Ház- házrész
Hirdetéskód: 9253800
GDN Ingatlanhálózat - Sashalom
Felújításhoz személyi kölcsönt keres? Kalkuláljon itt! →120.00 m2
ALAPTERÜLET4
SZOBASZÁMnincs megadva
ÉPÍTÉSnincs megadva
FŰTÉS- CSOK igénybe vehető nem
- Tetőtér beépíthető nem
- Klíma nem
- Szigetelt nem
A+++
A++
A+
A
B
C
D
E
F
G
H
I
Az ingatlan leírása
SZADA EGYIK LEGJOBB HELYÉN, PRÉMIUM FELSZERELTSÉGŰ, ÚJSZERŰ IKERHÁZFÉL ELADÓ! 880 NM-ES TELEK, MEDENCE, FINN SZAUNA, DUPLA FÜRDŐ, HŐSZIVATTYÚ, NAPELEM – MINDEN ADOTT A KÉNYELMES, MODERN CSALÁDI ÉLETHEZ!
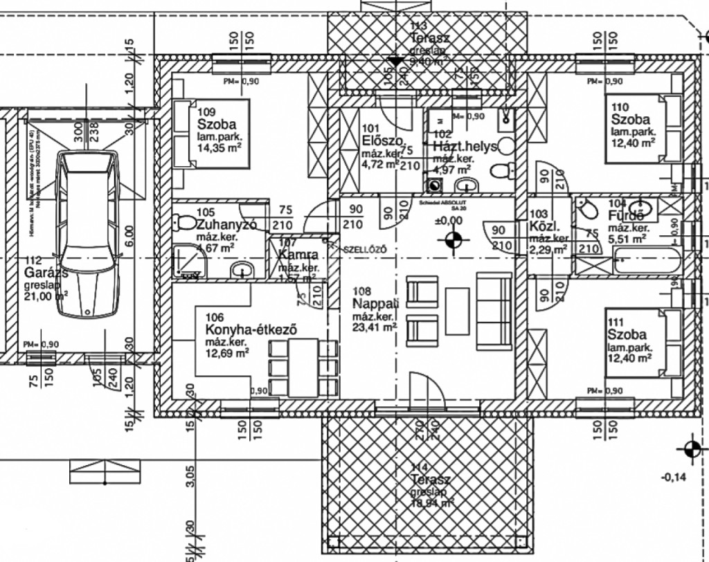
Megvételre kínálok a Pest vármegyei Szadán, 880 nm-es telken, déli fekvésű, nettó 120 nm-es, bruttó 204 nm-es, amerikai konyhás nappalival ellátott 3 + 1 félszobás, újszerű állapotban lévő, kiemelten felszerelt, ikerház felet.
Az ingatlan 2020-ban épült, beton alapra, 30-as Phorotherm téglából, mely körbe 15 cm-es grafitos szigetelést, fa födémet arra 30 cm-es gyapotos szigetelést, betoncserép fedést kapott. Nyílászárók antracit thermo műanyag 3 rétegű üvegezéssel és Wifi-s motoros alumínium redőnnyel ellátottak.
Gépészet az épületben:
Fűtésről Daikin hőszivattyú gondoskodik az egész házban padlófűtéssel, hűtésről pedig Gree központi klíma gondoskodik helységenként kinti diszkrét befúvókkal. Ezen eszközök gazdaságos működésére 3x25 Amper lett bevezetve a házba, illetve 3 kw-os napelemrendszer táplálja, a garázsban kiépített autós töltővel együtt.
Épületben beépített vízszűrővel és víz lágyító rendszerrel, óvják a gépeket és a szanitereket.
Biztonságról internetes riasztó és kamera rendszer gondoskodik.
Kényelem és minőség jellemzi az egész házat belülről, prémium anyagok és minőségi egyedi gyártású falburkoló megoldások, gránit pultos praktikus konyhával, melyből a szülő egyaránt rá lát az udvarra és a nappaliban játszó gyermekekre is. A dupla fürdőszoba lehetőséget ad a gyermekeknek a kádas fürdőszobára, illetve a szülői hálószobában lévő fürdőszoba pedig a felnőttek intimitására.
Udvar és kert:
A 880 nm-es területet két elektromos nagykapun keresztül közelíthetjük meg autóval két utcáról, az egyik beálló a garázsba, míg a másik beálló a fedett beállóhoz biztosít bejutást. Udvaron található egy 80 nm-es fedett terület, melyből 25 nm hátsó grillező terasz vagy fedett beálló, a maradék épület Finn szauna, illetve tároló. Tervezésnél gondoltak a nyári hőség elviseléséhez, egy 3x6 méteres medencére komplett gépészettel, hőszivattyúval, külön játszótérre a gyerekeknek, illetve egy csepegtető rendszerrel ellátott 6 nm-es Leier magaságyásra is. Az udvar szépségéért öntözőrendszer felel amit fúrt kút táplál, a kényelemért pedig egy robot fűnyíró dolgozik.
INGYENES hitel tanácsadás! CSOK+, Otthon Start Lakáshitel Ügy intézés!
BANKFÜGGETLEN hitelcentrumunk minden elérhető bank és hitelintézet ajánlatát versenyezteti az Ön kedvéért, ráadásul DÍJMENTESEN.
Önnek nincs más dolga, mint elbeszélgetni munkatársunkkal, aki a hallott információk alapján versenyre hívja a bankokat, hogy Ön hosszú távon is a legjobb konstrukciót kaphassa. A legjobb ajánlatokból végül Ön választhatja ki a nyertest.
Munkatársaink sokéves szakmai tapasztalattal várják Önt, előre egyeztetve akár a normál munkaidő után is.
Amennyiben hirdetésem felkeltette érdeklődését, várom hívását, akár hétvégén is! V.I. ...TOVÁBBI, TÖBBEZRES INGATLAN KÍNÁLAT: - GDN azonosító: 391893
Megvételre kínálok a Pest vármegyei Szadán, 880 nm-es telken, déli fekvésű, nettó 120 nm-es, bruttó 204 nm-es, amerikai konyhás nappalival ellátott 3 + 1 félszobás, újszerű állapotban lévő, kiemelten felszerelt, ikerház felet.
Az ingatlan 2020-ban épült, beton alapra, 30-as Phorotherm téglából, mely körbe 15 cm-es grafitos szigetelést, fa födémet arra 30 cm-es gyapotos szigetelést, betoncserép fedést kapott. Nyílászárók antracit thermo műanyag 3 rétegű üvegezéssel és Wifi-s motoros alumínium redőnnyel ellátottak.
Gépészet az épületben:
Fűtésről Daikin hőszivattyú gondoskodik az egész házban padlófűtéssel, hűtésről pedig Gree központi klíma gondoskodik helységenként kinti diszkrét befúvókkal. Ezen eszközök gazdaságos működésére 3x25 Amper lett bevezetve a házba, illetve 3 kw-os napelemrendszer táplálja, a garázsban kiépített autós töltővel együtt.
Épületben beépített vízszűrővel és víz lágyító rendszerrel, óvják a gépeket és a szanitereket.
Biztonságról internetes riasztó és kamera rendszer gondoskodik.
Kényelem és minőség jellemzi az egész házat belülről, prémium anyagok és minőségi egyedi gyártású falburkoló megoldások, gránit pultos praktikus konyhával, melyből a szülő egyaránt rá lát az udvarra és a nappaliban játszó gyermekekre is. A dupla fürdőszoba lehetőséget ad a gyermekeknek a kádas fürdőszobára, illetve a szülői hálószobában lévő fürdőszoba pedig a felnőttek intimitására.
Udvar és kert:
A 880 nm-es területet két elektromos nagykapun keresztül közelíthetjük meg autóval két utcáról, az egyik beálló a garázsba, míg a másik beálló a fedett beállóhoz biztosít bejutást. Udvaron található egy 80 nm-es fedett terület, melyből 25 nm hátsó grillező terasz vagy fedett beálló, a maradék épület Finn szauna, illetve tároló. Tervezésnél gondoltak a nyári hőség elviseléséhez, egy 3x6 méteres medencére komplett gépészettel, hőszivattyúval, külön játszótérre a gyerekeknek, illetve egy csepegtető rendszerrel ellátott 6 nm-es Leier magaságyásra is. Az udvar szépségéért öntözőrendszer felel amit fúrt kút táplál, a kényelemért pedig egy robot fűnyíró dolgozik.
INGYENES hitel tanácsadás! CSOK+, Otthon Start Lakáshitel Ügy intézés!
BANKFÜGGETLEN hitelcentrumunk minden elérhető bank és hitelintézet ajánlatát versenyezteti az Ön kedvéért, ráadásul DÍJMENTESEN.
Önnek nincs más dolga, mint elbeszélgetni munkatársunkkal, aki a hallott információk alapján versenyre hívja a bankokat, hogy Ön hosszú távon is a legjobb konstrukciót kaphassa. A legjobb ajánlatokból végül Ön választhatja ki a nyertest.
Munkatársaink sokéves szakmai tapasztalattal várják Önt, előre egyeztetve akár a normál munkaidő után is.
Amennyiben hirdetésem felkeltette érdeklődését, várom hívását, akár hétvégén is! V.I. ...TOVÁBBI, TÖBBEZRES INGATLAN KÍNÁLAT: - GDN azonosító: 391893