Eladó Ház- házrész
Hirdetéskód: 9236758
Openhouse Székesfehérvár Ingatlaniroda
120 m2
ALAPTERÜLET2
SZOBASZÁMnincs megadva
ÉPÍTÉSnincs megadva
FŰTÉS- CSOK igénybe vehető nem
- Tetőtér beépíthető nem
- Építés éve 2026
- Klíma nem
- Szigetelt nem
A+++
A++
A+
A
B
C
D
E
F
G
H
I
Az ingatlan leírása
Az Openhouse Székesfehérvár Ingatlaniroda kínálatában eladó a #178960 hivatkozási számú szabadbattyáni családi ház.
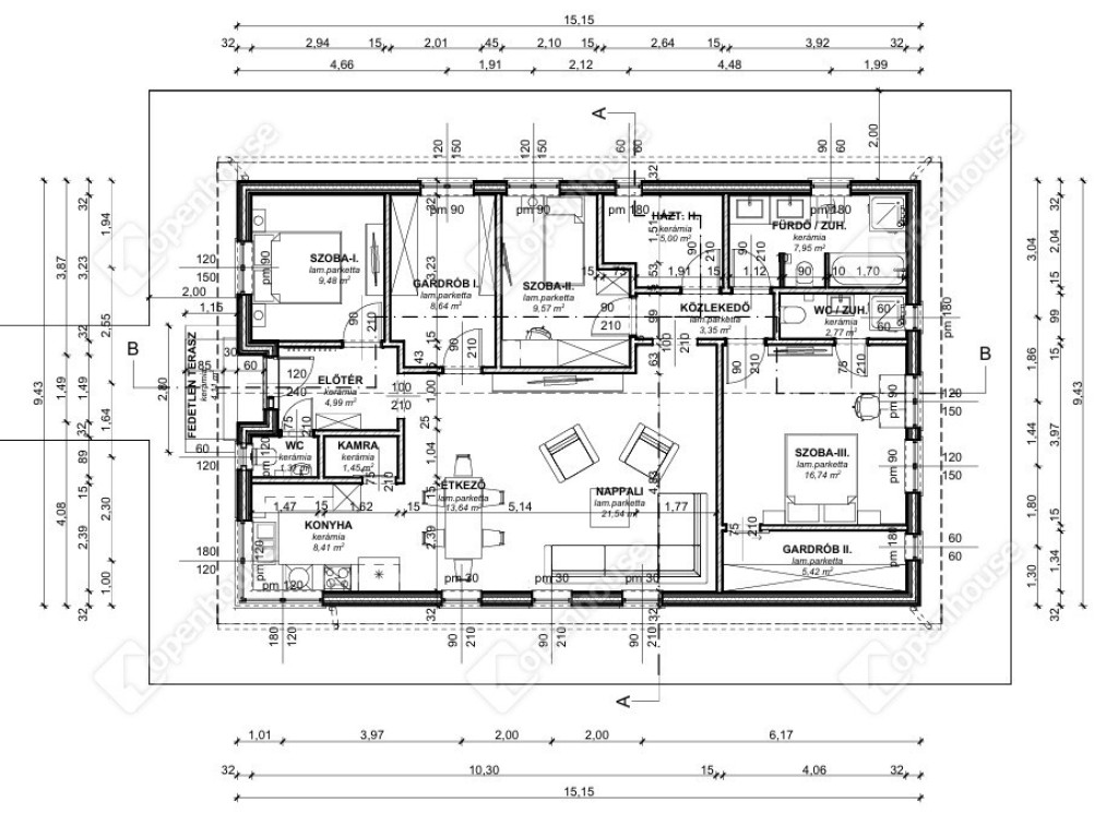
Modern, fém-könnyűszerkezetes technológiával épülő szabadon álló, „ A+” energetikájú hőszivattyús + klímás 120 m2 nettó alapterületű ingatlanok fedett terasszal vagy bővített gardróbos hálóval eladók!
Ingatlanok főbb jellemzői:
- 120 m2 nettó lakótér
- 8 m2 nagyobb szoba gardróbbal
- 4 m2 fedetlen terasz
- Nappali + amerikai konyha + kamra
- 3 hálószoba + 1 gardrób
- 2 x fürdő (kád/zuhanyozó +2 x WC) + 1 x WC/mosóhelység
Műszaki jellemzők:
Alapozás:
- beton síkalap + zsalukő lábazat + szerelőbeton
- bitumenes szigetelő lemez + 2 cm lépésálló XPS
Falazat:
- egyedi acélváz
- 10 cm szendvicspanel + 5 cm PS szigetelés + 1,5 mm nemes vakolat
- belül gipszkarton burkolat
Födém
- gipszkarton mennyezet
- párazáró fólia + szálas hőszigetelés (kőzetgyapot)
Tetőszerkezet:
- vasszerkezetből készülő tetőszerkezet
- cserepes lemezfedés (speciális Anti kondenzációs filc bevonat)
- páraáteresztő fólia
Nyílászárók:
- 3 rétegű + 7 légkamrás + argon gázzal töltött műanyag nyílászárók
Épületgépészet:
- Hőszivattyús padlófűtés 10 KW (Fisher)
- 1 db Gree márkájú, 3.5 kW teljesítményű légkondicionáló.
- 1 db villanybojler,
-1 db kémény kandallónak
- Gázszerelés: nincs
Elektromos kialakítás:
- Helységenként: 4 db konnektor + 1 db villanykapcsoló + 1 db mennyezeti lámpa
- Konyha: 6 db konnektor + 1 db villanykapcsoló + 1 db mennyezeti lámpa
- Fürdő: 5 db konnektor + 1 db villanykapcsoló + 1 db mennyezeti lámpa
Burkolatok:
- Vizes helységek: Kerámia / Gres burkolat
- Lakó környezet: Laminált parketta
- Teraszok: fagyálló greslap
Keretösszegek:
- Szaniterek: 200.000 Ft-ig választható
- Járólapokat 350.000 Ft-ig
- Csempéket 250.000 Ft-ig
- Meleg burkolatokat (laminált parketta) 200.000 Ft –ig
Teraszburkolatot 100.000 Ft-ig tartalmazza az ajánlat.
A választott anyagok beszerzését, helyszínre szállítását és beépítését az ár tartalmazza, a
Vevőnek csak a termékkódot kell megadnia és a helyet, ahol azt választotta.
Feláras kiegészítők:
- Helységekben hangulat LED világítások
- Spot lámpák
- Térburkolatok:
Egyéb elérhető extrák:
- Garázskészítés,
- Járda, kerítéskészítés,
- Teljes bebútorozás
- Stukkókészítés díszvilágítással,
- Rejtett redőny,
- Udvarrendezés,
- Központi szellőző berendezés,
- Rejtett hűtés/fűtés rendszer kialakítások
- Bontása (Akár melléképület stb.),
- Medence, kerti grill, terasz kialakítás
Fontos!
A beruházónak joga van a bejelentési dokumentációban foglaltaktól eltérni ennek
Felelősségvállalása mellett. Jelen műszaki leírás tájékoztató jellegű, a megadott márkáktól azonos minőség megtartása mellett a tervező általi változtatás jogát fenntartjuk.
A kiviteli terv elkészültét követően a vevő megkapja a pontos tartalmakat és árakat.
A hirdetésben szereplő adatok tájékoztató jellegűek!
Bővebb információért telefonon keressen bizalommal!
Ha felkeltette érdeklődését ez az eladó szabadbattyáni családi ház, vagy bármely más családi ház és bővebb információt szeretne, keressen bizalommal.Hivatkozási szám: #178960
Az Openhouse Székesfehérvár Ingatlaniroda tagjaként várom Önt az országos hálózatunk teljes kínálatával.
A családi ház vásárláshoz hitelt igényelne? Ingyenes hitelközvetítéssel segít Önnek bankfüggetlen hitelszakértőnk.
További szolgáltatásainkkal (pl. értékbecslés, energetikai tanúsítvány, jogi háttér) is segítjük Önt a vásárlásban.
Az otthon érték. Az ingatlan üzlet.
Modern, fém-könnyűszerkezetes technológiával épülő szabadon álló, „ A+” energetikájú hőszivattyús + klímás 120 m2 nettó alapterületű ingatlanok fedett terasszal vagy bővített gardróbos hálóval eladók!
Ingatlanok főbb jellemzői:
- 120 m2 nettó lakótér
- 8 m2 nagyobb szoba gardróbbal
- 4 m2 fedetlen terasz
- Nappali + amerikai konyha + kamra
- 3 hálószoba + 1 gardrób
- 2 x fürdő (kád/zuhanyozó +2 x WC) + 1 x WC/mosóhelység
Műszaki jellemzők:
Alapozás:
- beton síkalap + zsalukő lábazat + szerelőbeton
- bitumenes szigetelő lemez + 2 cm lépésálló XPS
Falazat:
- egyedi acélváz
- 10 cm szendvicspanel + 5 cm PS szigetelés + 1,5 mm nemes vakolat
- belül gipszkarton burkolat
Födém
- gipszkarton mennyezet
- párazáró fólia + szálas hőszigetelés (kőzetgyapot)
Tetőszerkezet:
- vasszerkezetből készülő tetőszerkezet
- cserepes lemezfedés (speciális Anti kondenzációs filc bevonat)
- páraáteresztő fólia
Nyílászárók:
- 3 rétegű + 7 légkamrás + argon gázzal töltött műanyag nyílászárók
Épületgépészet:
- Hőszivattyús padlófűtés 10 KW (Fisher)
- 1 db Gree márkájú, 3.5 kW teljesítményű légkondicionáló.
- 1 db villanybojler,
-1 db kémény kandallónak
- Gázszerelés: nincs
Elektromos kialakítás:
- Helységenként: 4 db konnektor + 1 db villanykapcsoló + 1 db mennyezeti lámpa
- Konyha: 6 db konnektor + 1 db villanykapcsoló + 1 db mennyezeti lámpa
- Fürdő: 5 db konnektor + 1 db villanykapcsoló + 1 db mennyezeti lámpa
Burkolatok:
- Vizes helységek: Kerámia / Gres burkolat
- Lakó környezet: Laminált parketta
- Teraszok: fagyálló greslap
Keretösszegek:
- Szaniterek: 200.000 Ft-ig választható
- Járólapokat 350.000 Ft-ig
- Csempéket 250.000 Ft-ig
- Meleg burkolatokat (laminált parketta) 200.000 Ft –ig
Teraszburkolatot 100.000 Ft-ig tartalmazza az ajánlat.
A választott anyagok beszerzését, helyszínre szállítását és beépítését az ár tartalmazza, a
Vevőnek csak a termékkódot kell megadnia és a helyet, ahol azt választotta.
Feláras kiegészítők:
- Helységekben hangulat LED világítások
- Spot lámpák
- Térburkolatok:
Egyéb elérhető extrák:
- Garázskészítés,
- Járda, kerítéskészítés,
- Teljes bebútorozás
- Stukkókészítés díszvilágítással,
- Rejtett redőny,
- Udvarrendezés,
- Központi szellőző berendezés,
- Rejtett hűtés/fűtés rendszer kialakítások
- Bontása (Akár melléképület stb.),
- Medence, kerti grill, terasz kialakítás
Fontos!
A beruházónak joga van a bejelentési dokumentációban foglaltaktól eltérni ennek
Felelősségvállalása mellett. Jelen műszaki leírás tájékoztató jellegű, a megadott márkáktól azonos minőség megtartása mellett a tervező általi változtatás jogát fenntartjuk.
A kiviteli terv elkészültét követően a vevő megkapja a pontos tartalmakat és árakat.
A hirdetésben szereplő adatok tájékoztató jellegűek!
Bővebb információért telefonon keressen bizalommal!
Ha felkeltette érdeklődését ez az eladó szabadbattyáni családi ház, vagy bármely más családi ház és bővebb információt szeretne, keressen bizalommal.Hivatkozási szám: #178960
Az Openhouse Székesfehérvár Ingatlaniroda tagjaként várom Önt az országos hálózatunk teljes kínálatával.
A családi ház vásárláshoz hitelt igényelne? Ingyenes hitelközvetítéssel segít Önnek bankfüggetlen hitelszakértőnk.
További szolgáltatásainkkal (pl. értékbecslés, energetikai tanúsítvány, jogi háttér) is segítjük Önt a vásárlásban.
Az otthon érték. Az ingatlan üzlet.