Eladó Ház- házrész
Hirdetéskód: 9224498
Fővállalkozó Balla és Balla Kft
Felújításhoz személyi kölcsönt keres? Kalkuláljon itt! →
Ez a hirdetés megfelelhet a FIX 3%-os programnak.
Tudj meg többet a részletekről itt.
76.00 m2
ALAPTERÜLET3
SZOBASZÁMnincs megadva
ÉPÍTÉSnincs megadva
FŰTÉS- CSOK igénybe vehető nem
- Tetőtér beépíthető nem
- Építés éve 1986
- Klíma nem
- Szigetelt nem
A+++
A++
A+
A
B
C
D
E
F
G
H
I
Az ingatlan leírása
Eladásra kínálunk egy felújított, harmonikus családi otthont Sülysáp csendes, kertvárosi részén rengeteg extrával
Extrák röviden:
•két utcáról bejárható, parkosított telek
•automata öntözőrendszer fúrt kúttal
•robotfűnyíró
•térkövezett autóbeálló több autónak
•32 m² száraz, szigetelt pince
•16 m² fedett terasz
•beépíthető tetőtér
•hűtő–fűtő klíma
•gáz- és vegyes tüzelésű kazán
•hőszigetelt nyílászárók redőnnyel és szúnyoghálóval
•30 cm födémszigetelés + 10 cm homlokzati szigetelés
•minőségi burkolatok, egységes színvilág
•részben bútorozva és gépesítve eladó
Eladó egy igényesen felújított, önálló téglaépítésű családi ház, ahol minden részlet arra törekszik, hogy kényelmes, modern és letisztult életteret biztosítson. A felújítás során minőségi anyagokat használtak, a ház egészét összehangolt színvilág és egységes, időtálló burkolatok jellemzik, ami már belépéskor kellemes, harmonikus hangulatot teremt.
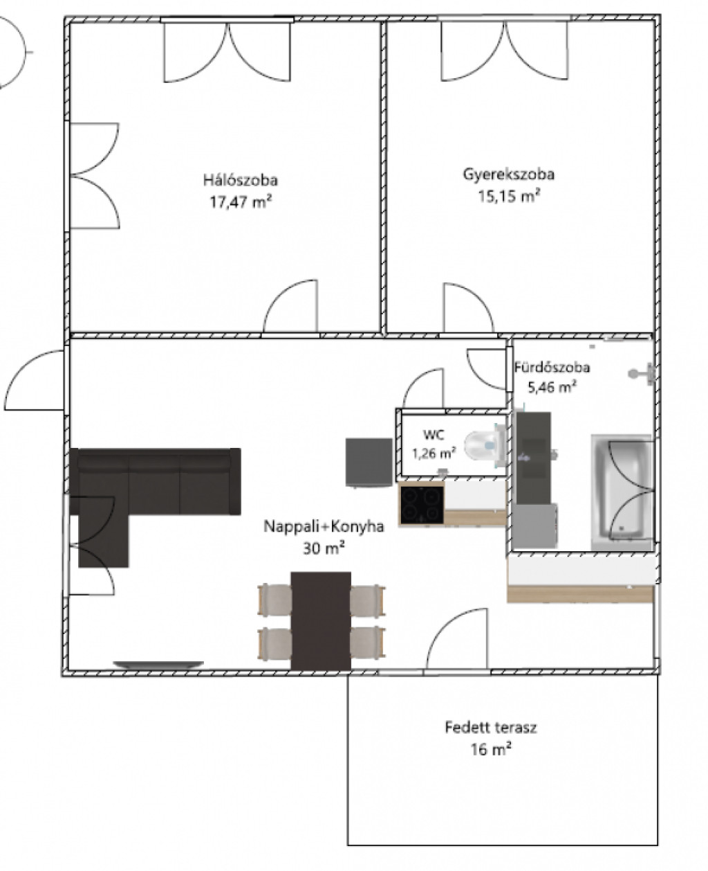
Az ingatlan két külön nyíló szobából és tágas nappali–konyha–étkező térből áll, ahol a természetes fény és a modern kialakítás igazán hívogatóvá teszi a tereket. A hőszigetelt, redőnnyel és szúnyoghálóval felszerelt nyílászárók, valamint a biztonsági bejárati ajtó a komfort és biztonság érdekében kerültek beépítésre.
A ház energetikailag is korszerű: 10 cm homlokzati szigetelés és 30 cm födémszigetelés gondoskodik az optimális hőmegtartásról. A fűtést gázkazán és vegyes tüzelésű kazán biztosítja, emellett hűtő-fűtő klíma is rendelkezésre áll, így a hőérzet minden évszakban könnyen szabályozható.
A nappaliból egy 16 m²-es fedett teraszra léphetünk ki, amely kellemes helyszínt biztosít pihenésre vagy vendégfogadásra. A házhoz tartozó 32 m²-es, száraz, szigetelt pince pedig kiváló lehetőség tárolásra vagy akár hobbihelyiség kialakítására. A tetőtér beépíthető, így a ház igény szerint tovább is bővíthető.
A 773 m²-es telek két utcáról is megközelíthető, és gondosan parkosított, rendezett kertjével igazi kertvárosi hangulatot kínál. Automata öntözőrendszer látja el a növényeket fúrt kútról, a friss gyepszőnyeg vakondhálóval védett, a kertben játszórész, kerti zuhany, kutyakennel és egy tágas kerti tároló teszi teljessé a kert kényelmét.
A környezet nyugodt, családbarát, sétatávolságban található óvoda, bölcsőde, üzletek, játszótér, valamint a vasútállomás, ahonnan Budapest fél órán belül elérhető.
Az ingatlant szinte teljes bútorzattal, kert bútorral, gépekkel kínáljuk eladásra.
Jöjjön el nézze meg biztosan beleszeret!
Várom hívását a hét minden napján akár hétvégén is!
Extrák röviden:
•két utcáról bejárható, parkosított telek
•automata öntözőrendszer fúrt kúttal
•robotfűnyíró
•térkövezett autóbeálló több autónak
•32 m² száraz, szigetelt pince
•16 m² fedett terasz
•beépíthető tetőtér
•hűtő–fűtő klíma
•gáz- és vegyes tüzelésű kazán
•hőszigetelt nyílászárók redőnnyel és szúnyoghálóval
•30 cm födémszigetelés + 10 cm homlokzati szigetelés
•minőségi burkolatok, egységes színvilág
•részben bútorozva és gépesítve eladó
Eladó egy igényesen felújított, önálló téglaépítésű családi ház, ahol minden részlet arra törekszik, hogy kényelmes, modern és letisztult életteret biztosítson. A felújítás során minőségi anyagokat használtak, a ház egészét összehangolt színvilág és egységes, időtálló burkolatok jellemzik, ami már belépéskor kellemes, harmonikus hangulatot teremt.
Az ingatlan két külön nyíló szobából és tágas nappali–konyha–étkező térből áll, ahol a természetes fény és a modern kialakítás igazán hívogatóvá teszi a tereket. A hőszigetelt, redőnnyel és szúnyoghálóval felszerelt nyílászárók, valamint a biztonsági bejárati ajtó a komfort és biztonság érdekében kerültek beépítésre.
A ház energetikailag is korszerű: 10 cm homlokzati szigetelés és 30 cm födémszigetelés gondoskodik az optimális hőmegtartásról. A fűtést gázkazán és vegyes tüzelésű kazán biztosítja, emellett hűtő-fűtő klíma is rendelkezésre áll, így a hőérzet minden évszakban könnyen szabályozható.
A nappaliból egy 16 m²-es fedett teraszra léphetünk ki, amely kellemes helyszínt biztosít pihenésre vagy vendégfogadásra. A házhoz tartozó 32 m²-es, száraz, szigetelt pince pedig kiváló lehetőség tárolásra vagy akár hobbihelyiség kialakítására. A tetőtér beépíthető, így a ház igény szerint tovább is bővíthető.
A 773 m²-es telek két utcáról is megközelíthető, és gondosan parkosított, rendezett kertjével igazi kertvárosi hangulatot kínál. Automata öntözőrendszer látja el a növényeket fúrt kútról, a friss gyepszőnyeg vakondhálóval védett, a kertben játszórész, kerti zuhany, kutyakennel és egy tágas kerti tároló teszi teljessé a kert kényelmét.
A környezet nyugodt, családbarát, sétatávolságban található óvoda, bölcsőde, üzletek, játszótér, valamint a vasútállomás, ahonnan Budapest fél órán belül elérhető.
Az ingatlant szinte teljes bútorzattal, kert bútorral, gépekkel kínáljuk eladásra.
Jöjjön el nézze meg biztosan beleszeret!
Várom hívását a hét minden napján akár hétvégén is!