Eladó Ház- házrész
Hirdetéskód: 9277359
Duna House - Új-Lak Bázis Kft.
Felújításhoz személyi kölcsönt keres? Kalkuláljon itt! →120.00 m2
ALAPTERÜLET5
SZOBASZÁMnincs megadva
ÉPÍTÉSnincs megadva
FŰTÉS- CSOK igénybe vehető nem
- Tetőtér beépíthető nem
- Építés éve 2026
- Klíma nem
- Szigetelt nem
A+++
A++
A+
A
B
C
D
E
F
G
H
I
Az ingatlan leírása
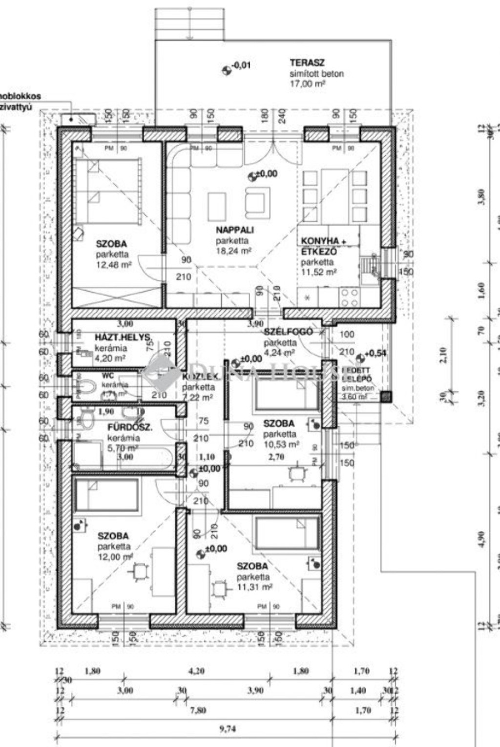
SÜLYSÁP FREKVENTÁLT RÉSZÉN ÚJ ÉPÍTÉSŰ, 4 SZOBÁS SORHÁZ SAJÁT TELEKKEL!
HÁTSÓ INGATLAN NYUGALOM ÉS INTIMITÁS!
Sülysápon, csendes utcában, egy 1079 m²-es telken kínálok megvételre új építésű, nettó 100 m²-es, kiváló elosztású családi házat.
A hátsó lakáshoz 550m² kizárólagos használatú kert tartozik, amely tökéletes választás pihenéshez, kerti sütögetéshez, medencéhez vagy akár mobilgarázs kialakításához.
MŰSZAKI TARTALOM MINŐSÉG, AMI HOSSZÚ TÁVRA SZÓL
30 cm-es nútféderes tégla falazat
Fa födém
Antracit betoncserép fedés
15 cm EPS homlokzati szigetelés
10 cm Austrotherm padlószigetelés
25 cm ásványgyapot födémszigetelés
6 légkamrás, 3 rétegű üvegezésű nyílászárók
MODERN, GAZDASÁGOS FŰTÉS
10 kW-os monoblokkos hőszivattyú
Teljes körű padlófűtés
EXTRA KÉNYELEM
17 m²-es nyitott terasz
Riasztó- és kapumozgató elektronika előkészítés
PRAKTIKUS, CSALÁDBARÁT ELRENDEZÉS
4 tágas szoba
Amerikai konyhás nappali
Fürdőszoba + külön WC
Külön háztartási helyiség
Átgondolt, élhető alaprajz
VÁLASZTHATÓ MŰSZAKI TARTALOM (KÖLTSÉGKERETEN BELÜL)
Hideg- és melegburkolatok: 3.000 Ft/m²-ig
Csaptelepek: 15.000 Ft/db
Kád vagy zuhany: 40.000 Ft
Beltéri ajtók: 35.000 Ft/db
Falsík mögötti WC rendszer
Magasabb kategória is választható, a különbözet ráfizetésével.
ELEKTROMOS KIÉPÍTÉS
Szobákban: 3-3 konnektor
Nappaliban: 4 konnektor + internet + kábel TV
Konyhában: 6 konnektor
Helyiségenként világítási kiállás
Kábel TV előkészítés
MEGBÍZHATÓ KIVITELEZŐ
A kivitelező Kókán több mint 20 ingatlant épített, referenciaházak komoly érdeklődés esetén megtekinthetők.
Várható átadás: 2026. AUGUSZTUS
Hívjon bizalommal!
Nézzük meg együtt leendő ÚJ OTTHONÁT!
Független hitelügyintézővel is segítem a vásárlást.
HÁTSÓ INGATLAN NYUGALOM ÉS INTIMITÁS!
Sülysápon, csendes utcában, egy 1079 m²-es telken kínálok megvételre új építésű, nettó 100 m²-es, kiváló elosztású családi házat.
A hátsó lakáshoz 550m² kizárólagos használatú kert tartozik, amely tökéletes választás pihenéshez, kerti sütögetéshez, medencéhez vagy akár mobilgarázs kialakításához.
MŰSZAKI TARTALOM MINŐSÉG, AMI HOSSZÚ TÁVRA SZÓL
30 cm-es nútféderes tégla falazat
Fa födém
Antracit betoncserép fedés
15 cm EPS homlokzati szigetelés
10 cm Austrotherm padlószigetelés
25 cm ásványgyapot födémszigetelés
6 légkamrás, 3 rétegű üvegezésű nyílászárók
MODERN, GAZDASÁGOS FŰTÉS
10 kW-os monoblokkos hőszivattyú
Teljes körű padlófűtés
EXTRA KÉNYELEM
17 m²-es nyitott terasz
Riasztó- és kapumozgató elektronika előkészítés
PRAKTIKUS, CSALÁDBARÁT ELRENDEZÉS
4 tágas szoba
Amerikai konyhás nappali
Fürdőszoba + külön WC
Külön háztartási helyiség
Átgondolt, élhető alaprajz
VÁLASZTHATÓ MŰSZAKI TARTALOM (KÖLTSÉGKERETEN BELÜL)
Hideg- és melegburkolatok: 3.000 Ft/m²-ig
Csaptelepek: 15.000 Ft/db
Kád vagy zuhany: 40.000 Ft
Beltéri ajtók: 35.000 Ft/db
Falsík mögötti WC rendszer
Magasabb kategória is választható, a különbözet ráfizetésével.
ELEKTROMOS KIÉPÍTÉS
Szobákban: 3-3 konnektor
Nappaliban: 4 konnektor + internet + kábel TV
Konyhában: 6 konnektor
Helyiségenként világítási kiállás
Kábel TV előkészítés
MEGBÍZHATÓ KIVITELEZŐ
A kivitelező Kókán több mint 20 ingatlant épített, referenciaházak komoly érdeklődés esetén megtekinthetők.
Várható átadás: 2026. AUGUSZTUS
Hívjon bizalommal!
Nézzük meg együtt leendő ÚJ OTTHONÁT!
Független hitelügyintézővel is segítem a vásárlást.