Eladó Ház- házrész
Hirdetéskód: 9277365
Duna House - Új-Lak Bázis Kft.
Felújításhoz személyi kölcsönt keres? Kalkuláljon itt! →120.00 m2
ALAPTERÜLET5
SZOBASZÁMnincs megadva
ÉPÍTÉSnincs megadva
FŰTÉS- CSOK igénybe vehető nem
- Tetőtér beépíthető nem
- Építés éve 2026
- Klíma nem
- Szigetelt nem
A+++
A++
A+
A
B
C
D
E
F
G
H
I
Az ingatlan leírása
SÜLYSÁP KEDVELT, FREKVENTÁLT RÉSZÉN ÚJ ÉPÍTÉSŰ, 4 SZOBÁS OTTHON SAJÁT, HATALMAS KERTTEL!
ELSŐ ingatlan = maximális nyugalom és intimitás!
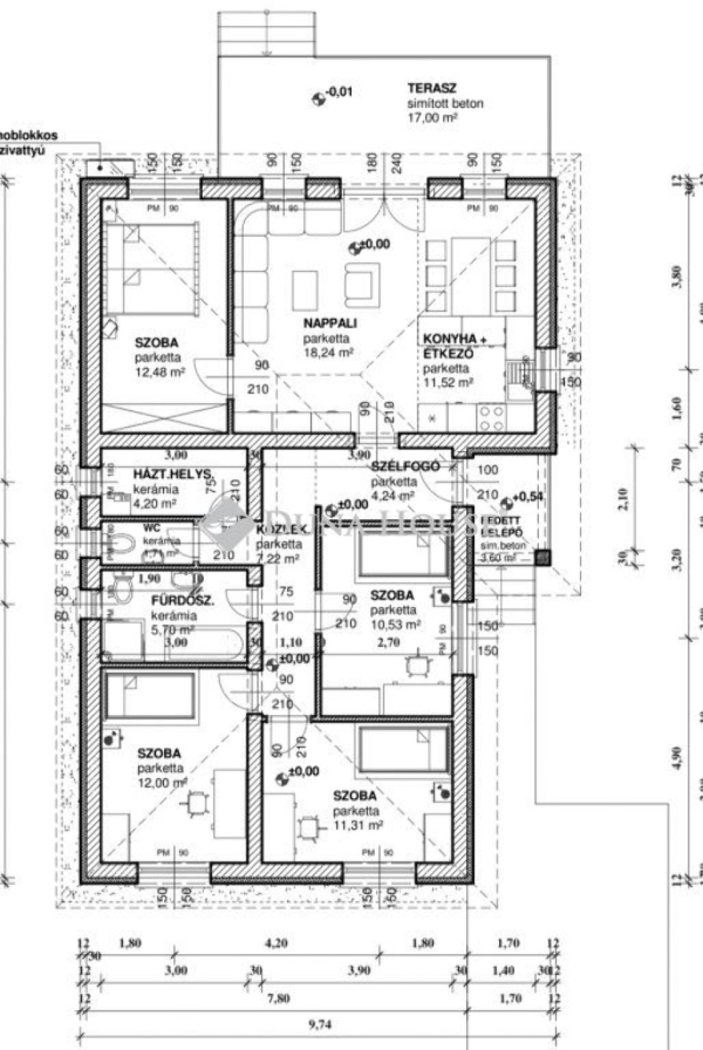
Sülysáp csendes utcájában, egy 1151 m²-es telken kínálok megvételre egy nettó 100 m²-es, modern kialakítású, kiváló elosztású új építésű otthont.
A ELSŐ lakáshoz 550 m² kizárólagos használatú kert tartozik itt tényleg megvalósíthatja elképzeléseit: medence, grillterasz, játszótér a gyerekeknek vagy akár mobilgarázs is kényelmesen elfér.
IDŐTÁLLÓ MŰSZAKI TARTALOM AMIRE HOSSZÚ TÁVON IS SZÁMÍTHAT
30 cm-es nútféderes tégla falazat
15 cm homlokzati szigetelés
10 cm Austrotherm padlószigetelés
25 cm ásványgyapot födémszigetelés
Antracit betoncserép fedés
6 légkamrás, 3 rétegű üvegezésű nyílászárók
Minőség, ami nem csak ma, hanem évek múlva is értéket képvisel.
MODERN, ENERGIATAKARÉKOS MEGOLDÁSOK
10 kW-os monoblokkos hőszivattyú
Teljes körű padlófűtés
Alacsony rezsi, korszerű technológia, kényelmes hőérzet.
ÁTGONDOLT, CSALÁDBARÁT ELRENDEZÉS
4 külön nyíló, tágas szoba
Amerikai konyhás nappali
Fürdőszoba + külön WC
Külön háztartási helyiség
17 m²-es nyitott terasz
Világos, élhető terek, jól bútorozható alaprajz.
SZEMÉLYRE SZABHATÓ BEFEJEZÉS
A burkolatok és szaniterek az alábbi költségkereten belül választhatók:
Burkolatok: 3.000 Ft/m²-ig
Csaptelepek: 15.000 Ft/db
Kád vagy zuhany: 40.000 Ft
Beltéri ajtók: 35.000 Ft/db
Falsík mögötti WC rendszer
Igény esetén magasabb kategória is elérhető, ráfizetéssel.
KORSZERŰ ELEKTROMOS KIÉPÍTÉS
Szobánként 3-3 konnektor
Nappaliban 4 konnektor + internet + kábel TV
Konyhában 6 konnektor
Helyiségenként világítási kiállás
Riasztó- és kapumozgató előkészítés
MEGBÍZHATÓ, TAPASZTALT KIVITELEZŐ
A kivitelező Kókán több mint 20 ingatlant épített.
Referenciaházak komoly érdeklődés esetén megtekinthetők!
Várható átadás: 2026. Szeptember
Ha egy modern, energiatakarékos, saját kerttel rendelkező új otthont keres Sülysápon, ezt érdemes megnézni!
Hívjon bizalommal, nézzük meg együtt leendő új otthonát!
Független hitelügyintézővel a teljes vásárlási folyamatban segítem.
ELSŐ ingatlan = maximális nyugalom és intimitás!
Sülysáp csendes utcájában, egy 1151 m²-es telken kínálok megvételre egy nettó 100 m²-es, modern kialakítású, kiváló elosztású új építésű otthont.
A ELSŐ lakáshoz 550 m² kizárólagos használatú kert tartozik itt tényleg megvalósíthatja elképzeléseit: medence, grillterasz, játszótér a gyerekeknek vagy akár mobilgarázs is kényelmesen elfér.
IDŐTÁLLÓ MŰSZAKI TARTALOM AMIRE HOSSZÚ TÁVON IS SZÁMÍTHAT
30 cm-es nútféderes tégla falazat
15 cm homlokzati szigetelés
10 cm Austrotherm padlószigetelés
25 cm ásványgyapot födémszigetelés
Antracit betoncserép fedés
6 légkamrás, 3 rétegű üvegezésű nyílászárók
Minőség, ami nem csak ma, hanem évek múlva is értéket képvisel.
MODERN, ENERGIATAKARÉKOS MEGOLDÁSOK
10 kW-os monoblokkos hőszivattyú
Teljes körű padlófűtés
Alacsony rezsi, korszerű technológia, kényelmes hőérzet.
ÁTGONDOLT, CSALÁDBARÁT ELRENDEZÉS
4 külön nyíló, tágas szoba
Amerikai konyhás nappali
Fürdőszoba + külön WC
Külön háztartási helyiség
17 m²-es nyitott terasz
Világos, élhető terek, jól bútorozható alaprajz.
SZEMÉLYRE SZABHATÓ BEFEJEZÉS
A burkolatok és szaniterek az alábbi költségkereten belül választhatók:
Burkolatok: 3.000 Ft/m²-ig
Csaptelepek: 15.000 Ft/db
Kád vagy zuhany: 40.000 Ft
Beltéri ajtók: 35.000 Ft/db
Falsík mögötti WC rendszer
Igény esetén magasabb kategória is elérhető, ráfizetéssel.
KORSZERŰ ELEKTROMOS KIÉPÍTÉS
Szobánként 3-3 konnektor
Nappaliban 4 konnektor + internet + kábel TV
Konyhában 6 konnektor
Helyiségenként világítási kiállás
Riasztó- és kapumozgató előkészítés
MEGBÍZHATÓ, TAPASZTALT KIVITELEZŐ
A kivitelező Kókán több mint 20 ingatlant épített.
Referenciaházak komoly érdeklődés esetén megtekinthetők!
Várható átadás: 2026. Szeptember
Ha egy modern, energiatakarékos, saját kerttel rendelkező új otthont keres Sülysápon, ezt érdemes megnézni!
Hívjon bizalommal, nézzük meg együtt leendő új otthonát!
Független hitelügyintézővel a teljes vásárlási folyamatban segítem.