Eladó Ház- házrész
Hirdetéskód: 9233754
GDN Ingatlanhálózat - Új Otthon iroda
Felújításhoz személyi kölcsönt keres? Kalkuláljon itt! →
Ez a hirdetés megfelelhet a FIX 3%-os programnak.
Tudj meg többet a részletekről itt.
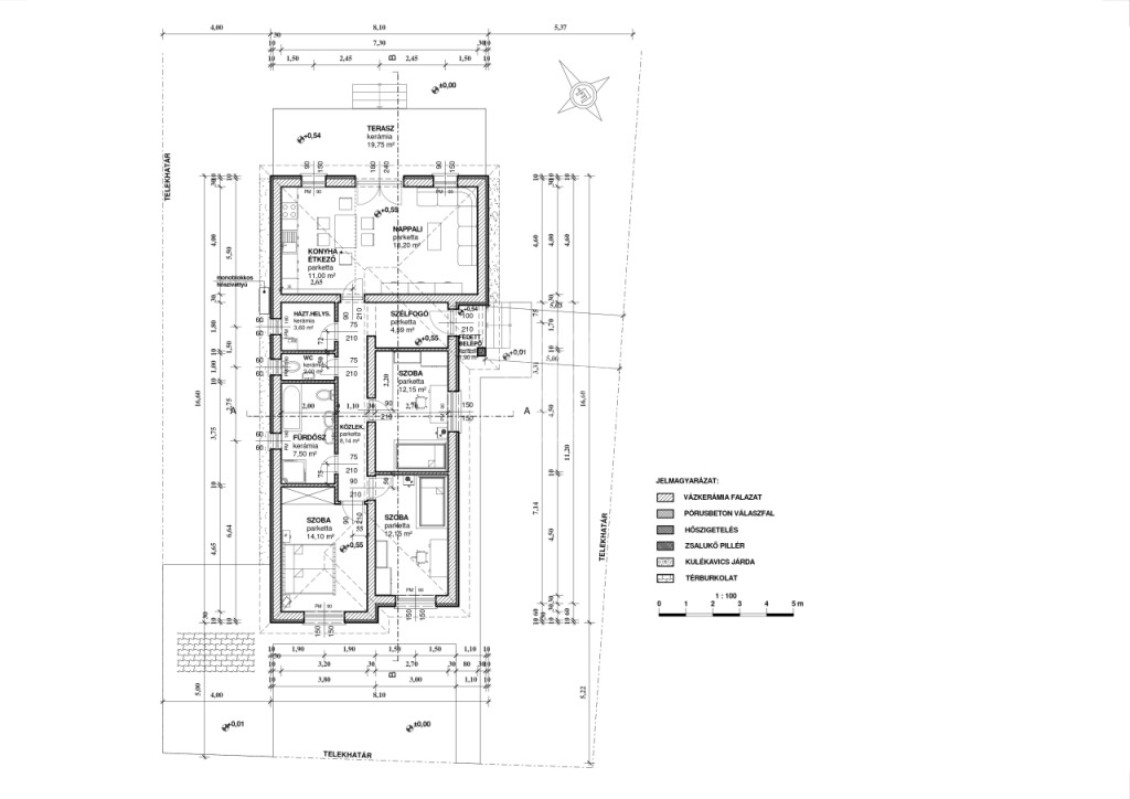
93.00 m2
ALAPTERÜLET4
SZOBASZÁMnincs megadva
ÉPÍTÉSnincs megadva
FŰTÉS- CSOK igénybe vehető nem
- Tetőtér beépíthető nem
- Klíma nem
- Szigetelt nem
A+++
A++
A+
A
B
C
D
E
F
G
H
I
Az ingatlan leírása
Sülysápon a Határ úton , 874m2-es telken nettó 92,68 m2-es három szoba + amerikai konyhás nappalival rendelkező, energiahatékony családi házak eladók, számos referenciával rendelkező kivitelezőtől!
A Határ út Sülysáp Kóka felőli utolsó utcája, mégis közel van a központhoz. A telekről csodálataos panoráma nyílik a mögötte elhelyezkedő szántóra és az erdőre.
Az engedélyezett tervek elkészültek az építkezés április első hetében indul. Már csak az első ingatlan elérhető.
A tartószerkezeti falak Porotherm P30N+F téglából, betonkoszorúval, fa födémes tetőszerkezettel készülnek. A lábazat 10 cm polisztirol lépésálló, a homlokzatok 10cm-es Austrotherm Grafitos, a vízszintes födém 25 cm ásványgyapot szigeteléssel lesz ellátva.
Három rétegű üvegekkel szerelt, hat légkamrás műanyag thermo nyílászárók kerülnek beépítésre.
A minimális energiaigényt a megfelelő szigetelésen kívül a megújuló energiát használó gépészet is biztosítja. A fűtést levegő-víz hőszivattyús rendszer fogja végezni.
Burkolatok , szaniterek, belső ajtók, csaptelepek választhatóak a következő értékhatárig:
-Hidegburkolat: 3000 Ft.-/m2
-Melegburkolat: 3000 Ft.-/m2
-Beltéri ajtók: 30.000.Ft.-/db
-Fürdőkád: 40.000.- Ft.-
-Csaptelepek: 15000.- Ft.-/db
Magasabb árú választás is lehetséges, a különbség finanszírozásával.
A kivitelező korábban Sülysápon épített, már birtokbaadott ingatlanjait komoly érdeklődés esetén szívesen megmutatjuk referenciaként.
Központi elhelyezkedésének köszönhetően a közelben megtalálhatóak:
-óvoda 300m
-Móra Ferenc általános iskola 600m
-Tesco 700m
-Vasútállomás 450m
-Polgármesteri hivatal 650m
-Sülysáp 1-es Posta 650m
-Sülysáp Városi Piac 900m
Csok plusz és Otthon Start igényelhető!
Tervezett átadás 2026 harmadik negyedéve
INGYENES hitel tanácsadás, CSOK Plusz ügyintézés!
BANKFÜGGETLEN hitelcentrumunk az összes elérhető bank és hitelintézet ajánlatát versenyezteti az Ön kedvéért, ráadásul DÍJMENTESEN.
- Egyedi, bankfiókban nem elérhető kamat- és díjkedvezmények
- Hitelképesség vizsgálat
- Idő, energia és pénz megtakarítás
- Teljes hivatali ügyintézés
Amennyiben hirdetésem felkeltette az érdeklődését vagy egyéb információra van szüksége hívjon bizalommal! ...TOVÁBBI, TÖBBEZRES INGATLAN KÍNÁLAT: - GDN azonosító: 390821
A Határ út Sülysáp Kóka felőli utolsó utcája, mégis közel van a központhoz. A telekről csodálataos panoráma nyílik a mögötte elhelyezkedő szántóra és az erdőre.
Az engedélyezett tervek elkészültek az építkezés április első hetében indul. Már csak az első ingatlan elérhető.
A tartószerkezeti falak Porotherm P30N+F téglából, betonkoszorúval, fa födémes tetőszerkezettel készülnek. A lábazat 10 cm polisztirol lépésálló, a homlokzatok 10cm-es Austrotherm Grafitos, a vízszintes födém 25 cm ásványgyapot szigeteléssel lesz ellátva.
Három rétegű üvegekkel szerelt, hat légkamrás műanyag thermo nyílászárók kerülnek beépítésre.
A minimális energiaigényt a megfelelő szigetelésen kívül a megújuló energiát használó gépészet is biztosítja. A fűtést levegő-víz hőszivattyús rendszer fogja végezni.
Burkolatok , szaniterek, belső ajtók, csaptelepek választhatóak a következő értékhatárig:
-Hidegburkolat: 3000 Ft.-/m2
-Melegburkolat: 3000 Ft.-/m2
-Beltéri ajtók: 30.000.Ft.-/db
-Fürdőkád: 40.000.- Ft.-
-Csaptelepek: 15000.- Ft.-/db
Magasabb árú választás is lehetséges, a különbség finanszírozásával.
A kivitelező korábban Sülysápon épített, már birtokbaadott ingatlanjait komoly érdeklődés esetén szívesen megmutatjuk referenciaként.
Központi elhelyezkedésének köszönhetően a közelben megtalálhatóak:
-óvoda 300m
-Móra Ferenc általános iskola 600m
-Tesco 700m
-Vasútállomás 450m
-Polgármesteri hivatal 650m
-Sülysáp 1-es Posta 650m
-Sülysáp Városi Piac 900m
Csok plusz és Otthon Start igényelhető!
Tervezett átadás 2026 harmadik negyedéve
INGYENES hitel tanácsadás, CSOK Plusz ügyintézés!
BANKFÜGGETLEN hitelcentrumunk az összes elérhető bank és hitelintézet ajánlatát versenyezteti az Ön kedvéért, ráadásul DÍJMENTESEN.
- Egyedi, bankfiókban nem elérhető kamat- és díjkedvezmények
- Hitelképesség vizsgálat
- Idő, energia és pénz megtakarítás
- Teljes hivatali ügyintézés
Amennyiben hirdetésem felkeltette az érdeklődését vagy egyéb információra van szüksége hívjon bizalommal! ...TOVÁBBI, TÖBBEZRES INGATLAN KÍNÁLAT: - GDN azonosító: 390821