Eladó Ház- házrész
Hirdetéskód: 9068463
Bucalics Roxána
Felújításhoz személyi kölcsönt keres? Kalkuláljon itt! →98.00 m2
ALAPTERÜLET4
SZOBASZÁMnincs megadva
ÉPÍTÉSnincs megadva
FŰTÉS- CSOK igénybe vehető nem
- Tetőtér beépíthető nem
- Építés éve 2025
- Klíma nem
- Szigetelt nem
A+++
A++
A+
A
B
C
D
E
F
G
H
I
Az ingatlan leírása
MINTHA ÖNÁLLÓ LENNE !
Szolgalmi út nélküli ikerház eladó Sóskút hangulatos részén !
Sóskút keresett részen prémium minőségű ikerház épül. Az épületek dupla fallal és légréssel elválasztva, így semmilyen hang nem zavarhatja a nyugalmát. Teljesen külön megközelíthető, nincs szolgalmi út.
Az ingatlant a 2025-ös év kedvezményes feltételeivel tudja megvásárolni.
CSOK Plusz igényelhető és Illeték kedvezmény egyaránt.
Foglalja le már most leendő otthonát 10%-al. Az építkezés hamarosan kezdetét veszi.
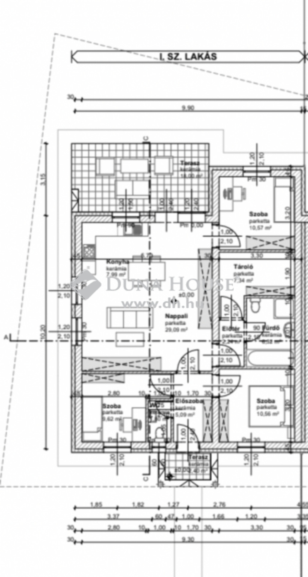
Az ingatlan nettó 90,62 m2 + 15 m2-es terasz és saját 443 m2 kertkapcsolattal. A helyiségek napfényesek, köszönhetően a jó tájolásnak és a jó méretű egyedi nyílászáróknak.
Elosztását tekintve:
- Előszoba
- 3 jó méretű hálószoba
- Gardrób/Tároló
- Tágas amerikai konyhás nappali
- Fürdőszoba
- Külön mellékhelyiség
- Terasz
- 443 m2-es saját kert
EXTRÁK:
- Elektromos alumínium redőnyök
Műszaki adatok:
- 30-as Porotherm tégla, 10 cm Ytong válaszfalak
- 15 cm grafitos homlokzati szigetelés
- Hőszivattyús fűtés
- Minden helyiségben padlófűtés
- Betoncserép
- 3 rétegű 6 légkamrás nyílászárók, kívül antracit kivitelben
- 2 db autónak kocsibeálló
- Riasztó előkészítése
- Szaniterek
- Hideg/meleg burkolatok ( 7000 Ft/m2 meleg: 7000 Ft/ m2 )
- Beltéri ajtók
- Bejárati ajtó
Ezek mind kiemelkedő minőségben és az átlagnál magasabb áron választhatóak. Árlista tőlem kérhető.Az építkezés megtekintése után minden a házzal kapcsolatos dokumentáció rendelkezésre áll.
Megbízható kivitelezés, rugalmasság.
Környék rendezett, minden perceken belül elérhető. Iskola, óvoda, bevásárlási lehetőségek, M7 autópálya.
Várható átadás: 2025 Ősz
További információkért hívjon bizalommal.
Szolgalmi út nélküli ikerház eladó Sóskút hangulatos részén !
Sóskút keresett részen prémium minőségű ikerház épül. Az épületek dupla fallal és légréssel elválasztva, így semmilyen hang nem zavarhatja a nyugalmát. Teljesen külön megközelíthető, nincs szolgalmi út.
Az ingatlant a 2025-ös év kedvezményes feltételeivel tudja megvásárolni.
CSOK Plusz igényelhető és Illeték kedvezmény egyaránt.
Foglalja le már most leendő otthonát 10%-al. Az építkezés hamarosan kezdetét veszi.
Az ingatlan nettó 90,62 m2 + 15 m2-es terasz és saját 443 m2 kertkapcsolattal. A helyiségek napfényesek, köszönhetően a jó tájolásnak és a jó méretű egyedi nyílászáróknak.
Elosztását tekintve:
- Előszoba
- 3 jó méretű hálószoba
- Gardrób/Tároló
- Tágas amerikai konyhás nappali
- Fürdőszoba
- Külön mellékhelyiség
- Terasz
- 443 m2-es saját kert
EXTRÁK:
- Elektromos alumínium redőnyök
Műszaki adatok:
- 30-as Porotherm tégla, 10 cm Ytong válaszfalak
- 15 cm grafitos homlokzati szigetelés
- Hőszivattyús fűtés
- Minden helyiségben padlófűtés
- Betoncserép
- 3 rétegű 6 légkamrás nyílászárók, kívül antracit kivitelben
- 2 db autónak kocsibeálló
- Riasztó előkészítése
- Szaniterek
- Hideg/meleg burkolatok ( 7000 Ft/m2 meleg: 7000 Ft/ m2 )
- Beltéri ajtók
- Bejárati ajtó
Ezek mind kiemelkedő minőségben és az átlagnál magasabb áron választhatóak. Árlista tőlem kérhető.Az építkezés megtekintése után minden a házzal kapcsolatos dokumentáció rendelkezésre áll.
Megbízható kivitelezés, rugalmasság.
Környék rendezett, minden perceken belül elérhető. Iskola, óvoda, bevásárlási lehetőségek, M7 autópálya.
Várható átadás: 2025 Ősz
További információkért hívjon bizalommal.