Eladó Ház- házrész
Hirdetéskód: 9307307
Openhouse Sopron Ingatlaniroda
Felújításhoz személyi kölcsönt keres? Kalkuláljon itt! →240.00 m2
ALAPTERÜLET7
SZOBASZÁMnincs megadva
ÉPÍTÉSGáz (cirkó)
FŰTÉS- CSOK igénybe vehető nem
- Tetőtér beépíthető nem
- Építés éve 2016
- Fűtés Gáz (cirkó)
- Klíma nem
- Szigetelt nem
A+++
A++
A+
A
B
C
D
E
F
G
H
I
Az ingatlan leírása
Az Openhouse Sopron Ingatlaniroda kínálatában eladó a #180422 hivatkozási számú soproni családi ház.
Eladó Sopron egyik legszebb részén, Kutyahegyen egy háromszintes, modern családi ház, amely lakhatásra és vállalkozásra is kiváló lehetőséget kínál.
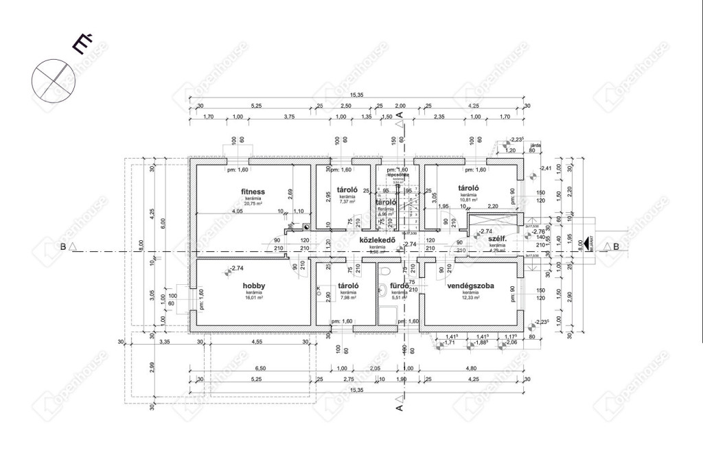
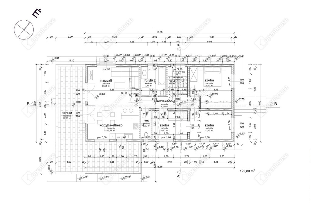
Az ingatlan kb. 310 m² potenciális hasznos területtel rendelkezik, három szinten.
Főbb jellemzők
pince szint ~100 m² (fitness / hobby / vendégtér)
lakószint ~102 m²
tetőtér ~110 m² (szerkezet kész)
53 m² terasz motoros télikerttetővel
panorámás telek
kondenzációs kazán + padlófűtés
kandalló lehetőség
3 rétegű Rába nyílászárók
elektromos redőnyök
A földszint vállalkozásra is alkalmas (iroda, szalon vagy szolgáltatás).
Írj üzenetet és elküldöm a teljes alaprajzot és részleteket.
Ha felkeltette érdeklődését ez az eladó soproni családi ház, vagy bármely más családi ház és bővebb információt szeretne, keressen bizalommal.Hivatkozási szám: #180422
Az Openhouse Sopron Ingatlaniroda tagjaként várom Önt az országos hálózatunk teljes kínálatával.
A családi ház vásárláshoz hitelt igényelne? Ingyenes hitelközvetítéssel segít Önnek bankfüggetlen hitelszakértőnk.
További szolgáltatásainkkal (pl. értékbecslés, energetikai tanúsítvány, jogi háttér) is segítjük Önt a vásárlásban.
Az otthon érték. Az ingatlan üzlet.
Eladó Sopron egyik legszebb részén, Kutyahegyen egy háromszintes, modern családi ház, amely lakhatásra és vállalkozásra is kiváló lehetőséget kínál.
Az ingatlan kb. 310 m² potenciális hasznos területtel rendelkezik, három szinten.
Főbb jellemzők
pince szint ~100 m² (fitness / hobby / vendégtér)
lakószint ~102 m²
tetőtér ~110 m² (szerkezet kész)
53 m² terasz motoros télikerttetővel
panorámás telek
kondenzációs kazán + padlófűtés
kandalló lehetőség
3 rétegű Rába nyílászárók
elektromos redőnyök
A földszint vállalkozásra is alkalmas (iroda, szalon vagy szolgáltatás).
Írj üzenetet és elküldöm a teljes alaprajzot és részleteket.
Ha felkeltette érdeklődését ez az eladó soproni családi ház, vagy bármely más családi ház és bővebb információt szeretne, keressen bizalommal.Hivatkozási szám: #180422
Az Openhouse Sopron Ingatlaniroda tagjaként várom Önt az országos hálózatunk teljes kínálatával.
A családi ház vásárláshoz hitelt igényelne? Ingyenes hitelközvetítéssel segít Önnek bankfüggetlen hitelszakértőnk.
További szolgáltatásainkkal (pl. értékbecslés, energetikai tanúsítvány, jogi háttér) is segítjük Önt a vásárlásban.
Az otthon érték. Az ingatlan üzlet.