Eladó Ház- házrész
Hirdetéskód: 9274110
HOUSE36 Ingatlanhálózat
Felújításhoz személyi kölcsönt keres? Kalkuláljon itt! →372.00 m2
ALAPTERÜLET10
SZOBASZÁMnincs megadva
ÉPÍTÉSnincs megadva
FŰTÉS- CSOK igénybe vehető nem
- Tetőtér beépíthető nem
- Építés éve 1995
- Klíma nem
- Szigetelt nem
A+++
A++
A+
A
B
C
D
E
F
G
H
I
Az ingatlan leírása
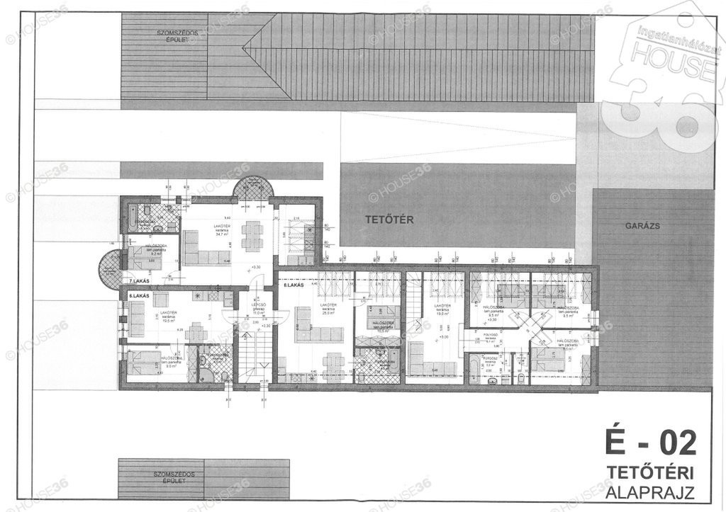
Soltvadkert központjában, 920 m2 telekterületen elhelyezkedő, tégla falazatú, két szintes, 8 lakásos lakóépület eladó!
A lakásokban a villany- és vízvezetékek cseréje megtörtént, a padlófűtéscsövek beépítésre kerültek.
A befejezés az új tulajdonosra vár, az elvégzendő munkálatok közé tartozik:
- fűtésrendszer kiépítése (kazánok telepítése)
- homlokzat hőszigetelése
- az emeleti lakásoknál mennyezet kialakítása, erkélyek befejezése
- belső nyílászárók beépítése, burkolatok, szaniterek, vizes- és elektromos szerelvényezés, bútorozás, festés
- udvar füvesítése/térkövezése
- további fedett gépkocsibeállók kiépítése
Ezt az ingatlant - az újjáalakított, modern lakások hatékonyabb értékesíthetőségére tekintettel - elsősorban befektetők, generálkivitelezők részére ajánlom.
Figyelem, az adatlap megbízóinktól kapott adatok alapján készült, pontosságáért felelősséget nem tudunk vállalni!
Amennyiben a hirdetés felkeltette érdeklődését, illetve eladó vagy kiadó ingatlana van, forduljon hozzám bizalommal. Szolgáltatásaink kereső ügyfeleink részére díjmentesek!
A lakásokban a villany- és vízvezetékek cseréje megtörtént, a padlófűtéscsövek beépítésre kerültek.
A befejezés az új tulajdonosra vár, az elvégzendő munkálatok közé tartozik:
- fűtésrendszer kiépítése (kazánok telepítése)
- homlokzat hőszigetelése
- az emeleti lakásoknál mennyezet kialakítása, erkélyek befejezése
- belső nyílászárók beépítése, burkolatok, szaniterek, vizes- és elektromos szerelvényezés, bútorozás, festés
- udvar füvesítése/térkövezése
- további fedett gépkocsibeállók kiépítése
Ezt az ingatlant - az újjáalakított, modern lakások hatékonyabb értékesíthetőségére tekintettel - elsősorban befektetők, generálkivitelezők részére ajánlom.
Figyelem, az adatlap megbízóinktól kapott adatok alapján készült, pontosságáért felelősséget nem tudunk vállalni!
Amennyiben a hirdetés felkeltette érdeklődését, illetve eladó vagy kiadó ingatlana van, forduljon hozzám bizalommal. Szolgáltatásaink kereső ügyfeleink részére díjmentesek!