Eladó Ház- házrész
Hirdetéskód: 9203416

OTP Ingatlanpont Siófok

Felújításhoz személyi kölcsönt keres? Kalkuláljon itt! →
75.00 m2
ALAPTERÜLET
2
SZOBASZÁM
nincs megadva
ÉPÍTÉS
Elektromos
FŰTÉS
  • CSOK igénybe vehető nem
  • Tetőtér beépíthető nem
  • Építés éve 1970
  • Fűtés Elektromos
  • Klíma nem
  • Szigetelt nem
Energetikai besorolás: Nincs meghatározva
A+++
A++
A+
A
B
C
D
E
F
G
H
I

Az MBH Bank személyi kölcsön ajánlata

Fizetett hirdetés
1 millió Ft
6 évre
20 585 Ft/hó
THM: 14.5%
Részletek →
2 millió Ft
6 évre
41 169 Ft/hó
THM: 14.5%
Részletek →
3 millió Ft
6 évre
61 754 Ft/hó
THM: 14.5%
Részletek →

A tájékoztatás nem teljes körű és nem minősül ajánlattételnek.

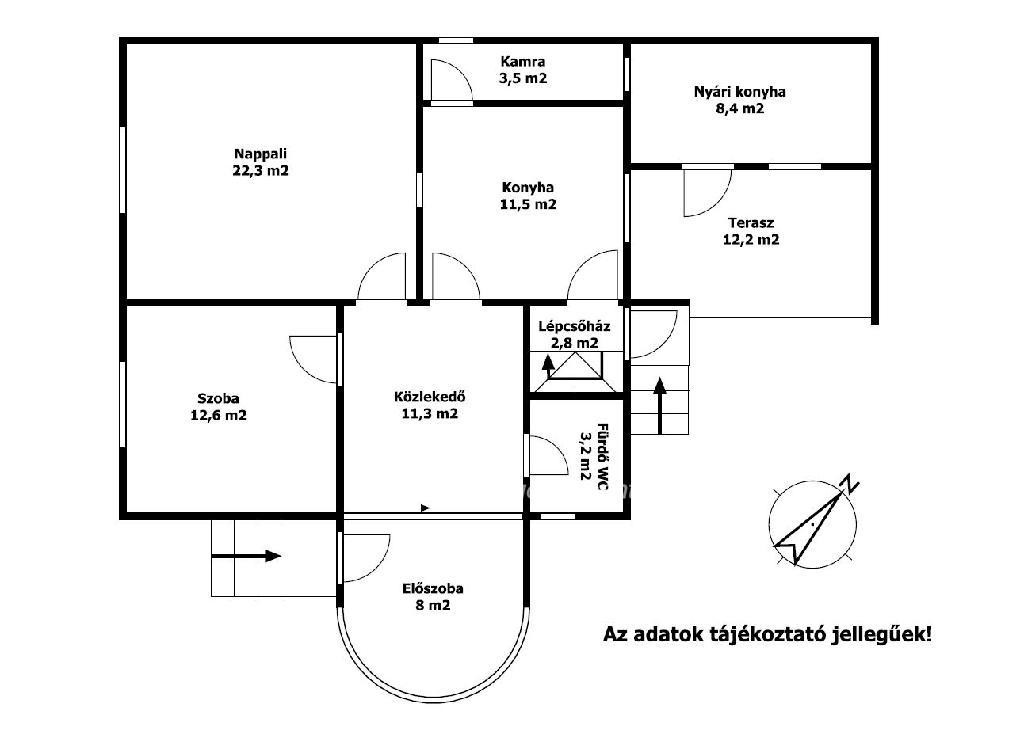
Az ingatlan leírása

Balaton déli part, Siófok, 75 m2 családi ház eladó. Az ingatlan a Belvároshoz közel, forgalmas út mellett helyezkedik el. A földszintes lakóépület több elemében az elmúlt években felújításra került, nyílászárók nagy részben korszerű műanyag szerkezetek, a külső homlokzat hőszigetelést és új vakolatot kapott, a tető, tetőhéjazat megújult. A belső térben új padlóburkolatok készültek, közlekedőben elektromos padlófűtéssel. A fűtés elektromos infra panelekkel megoldott. A lakótérben hűtő fűtő klímaberendezés került kiépítésre. A jól karbantartott épület kedvező tájolású, déli-nyugati benapozású. A konyhabútor a vételár részét képezi, a többi berendezés további megegyezés tárgya lehet. A telek területe 316 m2. A lakóépület részben alápincézett, mögötte nyári konyha és fedett terasz található. Balaton-part 1500 méterre, autóval 5 perc alatt elérhető. Otthon Start Program. Bővebb információért keressen telefonon!

Térkép

Ingatlan adásvétel ügyvédi díja
355 500 Ft
a hirdetésben szereplő ár alapján
  • A vételár 0,45%-a
  • Szerződéscsomag teljeskörű képviselettel
  • Ingyenes tulajdoni lap ellenőrzés
  • Az ÁFA-t már tartalmazza
Érdekel az ajánlat →
A tájékoztatás nem teljes körű és nem minősül ajánlattételnek. Minimum díj: 150 000 Ft, maximum díj: 600 000 Ft. A díj kizárólag lakóingatlan adásvételére vonatkozik.

A hirdető elérhetősége

OTP Ingatlanpont Siófok

Katona Tamás
+36 70 442