Eladó Ház- házrész
Hirdetéskód: 9326763

-

Felújításhoz személyi kölcsönt keres? Kalkuláljon itt! →
58.00 m2
ALAPTERÜLET
2
SZOBASZÁM
Tégla
ÉPÍTÉS
Hőszivattyú
FŰTÉS
  • Ingatlan komfort Összkomfortos
  • Fűtés Hőszivattyú
  • Építőanyag Tégla
  • Szigetelt igen
  • Víz telken belül
  • Csatorna telken belül
  • Gáz telken belül
  • Villany telken belül

Energetikai besorolás: A+

A+++
A++
A+
A
B
C
D
E
F
G
H
I

Az MBH Bank személyi kölcsön ajánlata

Fizetett hirdetés
1 millió Ft
6 évre
20 585 Ft/hó
THM: 14.5%
Részletek →
2 millió Ft
6 évre
41 169 Ft/hó
THM: 14.5%
Részletek →
3 millió Ft
6 évre
61 754 Ft/hó
THM: 14.5%
Részletek →

A tájékoztatás nem teljes körű és nem minősül ajánlattételnek.

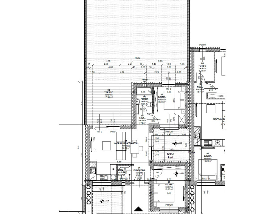
Az ingatlan leírása

Siófokon önálló családi házak eladók.


Eladásra kínálok Siófok újonnan kialakuló részében több családi házat.


A házak főbb jellemzői: Egyszintes, lapostető Főfalai: Porotherm 30 cm, 15 cm hőszigeteléssel


Nyílászárók:  külső felülete antracit színű műanyag,belső felülete fehér, 3 rétegű, hőszigetelt üvegezéssel A nyílászárók 20x20 cm-es redőnytokkal rendelkeznek, alumíniumredőny. A kétszárnyú vagy annál nagyobb erkélyajtók redőnyzetmotoros kivitelben. belmagasság: min. 2,60 m, de helységenként magasabb is lehet,mely fölött vakolt vasbeton födém adja a mennyezetet a megfelelőmódon hőszigetelve, ami jelen esetben 30 cm –t jelent.


Fűtés: hőszivattyús rendszer, (fűtő-, fűtő-) H- tarifás


Jelenleg 2 db ház van megtekinthető állapotban a többi folyamatosan épül


Az ingatlanok mindegyike:58,37 nm lakótér + 17,95 nm terasz, 270 nm-es telekkel.


Elosztás: amerikai konyha étkező nappali + 1 nagy hálószoba + 1 félszoba, fürdőszoba WC-vel és vendég WC.


A hirdetésben feltüntetett nm OSP szerinti nm. OSP hitelre alkalmas csak.


Bővebb műszaki tartalmat kérésre küldök.


Energetikai besorolása: A+


 

Térkép

Ingatlan adásvétel ügyvédi díja
404 550 Ft
a hirdetésben szereplő ár alapján
  • A vételár 0,45%-a
  • Szerződéscsomag teljeskörű képviselettel
  • Ingyenes tulajdoni lap ellenőrzés
  • Az ÁFA-t már tartalmazza
Érdekel az ajánlat →
A tájékoztatás nem teljes körű és nem minősül ajánlattételnek. Minimum díj: 150 000 Ft, maximum díj: 600 000 Ft. A díj kizárólag lakóingatlan adásvételére vonatkozik.

A hirdető elérhetősége

Beropex Consulting Ingatlaniroda

+36 70 331