Eladó Ház- házrész
Hirdetéskód: 9226209
OTP Ingatlanpont Siófok
Felújításhoz személyi kölcsönt keres? Kalkuláljon itt! →
Ez a hirdetés megfelelhet a FIX 3%-os programnak.
Tudj meg többet a részletekről itt.
117.00 m2
ALAPTERÜLET5
SZOBASZÁMnincs megadva
ÉPÍTÉSGáz (cirkó)
FŰTÉS- CSOK igénybe vehető nem
- Tetőtér beépíthető nem
- Építés éve 1981
- Fűtés Gáz (cirkó)
- Klíma nem
- Szigetelt nem
A+++
A++
A+
A
B
C
D
E
F
G
H
I
Az ingatlan leírása
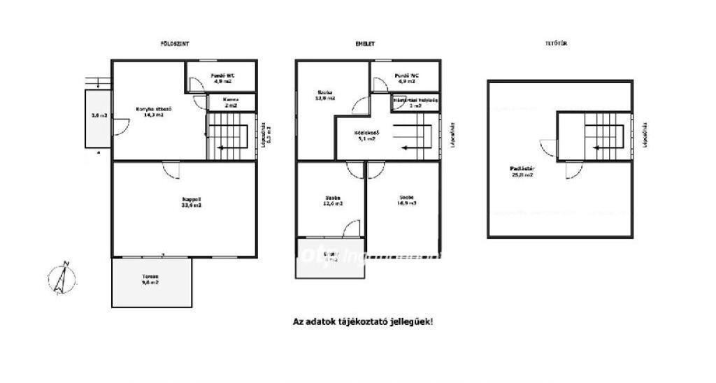
Siófok Ezüstpartján, a Balatontól mindössze 140 méterre felújított, kétszintes családi ház és különálló melléképület eladó egyben és külön is.
Siófok közkedvelt Újhely városrészében, a szabad strandtól csupán 2 perc sétára kínálunk megvételre egy 117 nm-s, kétszintes családi házat, valamint egy különálló, 25 nm-s, teljes értékű melléképületet.
Főépület jellemzői:
Új, korszerű gázkazán biztosítja a fűtést.
Földszinti, világos nappali hangulatos terasszal.
Az emeleten 3 kényelmes hálószoba.
A tetőtérben további beépítési lehetőség.
Friss energetikai korszerűsítés.
Új, hőszigetelt nyílászárók.
Megújult, modern vizesblokkok, új burkolatokkal és szaniterekkel
Felújított, hőszigetelt homlokzat.
A földszinti beépített konyhabútor a vételár részét képezi.
Melléképület:
A különálló, egyszintes épület 25 nm-s lakóteret kínál, két fedett terasszal.
Hőszigetelt, műanyag nyílászáróinak és kialakításának köszönhetően vendégháznak, irodának vagy kiadható apartmannak is kiváló lehetőség.
Telek és parkolás:
Összesen 727 nm-s, gondozott telek. (fő ház 314 nm, kis ház 269 nm, egyéb 144 nm)
Parkolás a zárt udvarban vagy a ház előtti ingyenes közterületen.
Kiváló elhelyezkedés, felújított állapot, többfunkciós melléképület tökéletes nyaraló, állandó otthon vagy akár befektetés!
Megtekintéshez várom hívását.
Az energetikai tanúsítvány készítése folyamatban van, amint rendelkezésre áll, úgy azzal a hirdetés frissítésre kerül.
Siófok közkedvelt Újhely városrészében, a szabad strandtól csupán 2 perc sétára kínálunk megvételre egy 117 nm-s, kétszintes családi házat, valamint egy különálló, 25 nm-s, teljes értékű melléképületet.
Főépület jellemzői:
Új, korszerű gázkazán biztosítja a fűtést.
Földszinti, világos nappali hangulatos terasszal.
Az emeleten 3 kényelmes hálószoba.
A tetőtérben további beépítési lehetőség.
Friss energetikai korszerűsítés.
Új, hőszigetelt nyílászárók.
Megújult, modern vizesblokkok, új burkolatokkal és szaniterekkel
Felújított, hőszigetelt homlokzat.
A földszinti beépített konyhabútor a vételár részét képezi.
Melléképület:
A különálló, egyszintes épület 25 nm-s lakóteret kínál, két fedett terasszal.
Hőszigetelt, műanyag nyílászáróinak és kialakításának köszönhetően vendégháznak, irodának vagy kiadható apartmannak is kiváló lehetőség.
Telek és parkolás:
Összesen 727 nm-s, gondozott telek. (fő ház 314 nm, kis ház 269 nm, egyéb 144 nm)
Parkolás a zárt udvarban vagy a ház előtti ingyenes közterületen.
Kiváló elhelyezkedés, felújított állapot, többfunkciós melléképület tökéletes nyaraló, állandó otthon vagy akár befektetés!
Megtekintéshez várom hívását.
Az energetikai tanúsítvány készítése folyamatban van, amint rendelkezésre áll, úgy azzal a hirdetés frissítésre kerül.