Eladó Ház- házrész
Hirdetéskód: 9327904
LidoHome Siófok
Felújításhoz személyi kölcsönt keres? Kalkuláljon itt! →
Ez a hirdetés megfelelhet a FIX 3%-os programnak.
Tudj meg többet a részletekről itt.
109.00 m2
ALAPTERÜLET5
SZOBASZÁMnincs megadva
ÉPÍTÉSGáz (cirkó)
FŰTÉS- CSOK igénybe vehető nem
- Tetőtér beépíthető nem
- Építés éve 2017
- Fűtés Gáz (cirkó)
- Klíma nem
- Szigetelt nem
A+++
A++
A+
A
B
C
D
E
F
G
H
I
Az ingatlan leírása
A LIDO HOME siófoki irodája eladásra kínálja ezt a rendkívül hangulatos CSALÁDI HÁZAT SIÓFOK, FOKIHEGYEN!
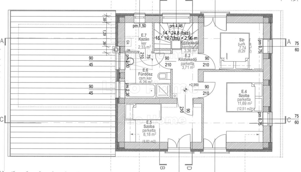
A ház 2017-ben épült, Siófok egyik legimpozánsabb új házas utcájában. Kifogástalan állapotú az ingatlan, az építkezéskor minőségi anyagok kerültek beépítésre.
Az építtető ügyelt arra, hogy megfeleljen a modernkori passzívház követelményeinek. Az épület 38-as téglából épült, rajta 15 cm-es szigeteléssel. Így az átlagosnál jóval kiválóbb hőátbocsátási tényezővel rendelkezik az ingatlan. A déli oldalon 2 rétegű, míg az északi oldalon 3 rétegű műanyag nyílászárók kerültek beépítésre.
Az épületben nappali+4 szoba került elhelyezésre. A nappali egy impozáns, közel 4 méteres belmagasságú, féltetős megoldással kialakított. Egy földszinti és egy emeleti fürdőszoba is van az ingatlanban. A földszinti 16 m2-es szoba irodaként volt berendezve, de akár tud funkcionálni garázsként is, vagy a földszinti fürdőszoba közelsége miatt egy különálló apartmanként is leválasztható.
A házhoz tartozó privát kertrész 200 m2. Az udvar gondozott, növényekkel beültetett.
Fűtés: kondenzációs gázkazánnal megoldott, radiátoros hőleadókkal, emellett hűtő-fűtő klíma és fatüzelésű kandalló is helyet kapott.
Az ingatlan fenntartási költségei az átlagosnál jóval kedvezőbbek.
Jogilag rendezett ingatlan.
Távolság a Balatontól: 900 méter
Kiváló lokáció: Budapest autóval kb. 1 óra alatt elérhető az M7 autópályán keresztül.
Ár: 134,9 millió Ft
További információ és megtekintés egyeztetés alapján!
Vásárolna, de nincs rá keret?
Kollégám díjmentes, bank semleges hitel ügyintézéssel áll rendelkezésére.
LIDO HOME-Ingatlanok egy életen át!
A ház 2017-ben épült, Siófok egyik legimpozánsabb új házas utcájában. Kifogástalan állapotú az ingatlan, az építkezéskor minőségi anyagok kerültek beépítésre.
Az építtető ügyelt arra, hogy megfeleljen a modernkori passzívház követelményeinek. Az épület 38-as téglából épült, rajta 15 cm-es szigeteléssel. Így az átlagosnál jóval kiválóbb hőátbocsátási tényezővel rendelkezik az ingatlan. A déli oldalon 2 rétegű, míg az északi oldalon 3 rétegű műanyag nyílászárók kerültek beépítésre.
Az épületben nappali+4 szoba került elhelyezésre. A nappali egy impozáns, közel 4 méteres belmagasságú, féltetős megoldással kialakított. Egy földszinti és egy emeleti fürdőszoba is van az ingatlanban. A földszinti 16 m2-es szoba irodaként volt berendezve, de akár tud funkcionálni garázsként is, vagy a földszinti fürdőszoba közelsége miatt egy különálló apartmanként is leválasztható.
A házhoz tartozó privát kertrész 200 m2. Az udvar gondozott, növényekkel beültetett.
Fűtés: kondenzációs gázkazánnal megoldott, radiátoros hőleadókkal, emellett hűtő-fűtő klíma és fatüzelésű kandalló is helyet kapott.
Az ingatlan fenntartási költségei az átlagosnál jóval kedvezőbbek.
Jogilag rendezett ingatlan.
Távolság a Balatontól: 900 méter
Kiváló lokáció: Budapest autóval kb. 1 óra alatt elérhető az M7 autópályán keresztül.
Ár: 134,9 millió Ft
További információ és megtekintés egyeztetés alapján!
Vásárolna, de nincs rá keret?
Kollégám díjmentes, bank semleges hitel ügyintézéssel áll rendelkezésére.
LIDO HOME-Ingatlanok egy életen át!