Eladó Ház- házrész
Hirdetéskód: 9327838

OTP Ingatlanpont Siófok

Felújításhoz személyi kölcsönt keres? Kalkuláljon itt! →
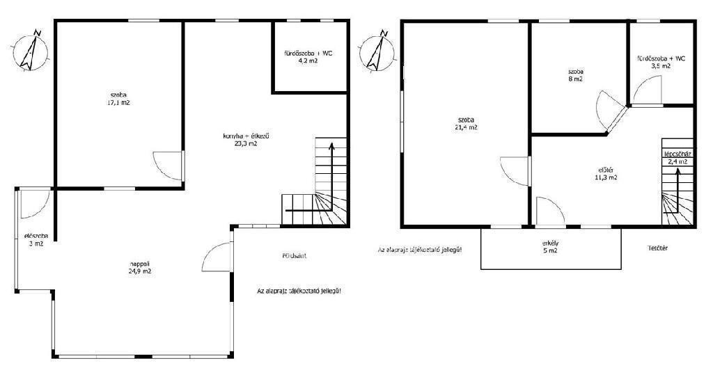
121.00 m2
ALAPTERÜLET
4
SZOBASZÁM
nincs megadva
ÉPÍTÉS
Elektromos
FŰTÉS
  • CSOK igénybe vehető nem
  • Tetőtér beépíthető nem
  • Építés éve 1995
  • Fűtés Elektromos
  • Klíma nem
  • Szigetelt nem
Energetikai besorolás: Nincs meghatározva
A+++
A++
A+
A
B
C
D
E
F
G
H
I

Az MBH Bank személyi kölcsön ajánlata

Fizetett hirdetés
1 millió Ft
6 évre
20 585 Ft/hó
THM: 14.5%
Részletek →
2 millió Ft
6 évre
41 169 Ft/hó
THM: 14.5%
Részletek →
3 millió Ft
6 évre
61 754 Ft/hó
THM: 14.5%
Részletek →

A tájékoztatás nem teljes körű és nem minősül ajánlattételnek.

Az ingatlan leírása

Balaton Déli part, Siófok, Balatonszéplak 122 m2 ikerház, 380 m2 telek eladó. A kivett lakóházként nyilvántartott ingatlan az Ezüstparton, a szabadstrandtól 400 méterre, 5 perc sétára található. A szigetelt, 3 rétegű nyílászárókkal ellátott, 2025-ben teljeskörűen felújított ház áramellátását napelem biztosítja. A ház fűtéséről az egész lakóteret melegen tartó cserépkályha gondoskodik, amit elektromos fűtőpanelek és egy tetőtéri klíma egészít ki szükség szerint. Az ingatlan értékét tovább növeli a hangulatos, parkosított kert jakuzzival, kerti sütögetővel, valamint egy fedett, 50 m2-es térkövezett terület, ami jelenleg dupla kocsibeállóként funkcionál, de teraszként, szabadidős tevékenységre, pihenésre is kiválóan alkalmas. További extrák: 11 kW-os elektromos autótöltő, 3x32 amper fázis, elektromos kapu, szúnyogháló, redőny. Az ingatlan elhelyezkedésének és kialakításának köszönhetően tökéletesen alkalmas családoknak állandó lakhatásra vagy nyaralásra, de befektetésként is kiváló, ritka lehetőség. Tömegközlekedés, bevásárlási lehetőség, vendéglátóhelyek a közelben. Bővebb információért keressen telefonon! M320769

Az energetikai tanúsítvány készítése folyamatban van, amint rendelkezésre áll, úgy azzal a hirdetés frissítésre kerül.

Térkép

Ingatlan adásvétel ügyvédi díja
600 000 Ft
a hirdetésben szereplő ár alapján
  • A vételár 0,45%-a
  • Szerződéscsomag teljeskörű képviselettel
  • Ingyenes tulajdoni lap ellenőrzés
  • Az ÁFA-t már tartalmazza
Érdekel az ajánlat →
A tájékoztatás nem teljes körű és nem minősül ajánlattételnek. Minimum díj: 150 000 Ft, maximum díj: 600 000 Ft. A díj kizárólag lakóingatlan adásvételére vonatkozik.

A hirdető elérhetősége

OTP Ingatlanpont Siófok

Szűcs Adrienn
+36 70 698